Promotor
Dr inż. arch. Marta Anna Urbańska, prof. PK
Recenzent
Dr inż. arch. Grzegorz Schnotale
Tytuł pracy
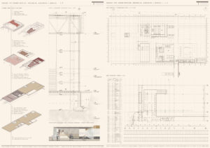
Dworzec PKP Tarnów Mościce – renowacja, adaptacja i addycja
Jednostka dyplomująca
Katedra Historii Architektury i Konserwacji Zabytków A-1
Opis idei projektu
Projekt rewitalizacji i adaptacji dworca Tarnów Mościce zakłada rozszerzenie pierwotnej roli miejsca, jako punktu miejsca odjazdów i przyjazdów, w dynamiczne centrum społeczno-kulturalne. Powstały w latach 70-tych poprzedniego wieku, znakomity przykład architektury modernistycznej, obecnie nieużywany oraz nieremontowany, popada w ruinę. Jednym z założeń projektowych jest wykorzystanie kontrastu funkcji i miejsca. Historycznie było to miejsce użytkowane przez pracowników zakładów azotowych jako punkt przyjazdów i odjazdów do pracy. Przekształcając dworzec z punktu tranzytowego w miejsce spotkań, rekreacji oraz integracji społecznej, zakłada transformację miejsca oczekiwania na pociąg, na cel sam w sobie. Drugą częścią projektu jest addycja obiektu kultury w bezpośrednim sąsiedztwie dworca. Budynek swoją formą nie ma konkurować z zabytkowym dworcem, dlatego część funkcji pozostaje ukryta pod ziemią, a zielony dach tworzy otwartą przestrzeń. Ma zapewnić miejsce dedykowane warsztatom, wystawom, koncertom oraz innym wydarzeniom, które będą sprzyjać budowaniu relacji międzyludzkich. Idea utworzenia mniej formalnego domu kultury, odpowiadającego współczesnym potrzebom wynika z założenia koncentrującego się na społecznym problemie samotności. Według badania „Poczucie samotności wśród dorosłych Polaków” przeprowadzonego przez Instytut Pokolenia, dotyka 54% społeczeństwa. Wymaga to rozważenia, jak przestrzeń wpływa na nasze społeczne interakcje. Projekt przewiduje poszukiwanie osobistych perspektyw, które kształtują nasze doświadczenia w przestrzeni publicznej. Proponowane rozwiązania wykraczają poza granice budynku dworca, rozszerzając koncept. Jednym z założeń jest utworzenie punktów połączeń, które tworzą sieć interakcji społecznych, wykorzystując oczekiwanie na pociąg jako okazję do nawiązania kontaktów. Inspirując się formą budynku dworca, miejsce to ma pełnić rolę „parasola społecznego” – przestrzeni, gdzie ludzie chronią się przed samotnością, mają okazję nawiązania nowych relacji społecznych, które powstają spontanicznie w wyniku wspólnego oczekiwania.