Jakub Folwarczny

Promotor

dr inż. arch. Maciej Skaza

Recenzent

dr hab. inż. arch. Piotr Burak-Gajewski, prof. PK

Tytuł pracy

Centrum Muzyki Rozrywkowej w Krakowie. Wpływ architektury na rozwój muzyki

Jednostka dyplomująca

Katedra Projektowania Architektonicznego A-6

Opis idei projektu

Tematem pracy magisterskiej jest Centrum Muzyki Rozrywkowej w Krakowie. Celem jest stworzenie nowoczesnej, publicznej, wielofunkcyjnej przestrzeni dla muzyki i Parku miejskiego w dzielnicy Grzegórzki w Krakowie. Tematem części opisowej są podobieństwa pomiędzy architekturą i muzyką oraz to jaki wpływ mają na siebie obie ze sztuk.

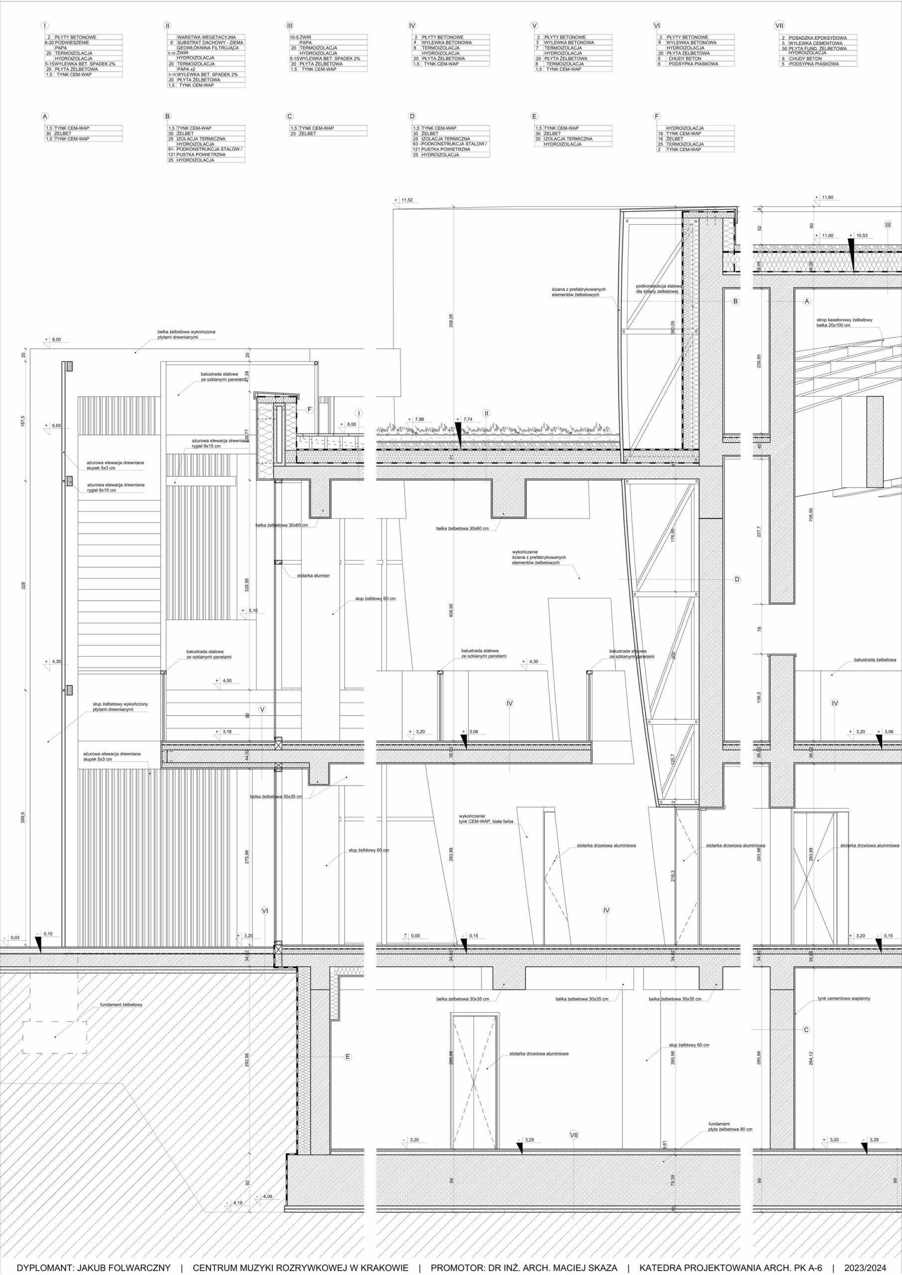
Budynek zaprojektowano zgodnie z zasada „box in box”, na planie dwóch pięciokątów równobocznych o zróżnicowanej wielkości. Wybór pięciokąta jest poparty dobrymi warunkami akustycznymi, które stwarzają oparte na nim bryły – w tym przypadku dwie – wewnętrzna przeznaczona na salę koncertową i zewnętrzna, która jest otwartą wielofunkcyjną przestrzenią dla użytkowników budynku.

Na parterze zaprojektowano hall, lokale usługowe, segment administracji oraz sale koncertową. Na półpiętrze rozległe antresole z przestrzeniami wystawowymi oraz wejściami do Sali otoczonej pochyłymi ścianami, które podkreślają jej rangę. Na pierwszym piętrze zaplanowano kontynuacje otwartej przestrzeni półpiętra w postaci kawiarni, z widokiem na okalający budynek park. W kondygnacji podziemnej również zaprojektowano segment użytkowy z małą salą audytoryjną oraz studiem nagrań. Wokół szklanej fasady budynku zaprojektowano kolejne wejście do budynku i lokali usługowych oraz podłużne wspornikowe tarasy oraz schody, które prowadzą na piętro i użytkowe części dachu. Drewnianą elewację obiektu tworzy ciąg monolitycznych słupów żelbetowych oraz pionowe lamele. Całość stawia wnętrze budynku w ciągłej relacji z zewnętrzem.

Zaprojektowano również Grzegórzecki Muzyczny Park Miejski. W parku będą znajdować się pawilony wielofunkcyjne zaprojektowane w taki sposób, aby każdy z nich stwarzał inne warunki akustyczne, dla koncertów, wystaw i innych wydarzeń kulturowych. W centralnej części parku przewidziano przestrzeń przeznaczoną na organizacje dużych wydarzeń plenerowych. Na końcu park łączy się z bulwarem kurlandzkim nad Wisłą. W tym miejscu przewidziano przestrzeń na scenę wodną.