Kaja Bartula

Promotor

dr inż. arch. Marek Początko

Recenzent

dr hab. inż. arch. Piotr Burak-Gajewski, prof. PK

Tytuł pracy

Dom – baza. Projekt ośrodka opiekuńczo – wychowawczego w Nowej Hucie.

Jednostka dyplomująca

Katedra Projektowania Architektonicznego A-6

Opis idei projektu

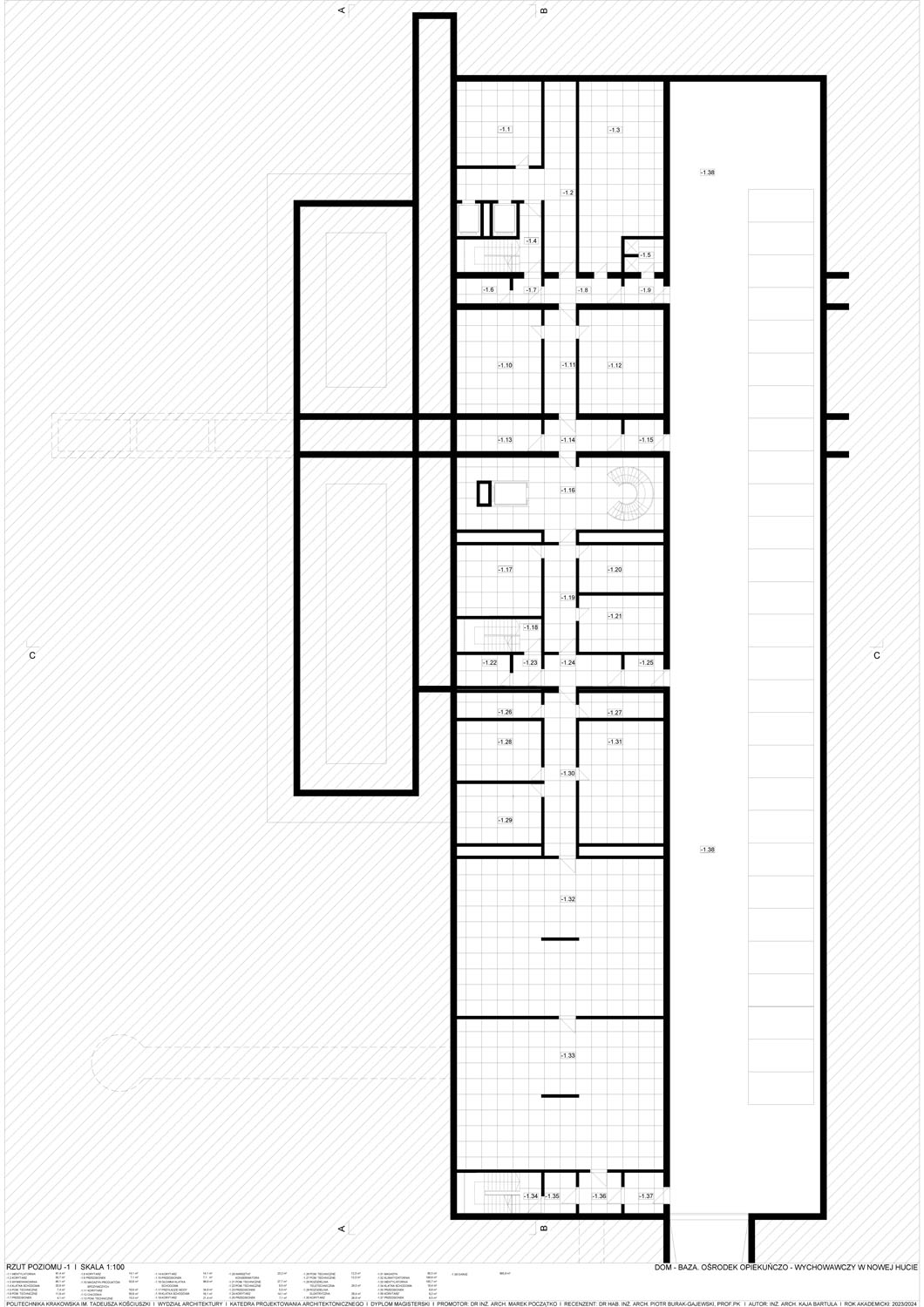
Przedmiotem opracowania jest analiza ośrodków opiekuńczo – wychowawczych, ich struktur, sposobów tworzenia oraz poszukiwanie wzorców podobnych obiektów. W pierwszej części pracy skupiono się na podstawowym przygotowaniu do tematu jakim są ośrodki opiekuńczo – wychowawcze dla młodzieży, a następnie omówiono kilka projektów zrealizowanych i niezrealizowanych. Nie są one idealnym odpowiednikiem obszaru jaki się omawia ale stanowią odpowiedni przykład jak poradzić sobie z tak trudną przestrzenią. Powodem dla którego zajęto się tym tematem jest fakt, że w Polskich realizacjach nie znaleziono dobrego przykładu tego obiektu. Jest to temat pomijany mimo swojej wysokiej rangi. Projekt jest propozycją domu opiekuńczo – wychowawczego o nazwie „Dom – baza”. Jest przeznaczony dla 42 młodych gniewnych ludzi, którzy potrzebują odpowiedniej przestrzeni do zmian. Jego forma powstała w oparciu o obraz Marlow Moss „Composition blue, red, black and white” z 1953 roku. Układ przestrzenny domu powstał w wyniku analizy potrzeb dzieci oraz o obowiązujące normy w zakresie projektowania domów poprawczych. Forma domu została zlokalizowana w konkretnym miejscu w Nowej Hucie ze względu na swoje predyspozycje obszaru.