Promotor
dr hab. inż. arch. Tomasz Kapecki, prof. PK
Recenzent
dr hab. inż. arch. Anna Bojęś-Białasik, prof. PK
Tytuł pracy
Wydział Nauk Humanistycznych Uniwersytetu Warszawskiego
Jednostka dyplomująca
Katedra Architektury Miejsc Pracy, Sportu i Usług A-2
Opis idei projektu
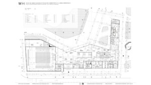
Głównym założeniem projektowym Wydziału Nauk Humanistycznych było stworzenie nowoczesnej i funkcjonalnej przestrzeni edukacyjnej. Architektura swoją formą ma za zadanie sprzyjać integracji społecznej oraz wszechstronnemu rozwojowi studentów. Istotne było zapewnienie środowiska, które inspiruje do nauki oraz twórczego myślenia. Inspiracją dla projektu stały się idee humanizmu. Człowiek jako jednostka świadoma swej godności i możliwości potrafi swoim talentem i wiedzą kształtować otaczającą go rzeczywistość. Twórczość jest cechą charakterystyczną ludzi, dlatego też projekt budynku Wydziału Nauk Humanistycznych pozostawia przestrzeń na kreatywność i samodoskonalenie. Budynek zaprojektowano jako elastyczny i łatwo adaptowalny. Projekt elewacji przewiduje materiały inspirowane naturalnymi surowcami, takimi jak drewno oraz kamień. Od strony głównych ulic forma budynku jest prostopadłościenna. Wpisuje się w architekturę Powiśla oraz domyka kwartał zabudowy. Natomiast od strony wnętrza kwartału budynek charakteryzują obłe, miękkie formy oraz duże przeszklenia.