Krystian Żbik

Promotor

dr inż. arch. Przemysław Bigaj

Recenzent

dr hab. inż. arch. Piotr Burak-Gajewski, prof. PK

Tytuł pracy

Monument w mieście, Ratusz w Nowej Hucie

Jednostka dyplomująca

Katedra Projektowania Architektonicznego A-6

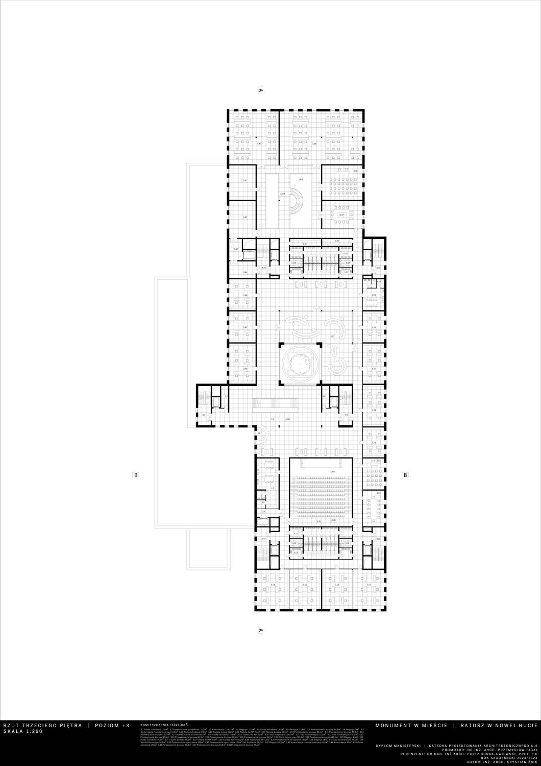
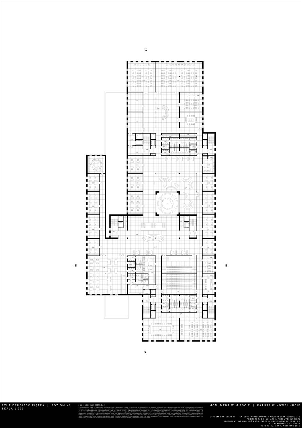
Opis

Budynek zaprojektowany został na wysokość 7 kondygnacji. Charakteryzuje go wysunięta wieża stanowiąca akcent w przestrzeni. Działka projektowa znajduje się w XVIII dzielnicy Krakowa – Nowa Huta. W jej otoczeniu znajdują się liczne zabudowania mieszkaniowo-usługowe, szkoła oraz zieleń wysoka. W procesie projektowym istotnym było utworzenie miejskiego monumentu estetycznie wkomponowanego w otoczenie oraz realizacja określonego programu. Układ funkcjonalny poza funkcjami administracyjnymi przewiduje również wspólne przestrzenie przeznaczone do użytku publicznego, przestrzenie wystawowe oraz dwupoziomową dużą kawiarnię. W parterze umieszczone zostały lokale usługowe. Projekt przewidział również umieszczenie dwóch dużych sal audytoryjnych biegnących łącznie przez cztery piętra oraz pomieszczenia biurowe z możliwością wynajęcia. Docelowo obiekt poza pełnieniem funkcji jaką jest siedziba Urzędu Miasta, ma stać się pretekstem do nowych aktywności społecznych i kulturalnych. Dzięki dużym otwartym przestrzeniom projekt wprowadza nową jakość w istniejącą tkankę miejską i początkuje wzrost kultury i jakości tego miejsca.