Natalia Dolewska

Promotor

dr inż. arch. Maciej Skaza

Recenzent

dr hab. inż. arch. Piotr Burak-Gajewski, prof. PK

Tytuł pracy

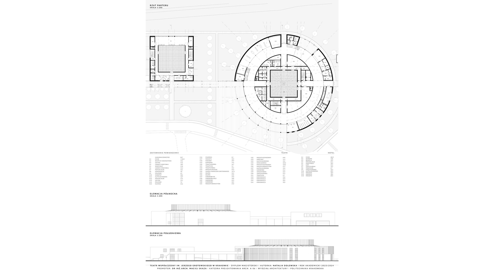
Teatr współczesny im. Jerzego Grotowskiego wraz z hotelem dla aktorów

Jednostka dyplomująca

Katedra Projektowania Architektonicznego A-6

Opis idei projektu

Tematem pracy magisterskiej jest projekt Teatru Współczesnego w Krakowie inspirowanego twórczością wybitnego polskiego twórcy teatralnego – Jerzego Grotowskiego. Budynek jako nowa przestrzeń kulturalno-rozrywkowa ma za zadanie zapełnić lukę funkcjonalną istniejącą w tej części Krakowa. Budynek teatru posiadać będzie zaawansowaną technicznie scenę, zapewniającą mnogą liczbę sposobów kreowania układu widowni i scenografii. Pozwoli to przybywającym do Teatru Współczesnego artystom na dowolne aranżowanie przestrzeni sceny i kreowanie doznań artystycznych, jakich nie mogli urzeczywistnić na standardowych scenach teatralnych w innych obiektach. Towarzyszący teatrowi budynek hotelu zlokalizowany obok na działce, jest dedykowany artystom, którzy mają pracować w Teatrze Współczesnym. Budynek hotelowy będzie  pełnił funkcję nie tylko mieszkalną, znajdzie się tam także scena pomocnicza, pomyślana również jako sala prób, aby oprócz poczucia komfortu zapewnić twórcom jak najlepsze warunki pracy.