Yevheniia Kaminska

Promotor

prof. dr hab. inż. arch. Tomasz Kozłowski

Recenzent

dr hab. inż. arch. Piotr Burak-Gajewski, prof. PK

Tytuł pracy

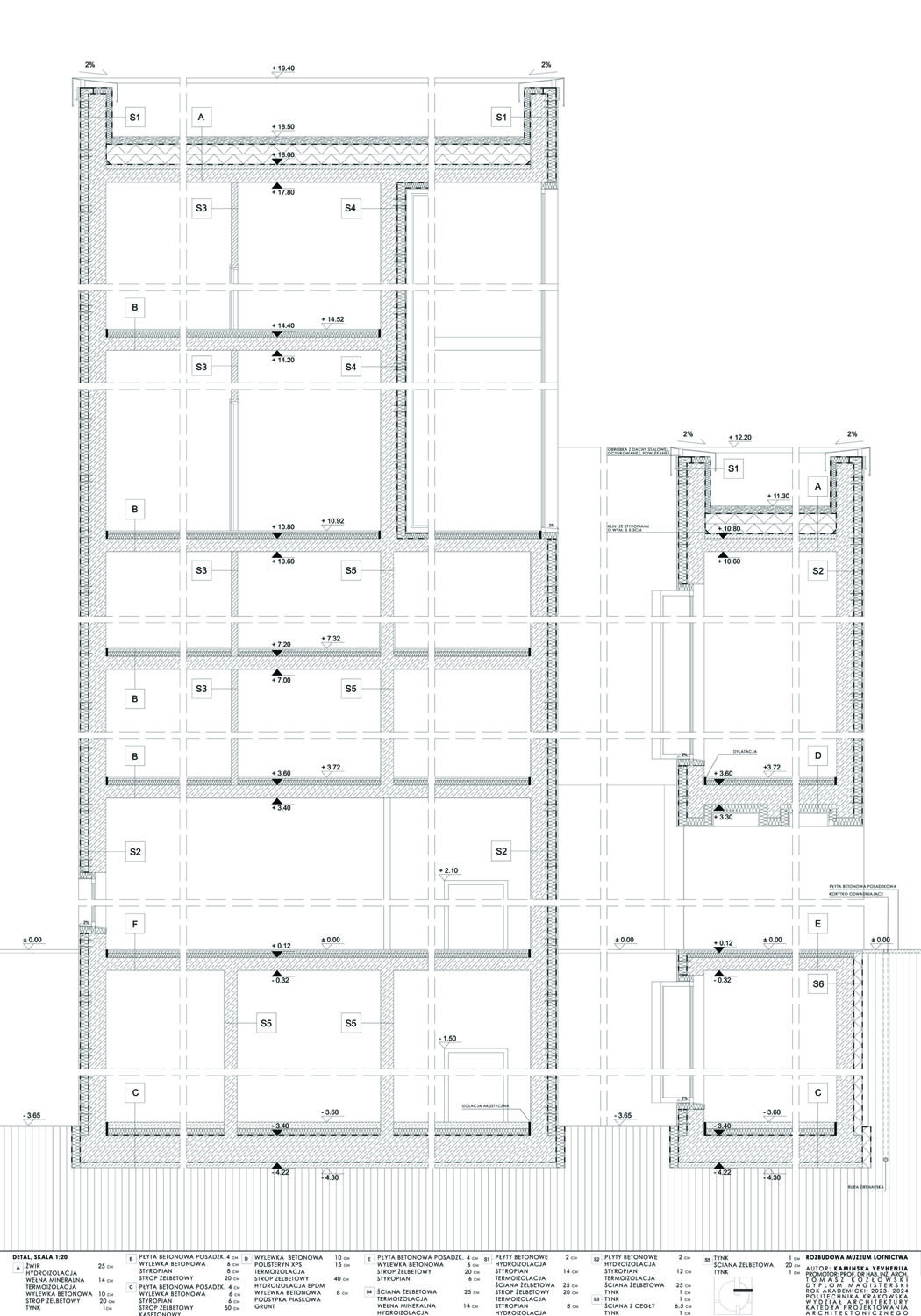
Rozbudowa muzeum lotnictwa

Jednostka dyplomująca

Katedra Projektowania Architektonicznego A-6

Opis idei projektu

Przedmiotem opracowania pracy magisterskiej jest projekt architektoniczny „Rozbudowa Muzeum Lotnictwa”. Praca zawiera cześć teoretyczną na temat „Zasady projektowania
nowoczesnych przestrzeni muzealnych”, którego celem jest zdefiniowanie podejścia i określenie kluczowych aspektów projektowania popularnych muzeów, na podstawie przykładów współczesnych realizacji z całego świata. Oraz część praktyczna, składająca się z opracowania projektu architektonicznego, przedstawienia go w postaci plansz i opisu. Projekt ma na celu promować naukę, wspierać kulturę, wzmacniać poczucie tożsamości mieszkańców, zapewnić dostęp do edukacji dla wszystkich warstw społeczeństwa.