Anastasiya Miklashevich

Promotor

prof. dr hab. inż. arch. Mateusz Gyurkovich

Recenzent

dr inż. arch. Piotr Langer

Tytuł pracy

Rewitalizacja terenów pokopalnianych w Mysłowicach

Jednostka dyplomująca

A9 – Katedra Urbanistyki i Architektury Struktur Miejskich

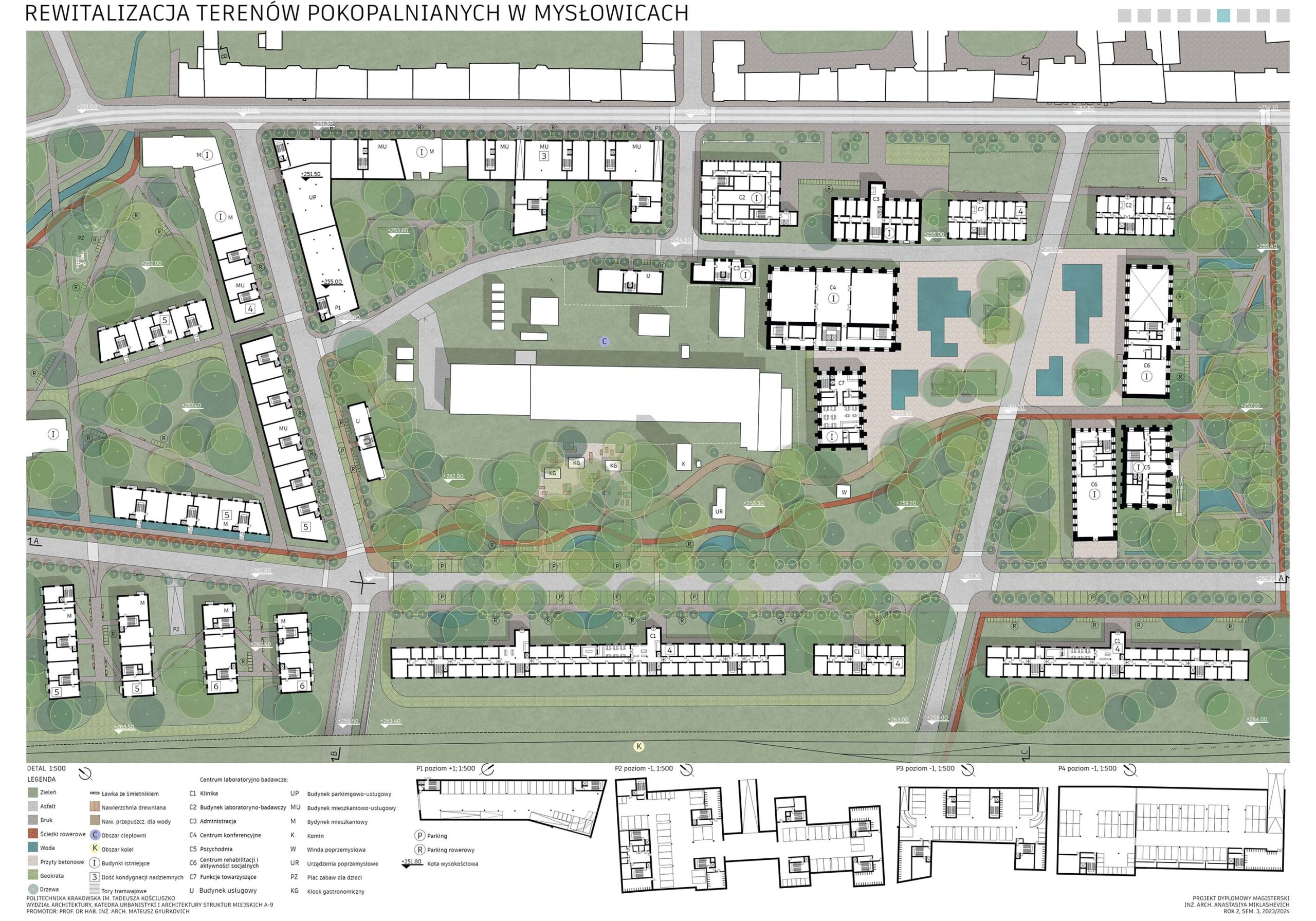
Opis idei projektu

Podstawą do idei projektu służą szanse i wytyczne z badań przedprojektowych. Idea polega na wszechstronności rewitalizacji i powiększenie konkurencyjności i atrakcyjności miasta Mysłowice za pomocą rewitalizacji. W opracowanej koncepcji rewitalizacji udało się połączyć obszary podzielone torami kolejowymi, wzbogacić funkcję, w tym o znaczeniu ponadlokalnym, połączyć wewnętrzne i z otoczeniem tereny pokopalniane, przywrócić do użytkowania zabytkową architekturę. Również ważnym aspektem była kreacja różnorodnych przestrzeni publicznych: skwerów, promenad, placów, woonerfów, parków z wykorzystaniem dużej ilości zieleni i wody, która przyjmuję formę ruczai, stawów, zbiorników retencyjnych.

Na obszarze z zachowanymi budynkami historycznymi został wprowadzony ośrodek laboratoryjno-badawczy, który przede wszystkim ma wzbogacić funkcjonalność miasta oraz stworzyć miejsca pracy. Zakłada się pewna integralność ośrodka, odwiedzające mogą tu znaleźć aktywności rekreacyjne, sportowe i rehabilitacyjne, co również promuje dziedzictwo kulturowe. Na południe od części historycznej, wprowadzono zabudowę mieszkaniową z nielicznymi usługami, żeby połączyć teren projektowy z otaczającą go zabudową miejską od północnego wschodu. Do połączenia terenu projektowanego z istniejącym również służy pseudo blokowa zabudowa mieszkaniowa od południowego wschodu, w której udział usług jest większy niż w poprzedniej. Na południowym zachodzie zlokalizowano obiekty użyteczności publicznej o dużej powierzchni, zgodnie z wymaganiami MPZP oraz w celu stworzenia strefy buforowej między zabudową mieszkaniową, a bardzo hałaśliwą drogą główną (ul. Obrzeżna Północna). Te obiekty mają różne przeznaczenia, w tym kultura, oświata, sport, rekreacja i handel.

Ważnym zagadnieniem również było połączenie obszarów podzielonych koleją, co udało się zapewnić za pomocą przejazdów i przejść, przyjemnych dla ludzi. Obszary o różnym przeznaczeniu na terenie projektowym i istniejącym, łączą się również przez systemy zieleni i wody, co zapewnia dobre warunki zdrowotne w mieście (przewietrzanie, jakość powietrza, kondycja flory, fauny i inne). Teren jest dobrze dostępny poprzez komunikację miejską oraz dostosowany do wygodnego ruchu pieszych i rowerzystów.