Emilia Nabożny

Promotor

dr inż. arch Andrzej Wiszowaty

Recenzent

dr hab. inż. arch. Anna Bojęś-Białasik, prof. PK

Tytuł pracy

Surf EXTEA Centrum Surfingowe w San Sebastián

Jednostka dyplomująca

Katedra Architektury Miejsc Pracy, Sportu i Usług A-2

Opis idei projektu

Centrum Surfingowe Surf EXTEA zostało zaprojektowane jako odpowiedź na zidentyfikowane braki w infrastrukturze dla surferów w San Sebastián, szczególnie w okolicach plaży Zurriola. Główna idea projektu opiera się na stworzeniu wszechstronnej przestrzeni, która zaspokaja te potrzeby, jednocześnie oferując surferom miejsca do odpoczynku, rekreacji oraz integracji społecznej.
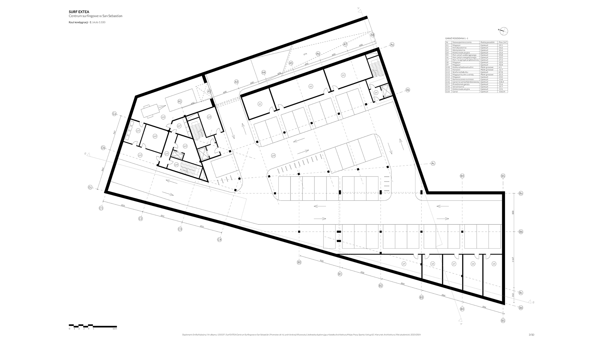
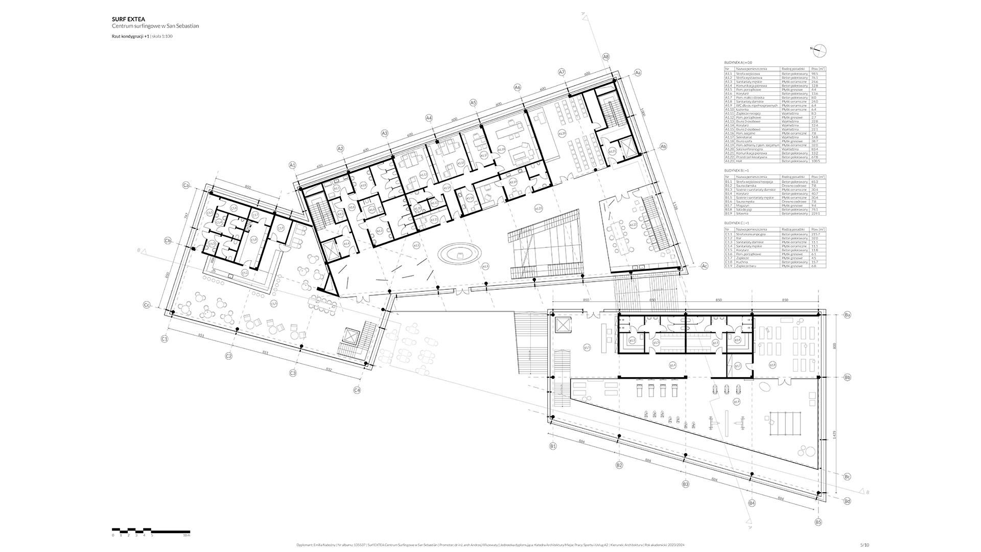
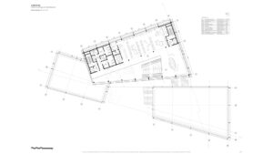
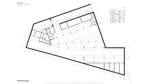
W Centrum znajdują się różnorodne pomieszczenia: siłownia, sauny, prysznice, warsztat do majsterkowania, przestrzenie do przechowywania desek surfingowych i pianek. Dodatkowo, projekt przewiduje bar z pintxosami (typowe baskijskie przekąski), salę konferencyjną oraz bibliotekę ze strefą multimediów. Wszystko to sprawia, że budynek staje się nie tylko centrum sportowym, ale także miejscem spotkań i wymiany doświadczeń.
W San Sebastián brakuje również nowoczesnych skateparków, które są nieodłącznym elementem treningu fizycznego surferów, szczególnie w dni bez fal. Surf EXTEA będzie wyposażone w specjalistyczny skatepark z różnorodnymi przeszkodami, umożliwiający wszechstronny rozwój sportowców.
Inspiracją dla projektu były proste formy i nowoczesne rozwiązania technologiczne, nawiązujące do architektury Kursaalu w San Sebatsian oraz Muzeum Oceanu i Surfingu w Biarritz. Budynek składa się z trzech połączonych brył o ostrych kształtach, przypominających kamienie wystające z wody.
Elewacja z dwuwarstwowego szkła typu Okalux nie tylko odbija otaczający krajobraz oceanu, ale także zapewnia doskonałą izolację termiczną, co pozwala na efektywne zarządzanie energią wewnątrz budynku.
Projekt Surf EXTEA harmonijnie wpisuje się zarówno w naturalne otoczenie, jak i historyczną tkankę San Sebastián. Oferuje nowoczesną przestrzeń dostosowaną do potrzeb surferów, wzbogacając jednocześnie krajobraz miasta i podkreślając jego status światowej stolicy surfingu.