Patrycja Filipek

Promotor

Dr inż. arch. Bartosz Dendura

Recenzent

Dr inż. arch. Zbigniew Wikłacz, prof. PK

Tytuł pracy

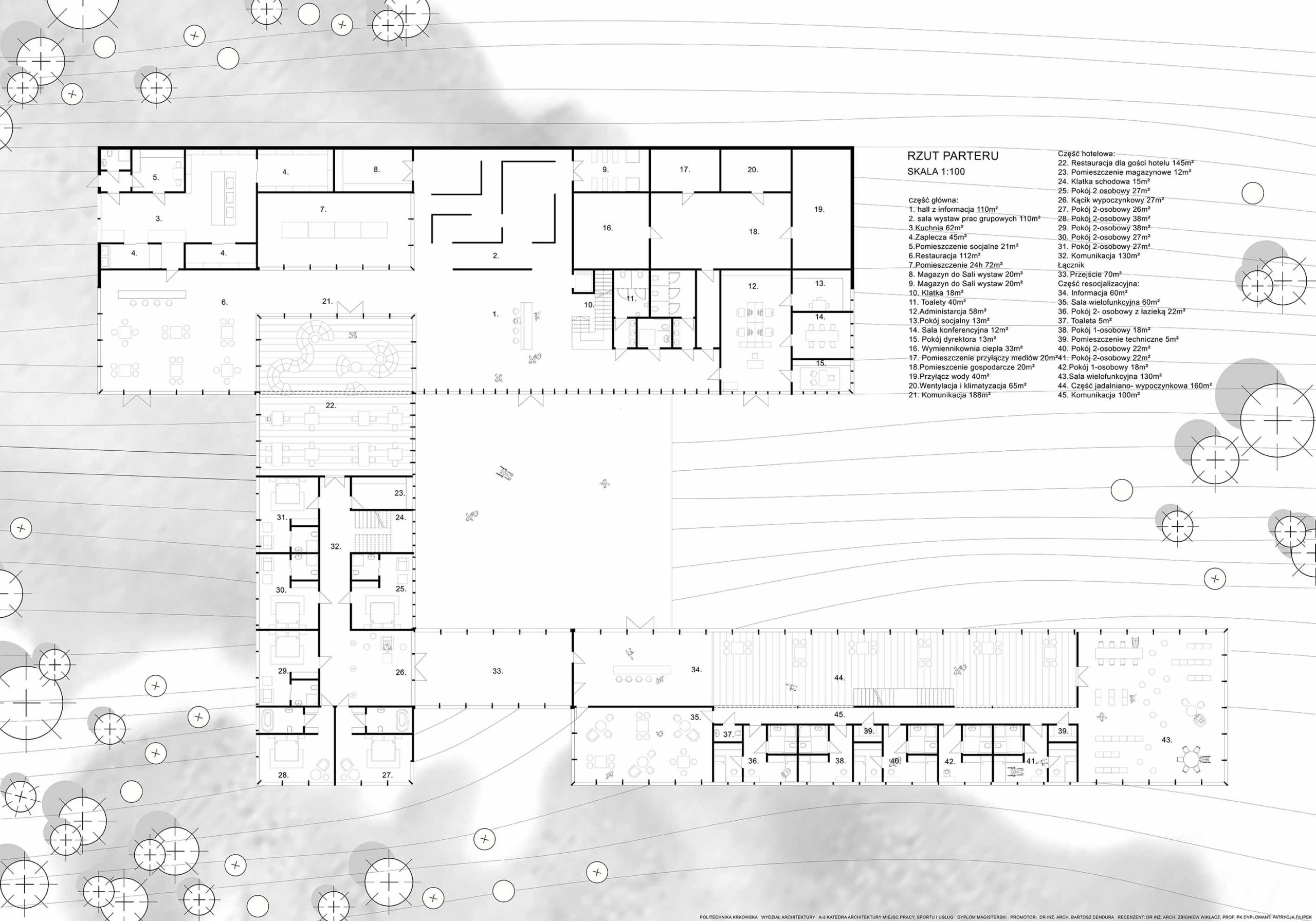
Schronisko górskie na Podskałach, czyli miejsce resocjalizacji, wypoczynki i obcowania z naturą.

Jednostka dyplomująca

Katedra Architektury Miejsc Pracy, Sportu i Usług A-2

Opis idei projektu

Schronisko Górskie na polanie Podskały to kompleks, który został zaprojektowany w odpowiedzi na zapotrzebowanie turystyczne. Główną ideą było skonstruowanie ekologicznej przestrzeni dla miłośników górskich wędrówek oraz osób, które szukają wyciszenia. Budynek składa się z trzech części: głównego obiektu, części hotelowej oraz resocjalizacyjnej. Zaprojektowany kompleks zawiera w swojej konstrukcji elementy, które kształtem oraz proporcjami odnoszą się do szałasów znajdujących się na wybranej lokalizacji. Położenie projektu umożliwia wiele wędrówek, przez samą polanę prowadzą dwa szlaki turystyczne oraz ścieżka edukacyjna. W projekcie wykorzystano wiele rozwiązań ekologicznych, które idealnie pasują do projektowanej lokalizacji.