Sofiia Skarzhenko

Promotor

prof. dr hab. inż. arch. Mateusz Gyurkovich

Recenzent

dr inż. arch. Piotr Langer

Tytuł pracy

Budynek Wielorodzinny w osiedlu w Kijowie.

Jednostka dyplomująca

A9 – Katedra Urbanistyki i Architektury Struktur Miejskich

Opis idei projektu

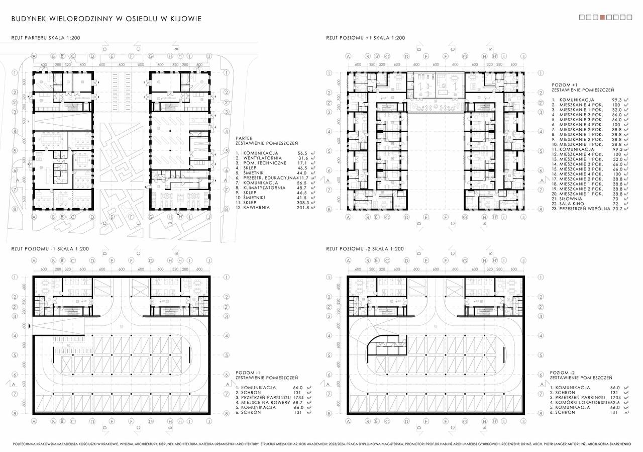
W czasach wojny, kiedy wszystko zdaje się niszczeć, to właśnie tworzenie piękna i trwanie przy życiu jest naszą najpotężniejszą formą oporu i nadziei. Projekt zakłada przekształcenie terenu dawnej, nieczynnej fabryki w nowoczesną przestrzeń mieszkalną, która będzie odpowiadać na współczesne potrzeby społeczności, ze szczególnym uwzględnieniem bezpieczeństwa i integracji społecznej. Koncepcja urbanistyczna opiera się na stworzeniu półotwartych kwartałów, które umożliwiają mieszkańcom łatwą komunikację i integrację. Układ ten pozwala na wykształcenie kameralnych przestrzeni wewnętrznych, które płynnie przenikają w inne otwarte przestrzenie, sprzyjając budowaniu więzi sąsiedzkich. Przestrzeń była stworzona z myślą o dostępie dla wszystkich warstw społeczeństwa również dla osób z niepełnosprawnościami. Zróżnicowanie wysokości zabudowy – wyższe budynki od strony północnej i niższe od strony południowej – mają na celu zapewnienie jak najlepszego oświetlenia całej przestrzeni, co pozytywnie wpływa na komfort życia mieszkańców. Projektowany obszar został podzielony na dwie części pasem zielonym – parkiem, na osie parku znajduje się dominanta – wysoki budynek w kształcie cylindra. Bezpieczeństwo mieszkańców jest kluczowym założeniem projektu, szczególnie w kontekście obecnej sytuacji wojennej na Ukrainie. W odpowiedzi na te wyzwania budynek został zaprojektowany z myślą o maksymalnej ochronie. Konstrukcja z żelbetu, wzmocnione ściany na poziomie podziemnym oraz parterowym, a także przewidziane schrony, gwarantują mieszkańcom bezpieczne schronienie w razie zagrożenia. Budynek składa się z trzech części: dwóch mieszkalnych oraz łącznika o funkcji społecznej. Przestrzenie wspólne są integralnym elementem projektu, z uwagi na konieczność utrzymania relacji społecznych nawet w trudnych warunkach, takich jak godzina policyjna czy kwarantanna. W celu zapewnienia dodatkowej ochrony każde okno i balkon zostały wyposażone w aluminiowe żaluzje, które nie tylko ochronią przed nadmiernym słońcem, ale również zwiększą bezpieczeństwo w przypadku eksplozji.