Wojciech Rybiński

Promotor

dr inż. arch. Marcin Głuchowski

Recenzent

dr inż. arch. Krzysztof Petrus

Tytuł pracy

Centrum sportu dla osób z niepełnosprawnościami w kontekście projektowania uniwersalnego w Katowicach

Jednostka dyplomująca

Katedra Projektowania Architektonicznego A-6

Opis idei projektu

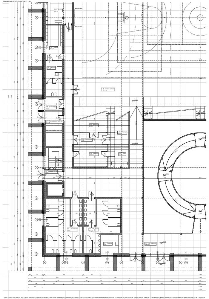
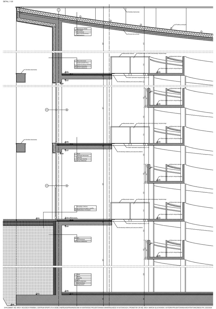
Założeniem projektu było stworzenie miejsca, gdzie ludzie z niepełnosprawnościami będą mieli dostęp do aktywności ruchowych oraz przestrzeni, gdzie będzie można doświadczyć jakie przeszkody panują w przestrzeni publicznej dla ludzi o ograniczonych możliwościach poruszania się. Pięć budynków oraz boiska zostały rozłożone na siatce 3×3.  Formy czterech obiektów zostały zaprojektowane na planie kwadratu. Piąty budynek został wyróżniony kształtem oraz wysokością. Wszystkie obiekty zostały otoczone siatką słupowo-belkową, która pełni funkcję konstrukcyjną oraz nadaje rytmu całości założenia. Cały projekt tworzono z uznaniem zasad projektowania uniwersalnego, dlatego dominantami są pochylnie znajdujące się w budynkach oraz przy boiskach. Stanowią one główną drogę komunikacyjną, oraz są to dominanty przestrzeni. Rampy zaprojektowano na bazie kontrastu, kwadrat w kole i koło w kwadracie. Okrągły budynek został podzielony na pół, połowa koła stanowi przestrzeń funkcjonalno-użytkową, druga połowa została wydzielona tylko dla ramp. Kwadrat natomiast został zaprojektowany w 100% symetrycznie.