Mateusz Kołacz

Promotor

dr inż. arch. Przemysław Bigaj

Recenzent

dr hab. inż. arch. Piotr Burak-Gajewski, prof. PK

Tytuł pracy

Transgraniczne centrum ochrony ekosystemu rzeki Bug przy granicy polsko – ukraińskiej w miejscowości Strzyżów

Jednostka dyplomująca

Katedra Projektowania Architektonicznego A-6

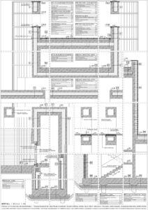
Opis

Projektowany kompleks obiektów o charakterze edukacyjnym i kontemplacyjnym, związanym z ekosystemem rzeki Bug, ma na celu stworzenie przestrzeni sprzyjającej twórczej myśli oraz wymianie doświadczeń naukowych i społecznych. Założenie stanowi miejsce, w którym zarówno polscy, jak i ukraińscy naukowcy i eksperci oraz lokalni mieszkańcy, będą mogli dzielić się wiedzą i doświadczeniami na temat ochrony rzeki Bug i jej transgranicznego znaczenia. Założenie, które łączy funkcje edukacyjne, kontemplacyjne i badawcze, może przyczynić się do lepszego zrozumienia i ochrony tego cennego środowiska. Dzięki międzynarodowej współpracy z naukowcami z Polski i Ukrainy, możliwe będzie lepsze zrozumienie i wspólne opracowywanie strategii ochrony ekosystemu rzeki. Być może właśnie w takich ważnych lokalizacjach, szczególnej ochrony krajobrazu, wznoszenie tego typu obiektów może przyczynić się do zwiększenia świadomości ekologicznej i wsparcia działań ochronnych, w zgodzie z zasadami zrównoważonego rozwoju z poszanowaniem dla środowiska naturalnego i przyniesie realne korzyści, zarówno lokalnym społecznościom, jak i globalnej ochronie środowiska. Badania dotyczą roli rzeki jako bariery, ale i łącznika między państwami. Autor proponuje rozwiązania w postaci mostów i galerii, które podkreślą różnorodność kulturową i regionalne więzi, nie rezygnując z granic.