Adam Wojtas

Promotor

dr inż. arch. Elżbieta Waszczyszyn, prof.PK

Recenzent

dr hab. inż. arch. Anna Kulig, prof.PK

Tytuł pracy

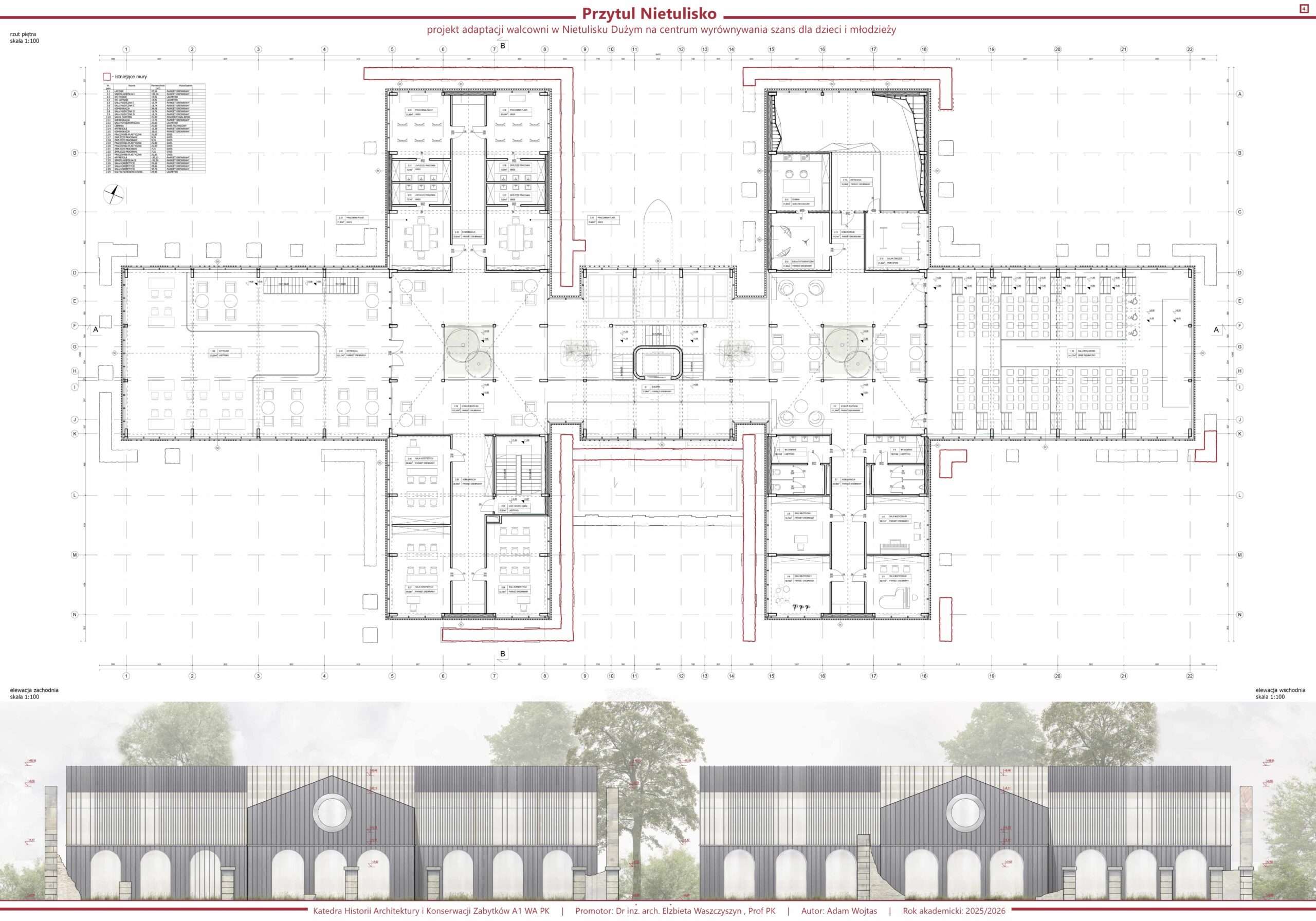
Przytul Nietulisko – Projekt adaptacji walcowni w Nietulisku Dużym na centrum wyrównywania szans dla dzieci i młodzieży.

Jednostka dyplomująca

A-01

Opis idei projektu

Ideą projektu było odwołanie się do pierwotnego i podstawowego pragnienia każdego człowieka, aby być bezpiecznym, otoczonym opieką oraz przytulonym. Misja ta jest realizowana za pomocą adaptacji ruin dawnej walcowni w Nietulisku Dużym na centrum wyrównywania szans dla dzieci i młodzieży. Obiekt nastawiony niegdyś na produkcję i zysk zmieniony został w miejsce budowania i wzrostu wartości zdecydowanie bardziej ulotnych niż blacha i stal. Centrum stanowi bezpieczne środowisko do nauki, zacieśniania więzi społecznych, zyskania nowych oraz szlifowania posiadanych już umiejętności. Bogaty program użytkowy sprawia, że ośrodek jest atrakcyjny dla zróżnicowanej grupy odbiorców. Coś dla siebie znajdą tu zarówno osoby aktywne fizycznie, jak i te nastawione na rozwój umysłowy i duchowy. Dawny teren zakładowy został przekształcony w zieloną oazę z wytyczonymi alejkami, ścieżkami rowerowymi, zbiornikiem retencyjnym i plażą, a poprzez zastosowaną konstrukcję z CLT i centrum służy nie tylko lokalnej społeczności, ale też środowisku.