Aleksandra Słowik 

Promotor

dr hab. inż. arch. Jolanta Sroczyńska, prof. PK

Recenzent

prof. dr hab. inż. arch. Magdalena Jagiełło-Kowalczyk

Tytuł pracy

Adaptacja Kina Wanda wraz z budynkami sąsiadującymi na wielofunkcyjną przestrzeń kultury, twórczości i filmu.

Jednostka dyplomująca

A-01

Opis idei projektu

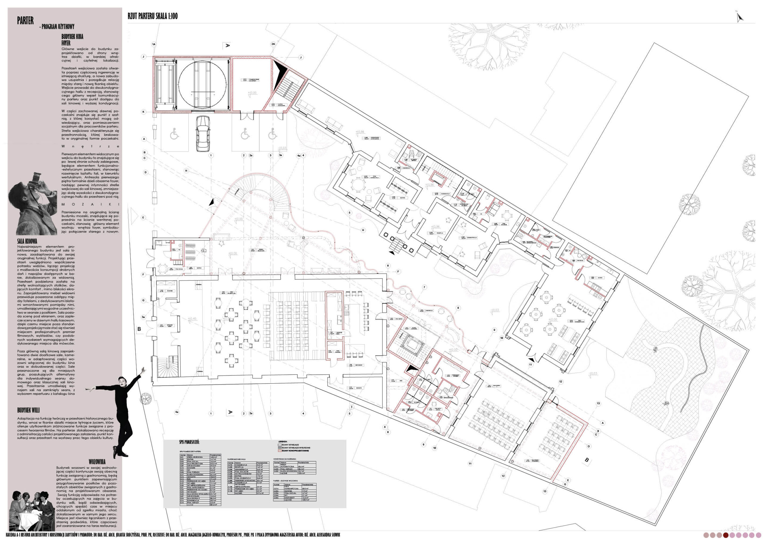
Tematem niniejszej pracy dyplomowej jest projekt adaptacji budynku Kina Wanda wraz z sąsiadującymi budynkami willi oraz dawnej wozowni, na obiekt kultury odpowiadający potrzebom współczesnych odbiorców. Głównym celem projektu jest przywrócenie pierwotnej funkcji obiektu oraz jej współczesna interpretacja. Projekt obejmuje adaptację sali kinowej, poszerzając jej tradycyjne przeznaczenie o doświadczenia wielozmysłowe, w przestrzeni zaaranżowanej swobodniej od klasycznego układu tego typu pomieszczeń. Koncepcja ta stanowi odpowiedź na obserwowaną tendencję postępującego spadku frekwencji w kinach tradycyjnych, przywracając strukturze miasta miejsce o istotnej wartości kulturowej i społecznej. Obiekt łączy zróżnicowane funkcje, sprzyjające interakcjom społecznym występującym przy okazji wydarzeń kulturowych o różnej skali. Budynek willi przekształcony został w miejsce twórczego działania osób zainteresowanych sztuką filmową. Odpowiednie sale i wyposażenie zapewniają przestrzeń dla twórców reprezentujących różne grupy wiekowe. Całość projektu odpowiada na problem zanikania miejsc kultury i rozrywki, przeznaczonych głównie dla mieszkańców Krakowa, w ścisłym, historycznym centrum miasta.