Julia Łukaszewska

Promotor

Dr inż. arch. Krzysztof Petrus

Recenzent

Prof. dr inż. arch. Wacław Celadyn

Tytuł pracy

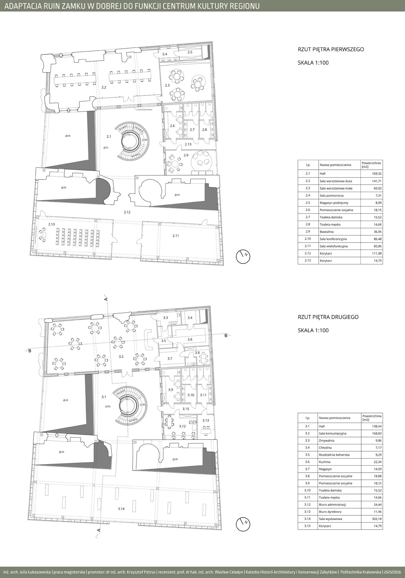
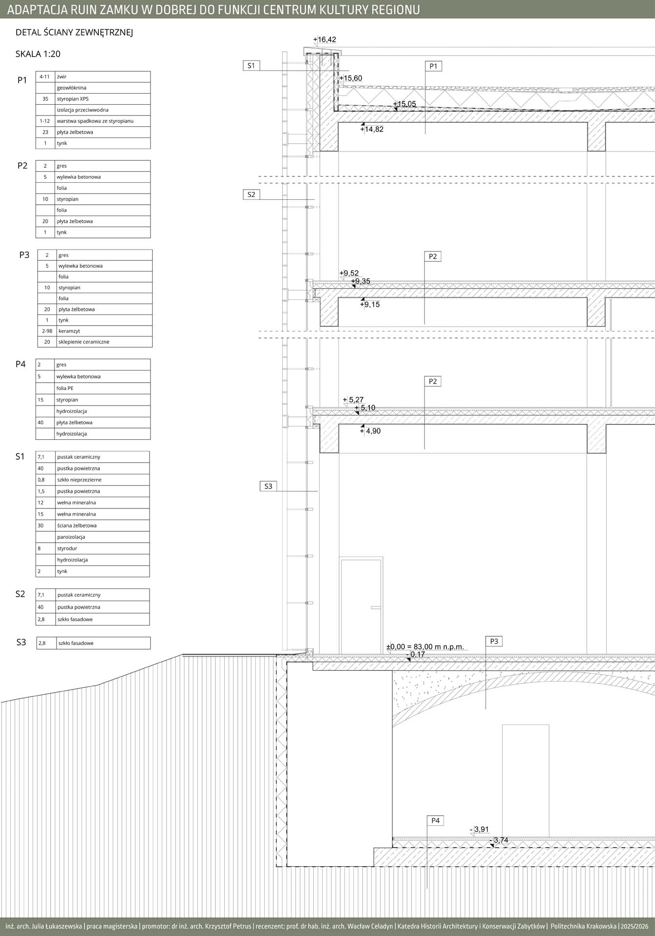
ADAPTACJA RUIN ZAMKU W DOBREJ DO FUNKCJI CENTRUM KULTURY REGIONU

Jednostka dyplomująca

A-01

Opis idei projektu

Projekt zakłada adaptację ruin zamku w Dobrej (powiat łobeski) do funkcji centrum kultury regionu, łączącego działalność edukacyjną, społeczną, rekreacyjną oraz promocyjną. Głównym celem koncepcji jest przywrócenie historycznemu założeniu znaczenia jako miejsca integracji lokalnej społeczności, przy jednoczesnym zachowaniu i wyeksponowaniu jego zabytkowej substancji. Obiekt ma stać się przestrzenią aktywną, dostępną i atrakcyjną zarówno dla mieszkańców, jak i turystów.
Program funkcjonalny obejmuje przestrzenie edukacyjne w postaci sal warsztatowych i wystawienniczych, umożliwiających prowadzenie zajęć, ekspozycji oraz działań popularyzujących historię i kulturę regionu. Uzupełnieniem są strefy wypoczynku, takie jak restauracja oraz bawialnia, sprzyjające codziennemu użytkowaniu obiektu. Ważnym elementem projektu jest także promocja lokalnej kultury poprzez salę konferencyjną oraz sklepy z lokalnymi produktami i pamiątkami, wspierające regionalnych twórców i rzemieślników. Forma architektoniczna opiera się na idei dialogu między dawną a współczesną architekturą. Zachowane mury zamku zostały wkomponowane w nowoczesną bryłę, której forma i detale nawiązują do historycznych tradycji architektonicznych Pomorza Zachodniego. Układ przestrzenny bazuje na historycznym rzucie budynku, z czytelnym dziedzińcem i zabudową w kształcie litery U. Zastosowane rozwiązania, takie jak otwory w stropach oraz wachlarzowa klatka schodowa, umożliwiają ekspozycję ruin na całej ich wysokości i podkreślają ciągłość historii miejsca. Projekt łączy ochronę dziedzictwa z nową funkcją społeczną, nadając ruinom trwałe i współczesne znaczenie. oraz część turystyczną, które koegzystują bezkolizyjnie. Projekt jest próbą stworzenia modelowej przestrzeni, która stymuluje rozwój dzieci poprzez bezpośredni kontakt z przyrodą, jednocześnie wspierając turystyczny potencjał regionu.