Patrycja Wieczorek

Promotor

dr inż. arch. Elżbieta Waszczyszyn, prof.PK

Recenzent

dr hab. inż. arch. Anna Kulig, prof.PK

Tytuł pracy

Usłyszeć Ciszę. Projekt centrum dla głuchoniemych w zabytkowych ruinach klasztoru Santa Maria del Piano we Włoszech.

Jednostka dyplomująca

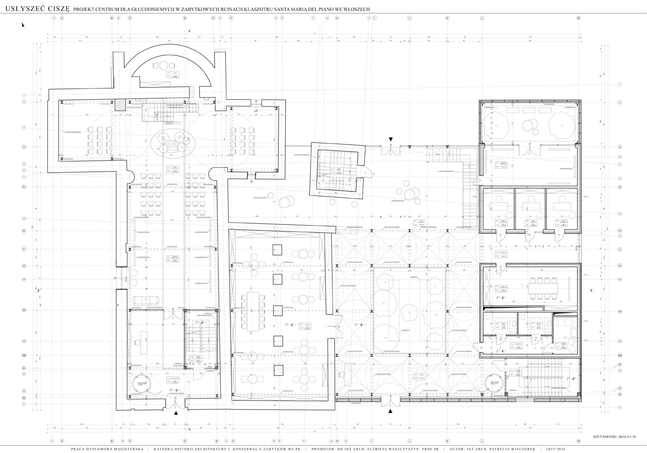
A-01

Opis idei projektu

Ideą projektu dyplomowego jest adaptacja zabytkowych ruin dawnego zespołu klasztornego Santa Maria del Piano we Włoszech do nowej, społecznie istotnej funkcji – centrum dla osób głuchoniemych – przy jednoczesnym zachowaniu i ochronie autentycznej substancji zabytkowej. Projekt stanowi próbę odpowiedzi na współczesne potrzeby użytkowe i społeczne, prowadząc dialog pomiędzy historycznym dziedzictwem architektury sakralnej a współczesnymi środkami wyrazu architektonicznego. Dawny klasztor, położony w odosobnieniu, wśród zalesionych wzgórz, zachowuje silny wymiar kontemplacyjny i symboliczny, który stał się punktem wyjścia do zaprojektowania przestrzeni sprzyjającej wyciszeniu, skupieniu i komunikacji niewerbalnej. Funkcja centrum dla osób głuchoniemych została dobrana w sposób świadomy – cisza, będąca naturalnym elementem doświadczenia użytkowników, zyskuje tu rangę wartości, a nie ograniczenia. Projekt zakłada zachowanie ruin w stanie trwałej ruiny, przy jednoczesnym ich zabezpieczeniu oraz czytelnym, współczesnym uzupełnieniu brakujących fragmentów zespołu. Szczególną rolę odgrywa subtelne odtworzenie wschodniego skrzydła klasztoru oraz wirydarza, które przywracają czytelność historycznego układu przestrzennego bez stosowania dosłownej rekonstrukcji. Nowe interwencje architektoniczne zostały zaprojektowane w sposób jednoznacznie odróżnialny od substancji historycznej, zgodnie z aktualnymi zasadami konserwatorskimi. Zastosowanie lekkiej, samonośnej konstrukcji z siatki stalowej symbolicznie nawiązuje do nieistniejących już struktur średniowiecznych, których pierwotnej postaci nie jesteśmy dziś w stanie odtworzyć. Przez swoją transparentność i niematerialny charakter nowa struktura nie konkuruje z zabytkową tkanką, lecz tworzy z nią relację dialogu i dopełnienia.