Wojciech Młynek

Promotor

prof. dr hab. inż. arch. Zbigniew Wikłacz

Recenzent

dr inż. arch. Maciej Skaza

Tytuł pracy

Stacja kultura-Adaptacja dworca kolejowego w Tarnowie

Jednostka dyplomująca

A-01

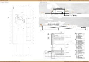
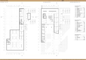
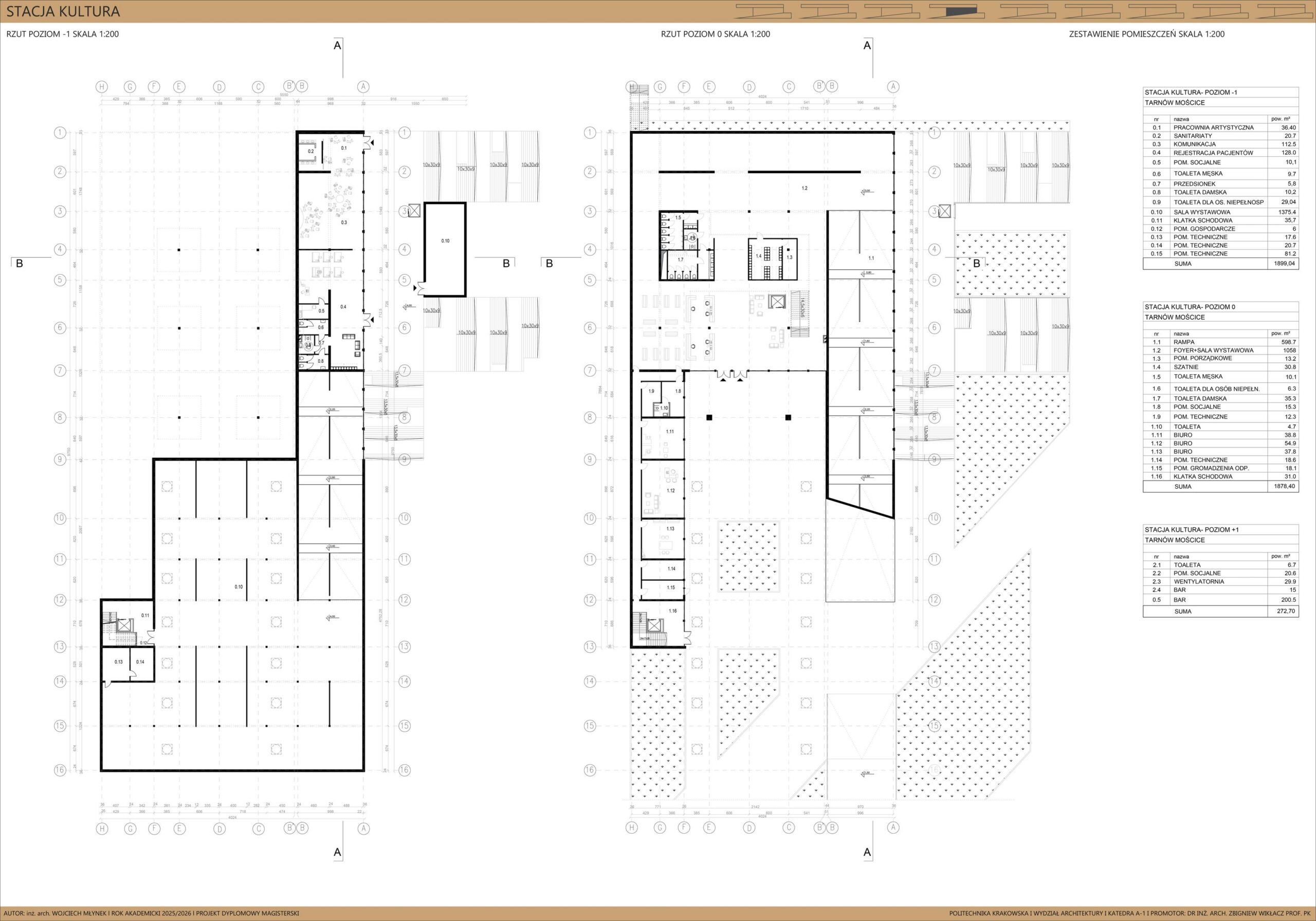
Opis idei projektu

Dworzec kolejowy Tarnów-Mościce jest doskonałym przykładem modernistycznej architektury polskiej oraz infrastruktury kolejowej lat siedemdziesiątych XX wieku. Obiekt ten charakteryzuje się monumentalnością typową dla modernistycznego stylu, wyróżniając się na tle innych dworców jednoprzestrzennym układem funkcjonalnym, dwukondygnacyjnością z antresolą oraz niemal całkowicie przeszkloną bryłą. W wyniku przemian ekonomiczno-społecznych budynek dworca przez lata powoli niszczał i został wyłączony z użytku pasażerskiego. Natomiast w 2021 roku został wpisany do rejestru zabytków. W poniższym eseju naukowym została szczegółowo poruszona problematyka dworców modernistycznych oraz ich wpływ na tkankę miasta. Dzięki analizie porównawczej ukazuje się obraz istoty adaptacji, modernizacji i rewitalizacji takich miejsc. Wyciągnięte wnioski posłużyły w opracowaniu projektu adaptacji Dworca kolejowego Tarnów – Mościce, oraz uwypukliły problemy z jakimi budynki infrastruktury kolejowej muszą się aktualnie zmagać i jak należy z nimi pracować. Celem niniejszej pracy dyplomowej jest opracowanie koncepcji rewitalizacji budynku dworca kolejowego w Tarnowie – Mościcach. Projekt uwzględnia zarówno ochronę konserwatorską istniejącego budynku jak i adaptację na współczesne potrzeby funkcjonalne oraz społeczne. Adaptacja nowych funkcji, jak przestrzeń wystawowa na nowo pozwala włączyć dworzec w życie miasta i lokalnej tożsamości. Przywrócenie tego miejsca nie jest tylko procesem techniczno projektowym, lecz doskonałym narzędziem, które przez lata stanowiło istotny element tożsamości dzielnicy.