Agnieszka Peciak

Promotor

dr inż. arch. Jakub Turbasa

Recenzent

dr inż. arch. Zbigniew Wikłacz

Tytuł pracy

Hotel Klinkier Katowice

Jednostka dyplomująca

Katedra Architektury Miejsc Pracy, Sportu i Usług, A-2

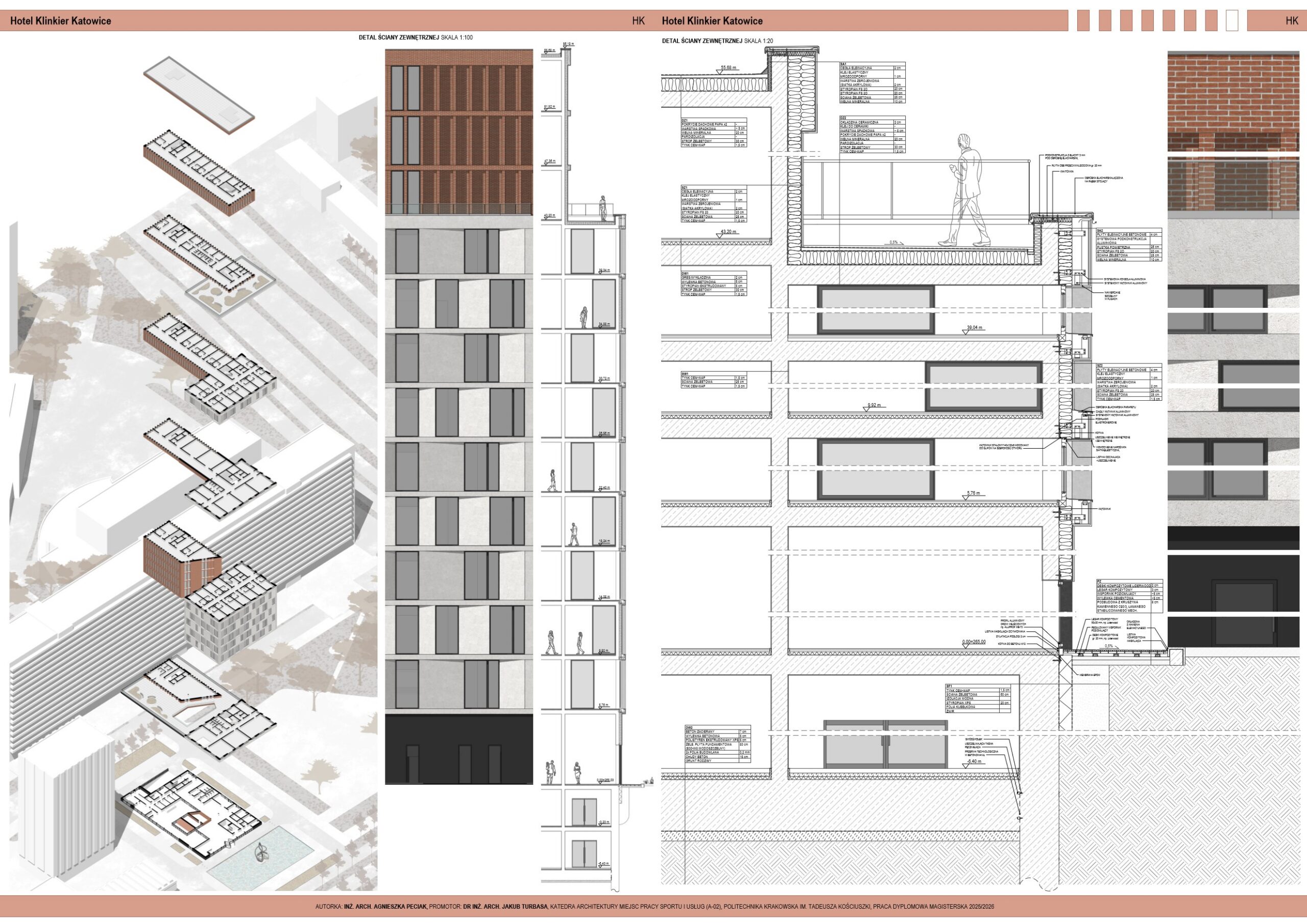
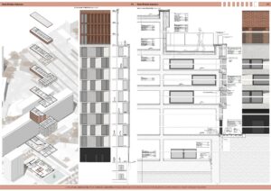
Opis idei projektu

Punktem wyjścia dla projektu jest prostopadłościenna bryła, z której po wycięciu kilku elementów powstała ogólna forma hotelu. Jego kubatura a przede wszystkim wysokość została dopasowana do lokalizacji w wyniku analiz otoczenia. W taki sposób ukształtowana została kompozycja trzech elementów: niskiej podstawy oraz dwóch skrzydeł, jednego smukłego, wysokiego oraz niższego, masywnego. Oba skrzydła są osadzone na wyodrębnionej części parteru. Bryła została następnie wzbogacona o otwarcie perspektywiczne poprzez odsłonięcie widoku po obu stronach tarasów na panoramę Katowic i Spodek. Parter jest zaprojektowany jako najbardziej publiczna strefa w całym budynku. Znajduje się na nim restauracja, strefa wejściowa do hotelu oraz lobby. Na pierwsze piętro, na którym znajduje się taras widokowy prowadzą reprezentatywne schody otwierające się na widok Spodka. Na drugiej kondygnacji została zaprojektowana także kawiarnia dostępna z tarasu oraz sale konferencyjne znajdujące się w drugim skrzydle. Obiekt wykończony został trzema dominującymi materiałami imitującymi beton, cegłę oraz czarny tynk. Nazwa Hotelu Klinkier wywodzi się z materiału wykończeniowego zastosowanego na elewacji, a materiały te nawiązują do lokalnej tradycji budowania z cegły. Dla większego kontrastu elewacje różnią się nie tylko materiałem wykończeniowym, ale również kształtem i rozmieszczeniem okien. W otoczeniu budynku przewidziano rozległy, płytki basen, na środku którego widnieje rzeźba kontrastująca do budynku przez swój organiczny, opływowy kształt. Przed głównym wejściem poprowadzono dojazd dla pojazdów uprawnionych. Wokół obiektu zaprojektowano niską zieleń, tereny utwardzone, chodniki oraz parkingi.