Joanna Płonka

Promotor

dr inż. arch. Marta Łukasik

Recenzent

dr inż. arch. Bogdan Siedlecki, prof. PK

Tytuł pracy

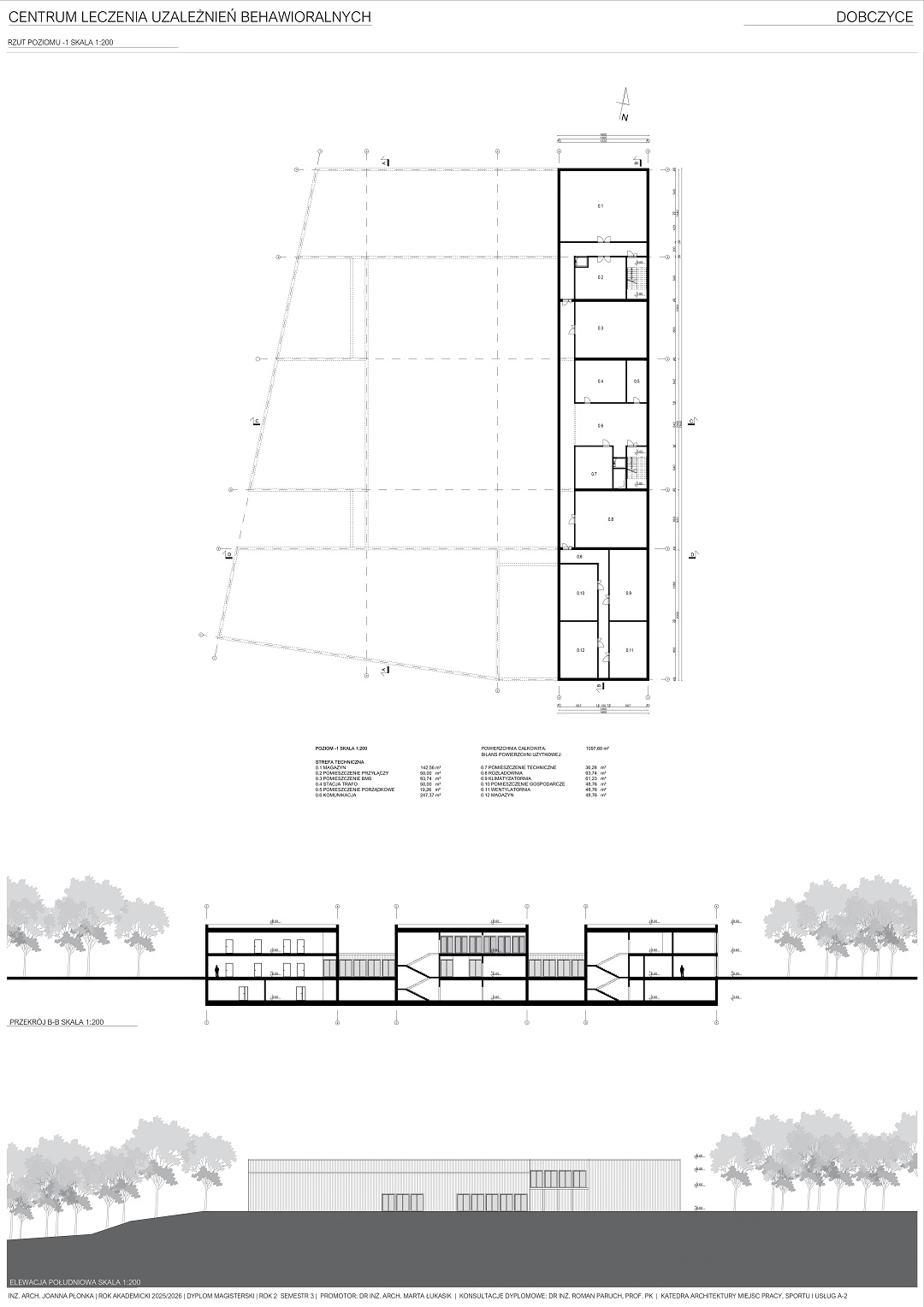
Centrum leczenia uzależnień behawioralnych

Jednostka dyplomująca

Katedra Architektury Miejsc Pracy, Sportu i Usług, A-2

Opis idei projektu

Projekt centrum leczenia uzależnień stworzony jest z myślą o młodych ludziach pragnących wyjść z uzależnienia w przyjaznej atmosferze oraz przestrzeni. Obiekt jest przeznaczony dla osób zmagających się z uzależnieniami behawioralnymi w wieku 13-18 lat. Na terenie obiektu pacjenci będą przechodzić terapię uzależnień oraz wykonywać różnego rodzaju aktywności fizyczne jak i społeczne. Głównym celem jest stworzenie funkcjonalnej przestrzeni dla pacjentów, które spełni wszystkie ich potrzeby.
Bryła budynku składa się z pięciu mniejszych obiektów, każda z nich wyznacza inną funkcję. Całość założenia otoczona jest drewnianą pergolą, która w delikatny sposób wyznacza granice budynku. Wysokość budynków zaczerpnięta jest z otaczającej zabudowy w oddali, gdyż działka pokryta jest sporą ilością drzew. Elewacja budynku została wpisana w otoczenie poprzez zastosowanie na niej drewnianych materiałów. Ponadto każdy z budynków posiada liczne przeszklenia, które przybliżają nas do natury.
Budynek będzie działać w trybie ambulatoryjnym wraz z leczeniem stacjonarnym. Oznacza to, że pacjenci będą mogli przychodzić na terapie indywidualne lub będą przechodzić długotrwały proces leczenia. Wnętrze zaprojektowane zostało z myślą o stworzeniu miejsca z poczuciem bezpieczeństwa. Centrum leczenia uzależnień skupia się na wyleczeniu pacjenta poprzez zapewnienie terapii warsztatowej, grupowej oraz indywidualnej. Obiekt został zaprojektowany w taki sposób, aby przybliżyć użytkownika do otaczającej go natury, co dobrze wpływa na szybszą poprawę stanu zdrowia. Wewnątrz budynku stworzono wewnętrzny dziedziniec, na którym można spędzać czas wolny nie opuszczając budynku. Budynek ma na celu służyć pacjentom w powrocie do zdrowia i wyjścia z uzależnienia. Architektura obiektu będzie wpływać na poprawę kondycji psychicznej pacjentów oraz dążyć do poprawy samopoczucia.