Julia Podraza

Promotor

dr inż. arch. Manezha Dost

Recenzent

prof. dr hab. inż. arch. Wacław Celadyn

Tytuł pracy

: Agora OdNowa – redefinicja roli targowiska w strukturze współczesnego miasta. Projekt wielofunkcyjnego budynku targowego w Jaśle.

Jednostka dyplomująca

Katedra Architektury Miejsc Pracy, Sportu i Usług, A-2

Opis idei projektu

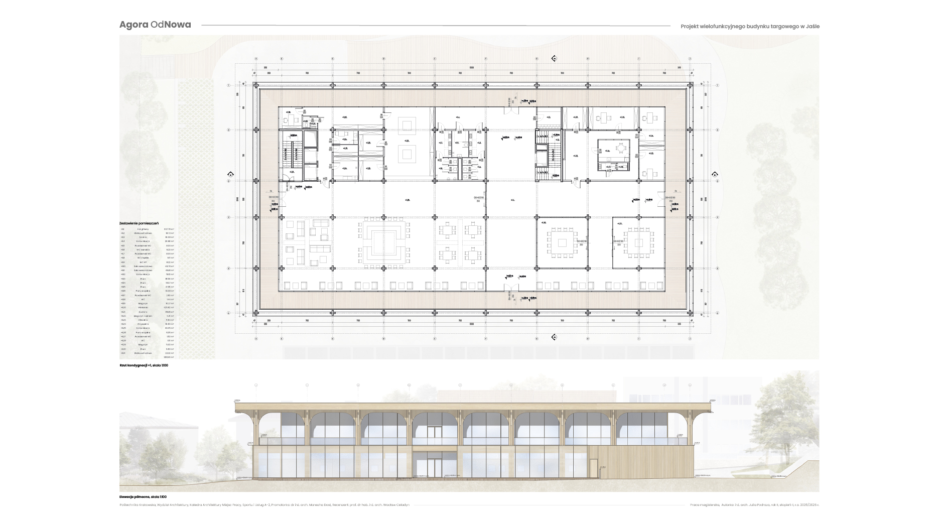
Przedmiotem niniejszej pracy magisterskiej jest projekt nowoczesnego, wielofunkcyjnego targowiska w mieście Jasło, który stanowi współczesną interpretację tradycyjnej agory jako kluczowej przestrzeni publicznej w mieście. Głównym celem projektu było stworzenie elastycznej przestrzeni handlowej, aktywnej w różnych porach dnia i roku, a także zmiana postrzegania bazarów jako zaniedbanych przestrzeni publicznych w mieście. W tym celu opracowane zostały zasady, jakie spełniać powinny współcześnie projektowane i rewitalizowane targowiska, których przykładem realizacji jest poniższy projekt. Istotnym zagadnieniem pracy jest także rewitalizacja zdegradowanego obszaru Jasła. Teren opracowania, będący bramą wjazdową do centrum miasta od strony północnej, posiada dotychczas niewykorzystany potencjał urbanistyczny. Projekt targowiska został potraktowany jako impuls rozwojowy, mogący zainicjować procesy rewitalizacyjne w skali szerszego obszaru miasta. Koncepcja architektoniczna opiera się na integracji w założeniu targowym funkcji handlowych, społecznych i rekreacyjnych. Integralną częścią projektu jest kształtowanie przestrzeni publicznych. Przed budynkiem zaprojektowano plac miejski, który pełni funkcję handlową i aktywizuje lokalną społeczność. Założenie dopełnia nadrzeczny park w formie bulwarów, który stanowi wyraźny zwrot miasta ku pobliskiej rzece Jasiołce. W jego zielonym otoczeniu wkomponowano pawilon upamiętniający zniszczenia miasta podczas II wojny światowej.