Karolina Nożownik

Promotor

dr inż. arch. Marta Łukasik

Recenzent

dr inż. arch. Bogdan Siedlecki, prof. PK

Tytuł pracy

Architektura jako narzędzie kreowania narracji marki: rola przestrzeni w budowaniu doświadczeń marki

Jednostka dyplomująca

Katedra Architektury Miejsc Pracy, Sportu i Usług, A-2

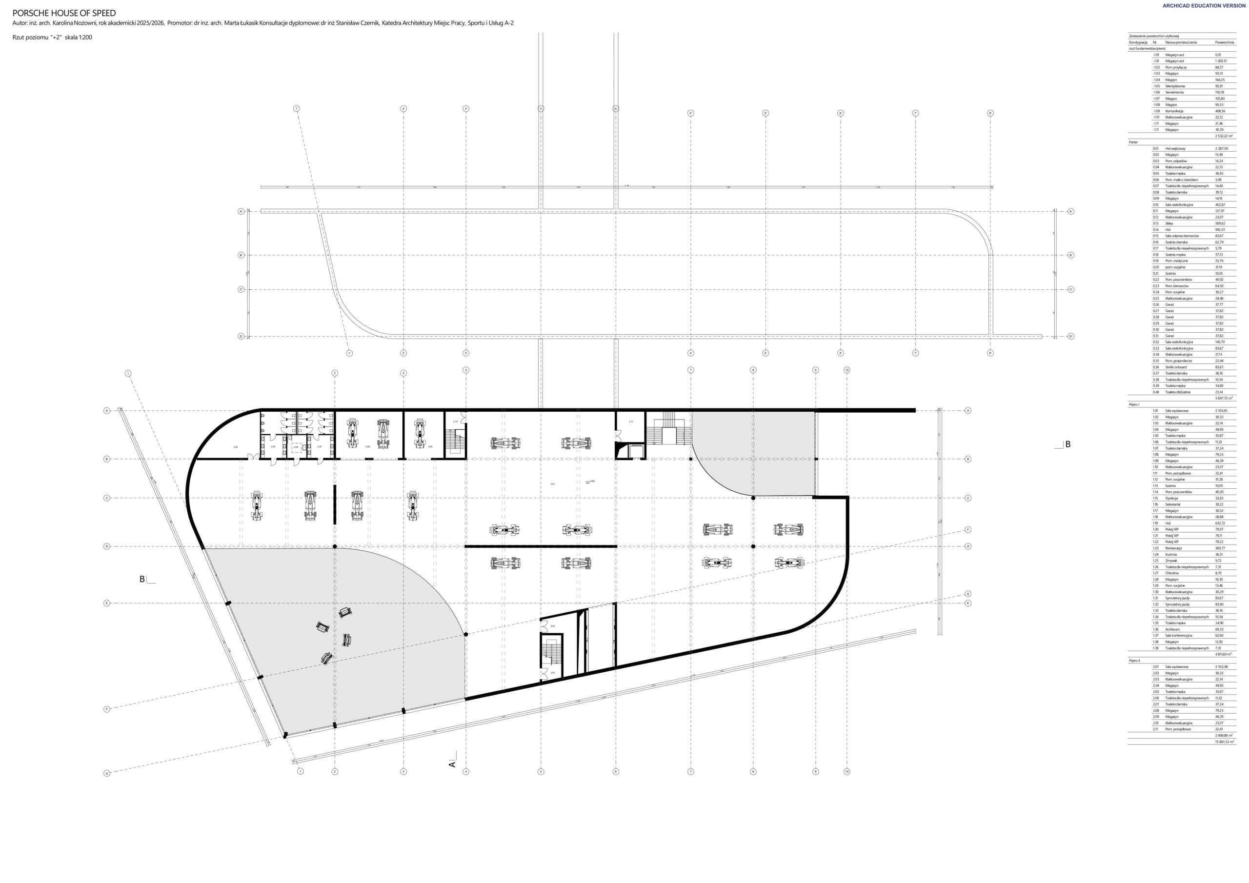
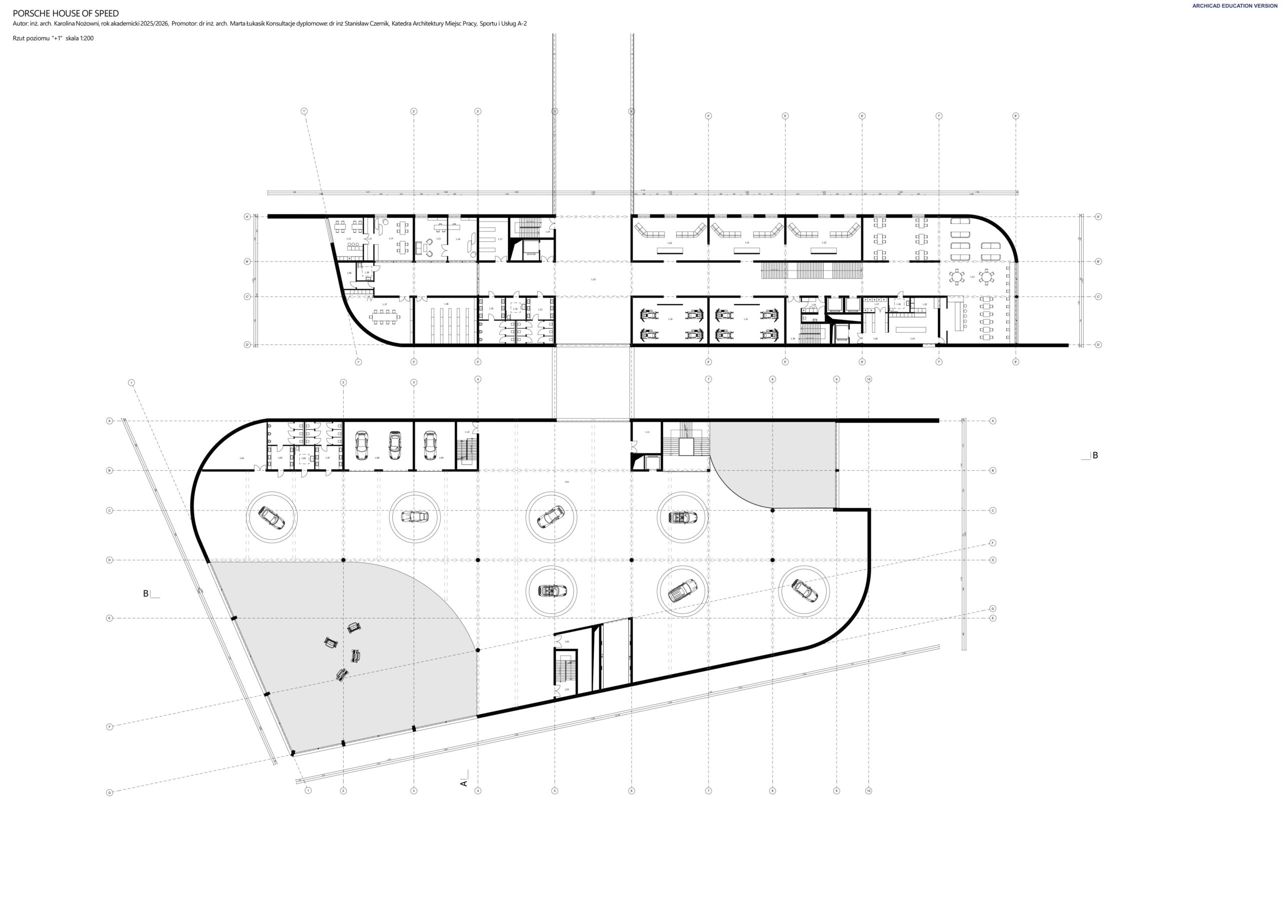
Opis idei projektu

Praca dyplomowa podejmuje zagadnienia kreowania architektury jako narzędzie narracji marki. Celem pracy jest ukazanie w jaki sposób architektura może
komunikować wizerunek marki. W części teoretycznej omówiono historię rozwoju motoryzacji i sportów wyścigowych. Uwzględniając wpływ postępku
technologicznego na infrastrukturę torów wyścigowych. Następnie przedstawiono historię marki Porsche i jej identyfikację wizualną. Kolejne rozdziały poświęcone
zostały pojęciu doświadczania marki jako medium komunikacyjnego. W części analitycznej zaprezentowano studium przypadku Muzeum Porsche w Stuttgarcie oraz
wybranych torów wyścigowych. Obrazując, w jaki sposób architektura wpływa na narrację marki. Praca dowodzi, że odpowiednio zaprojektowana przestrzeń stanowi
istotny element strategii marki.