Magdalena Nowotarska

Promotor

dr inż. arch. Marta Łukasik

Recenzent

dr inż. arch. Bogdan Siedlecki, prof. PK

Tytuł pracy

“RESPIRO” Szpital na wodzie w Wenecji

Jednostka dyplomująca

Katedra Architektury Miejsc Pracy, Sportu i Usług, A-2

Opis idei projektu

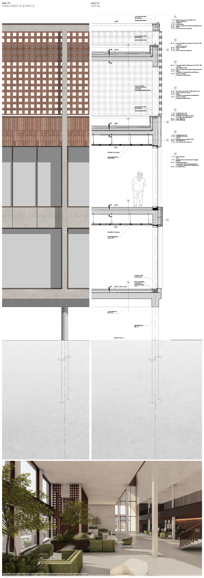
Projekt „Respiro” to koncepcja szpitala na wodzie w Wenecji, zaprojektowanego z myślą o harmonijnym wpisaniu się w historyczne otoczenie dzielnicy Canareggio. Forma budynku, jego skala, materiały i kolorystyka zostały dopasowane do istniejącej zabudowy poprzez zastosowanie kamienia naturalnego i cegły w stonowanych barwach.
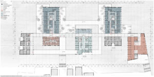
Założenie oparto na układzie pawilonowym połączonym ciągami pieszymi poprowadzonymi nad wodą, które nawiązują do weneckiego systemu kanałów i mostów. Przestrzenie te pełnią nie tylko funkcję komunikacyjną, ale również spacerową i kontemplacyjną, sprzyjając wyciszeniu i regeneracji pacjentów. Bezpośredni kontakt architektury z wodą wzmacnia relację obiektu z krajobrazem i podkreśla lokalny kontekst.
Istotnym elementem projektu jest zieleń, wprowadzona w postaci tarasów i przestrzeni rekreacyjnych. Jej zadaniem jest poprawa komfortu użytkowników oraz wspieranie procesu leczenia poprzez kontakt z naturą. Inspiracją dla struktury przestrzennej był niezrealizowany projekt szpitala Le Corbusiera w Wenecji, szczególnie idea modularności, elastyczności układów funkcjonalnych oraz możliwości etapowej rozbudowy.
Program funkcjonalny uzupełnia istniejący szpital miejski o oddziały onkologiczny i neurogeriatryczny, a także szpitalny oddział ratunkowy i przychodnię, odpowiadając na potrzeby mieszkańców i turystów. Dodatkowo projekt zakłada stworzenie ogólnodostępnych przestrzeni sprzyjających integracji szpitala z miastem. Przejrzysta struktura funkcjonalna oraz naturalne światło wprowadzane do wnętrz mają pozytywnie wpływać na samopoczucie pacjentów i personelu. Nazwa „Respiro” („oddech”) symbolizuje miejsce leczenia, regeneracji i wytchnienia – zarówno dla miasta, jak i jego użytkowników.