Wiktoria Łabinowicz

Promotor

dr hab. inż. arch. Tomasz Kapecki, prof. PK

Recenzent

prof. dr hab. inż. arch. Magdalena Jagiełło-Kowalczyk

Tytuł pracy

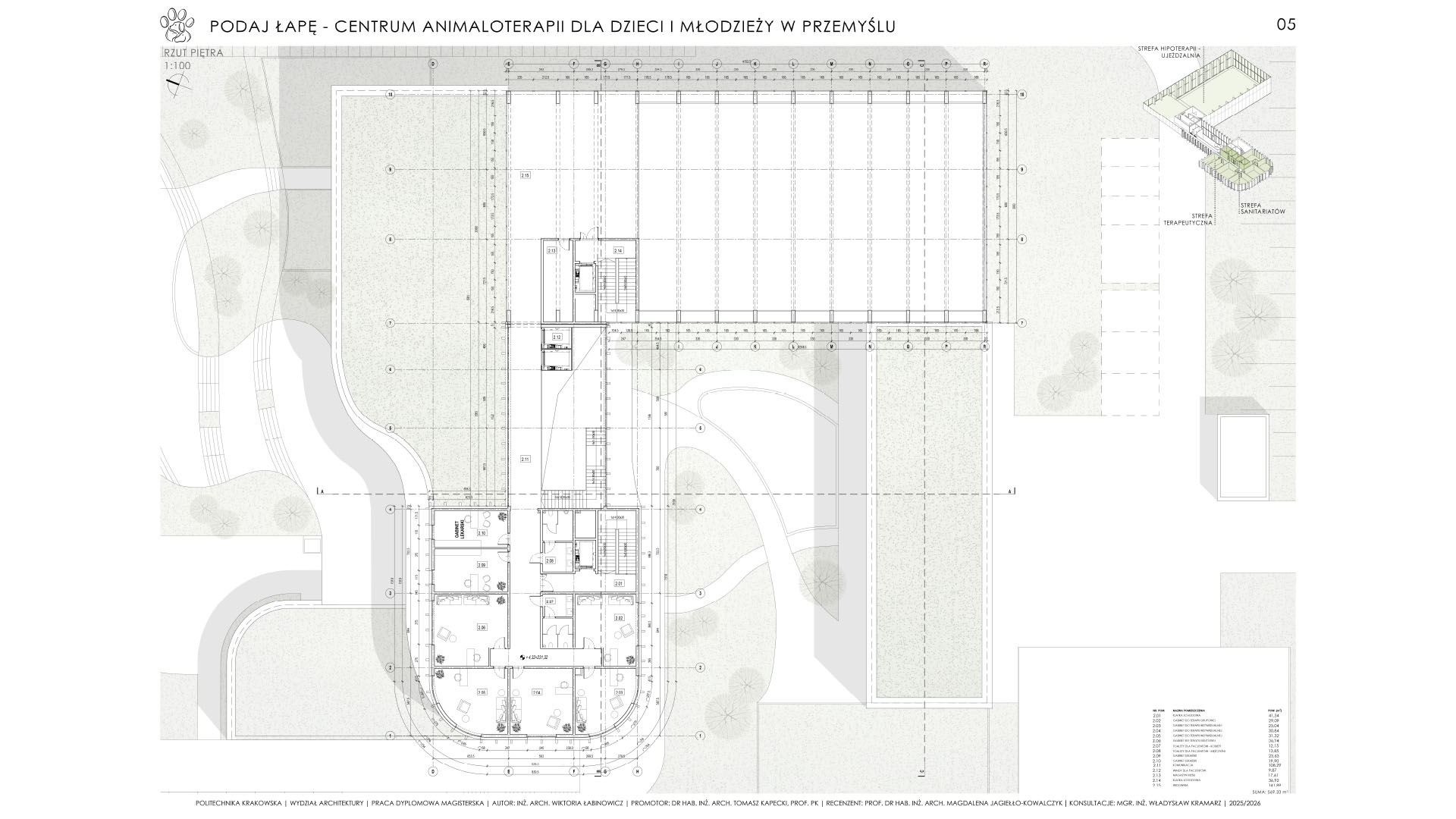
PODAJ ŁAPĘ – Koncepcja architektoniczna Centrum Animaloterapii dla dzieci i młodzieży jako przestrzeń integracji i rehabilitacji w Przemyślu

Jednostka dyplomująca

Katedra Architektury Miejsc Pracy, Sportu i Usług, A-2

Opis idei projektu

Współcześnie obserwuje się coraz większe zapotrzebowanie na różne formy terapii dla dzieci i młodzieży, wynikające z coraz częstszych zmagań z problemami psychicznymi oraz rozwojowymi, wywołane przez dynamiczne tempo życia, presje społeczną i szybko zachodzące zmiany we współczesnym świecie. W odpowiedzi na ten narastający problem społeczny, zaczęto rozwijać różne formy terapii w tym animaloterapię, która zyskuje coraz większą popularność. Część badawcza pracy obejmuje analizę historii, definicji i rodzajów animaloterapii, a także studium istniejących ośrodków terapeutycznych i pokrewnych obiektów, na podstawie których sformułowano kluczowe wnioski projektowe.

Projekt koncepcyjny Centrum Animaloterapii dla dzieci i młodzieży w Przemyślu stanowi odpowiedź na potrzebę tworzenia przestrzeni terapeutycznych wspierających zdrowie psychiczne i fizyczne najmłodszych. Głównym celem projektu było zaprojektowanie obiektu zapewniającego bezpieczne, komfortowe środowisko terapii, który uwzględnia indywidualne potrzeby dzieci i dobrostan zwierząt. Architektura ma pełnić rolę wspierająca proces terapeutyczny poprzez zastosowanie odpowiedniej skali, obłych form, naturalnych materiałów oraz poprzez harmonijne wkomponowanie jej w teren. Czytelny układ funkcjonalno-użytkowy, oparty na strefach o różnym stopniu dostępności, umożliwia stopniowe wprowadzenie użytkownika w proces terapii, zapewniając komfort, bezpieczeństwo i wyciszenie. Celem pracy było zaprojektowanie założenia, które poprzez świadomie ukształtowaną architekturę wspiera proces terapii, buduje poczucie bezpieczeństwa oraz wywołuje pozytywne emocje u dzieci i młodzieży, przy jednoczesnym poszanowaniu potrzeb zwierząt.