Agnieszka Porębska

Promotor

prof. dr hab. inż. arch. Magdalena Jagiełło-Kowalczyk

Recenzent

dr inż. arch. Maciej Skaza

Tytuł pracy

Muzeum Pamięci – Hybrydowe Schronienie w Węgierskiej Górce

Jednostka dyplomująca

Katedra Kształtowania Środowiska Mieszkaniowego A-3

Opis

Idea projektu to stworzenie w Węgierskiej Górce nowoczesnego założenia przestrzennego o charakterze muzealnym, łączącego schrony bojowe z 1939 roku z ścieżką edukacyjno-rekreacyjną oraz systemem pawilonów tematycznych i głównym budynkiem Muzeum Pamięci. Istniejące schrony to obiekty ogrywające kluczową rolę w obronie południowych granic Polski. Projekt zakłada ich pełne zachowanie w pierwotnej formie jako trwałe znaki wydarzeń kampanii wrześniowej.
Przestrzenna koncepcja prowadzi odwiedzającego przez kolejne etapy opowieści o przebiegu II wojny światowej. Zwiedzanie rozpoczyna się przy schronie „Waligóra”, gdzie pawilon o nazwie „Granica 1939” pokazuje kontekst polityczny i militarny końca lat 30. Kolejnym etapem ekspozycji jest dom na schronie „Włóczęga”, który opowiada o codziennym życiu mieszkańców funkcjonujących w obliczu nadchodzącego konfliktu. Centralną część założenia stanowi schron „Wędrowiec” i budynek Muzeum Pamięci. Następnie ścieżka prowadzi do schronu „Wąwóz”, gdzie znajduje się pawilon immersyjny „Echa Ziemi”. Zwieńczeniem szlaku jest schron „Wyrwidąb”, pełniący funkcję półotwartego pawilonu krajobrazowego, w którym historia ustępuje miejsca refleksji.
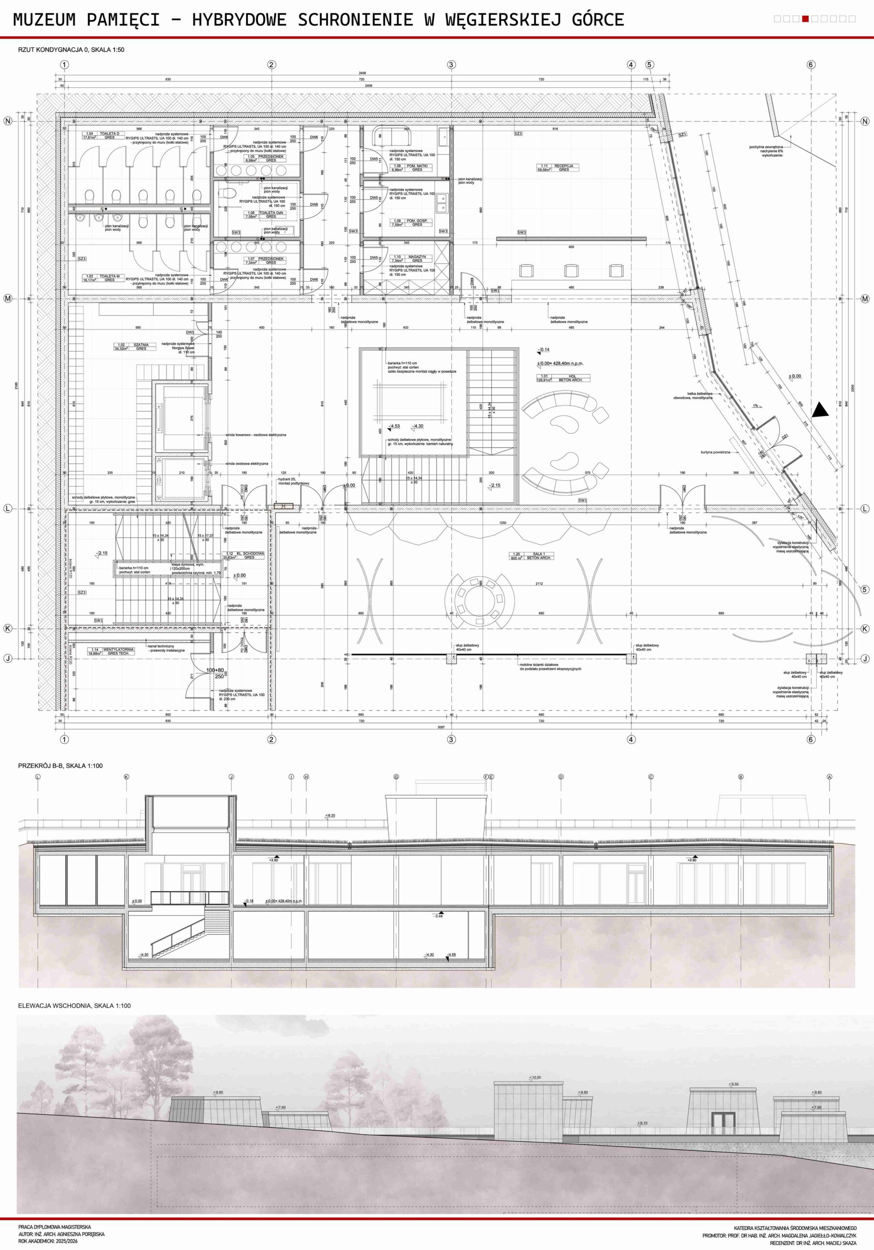
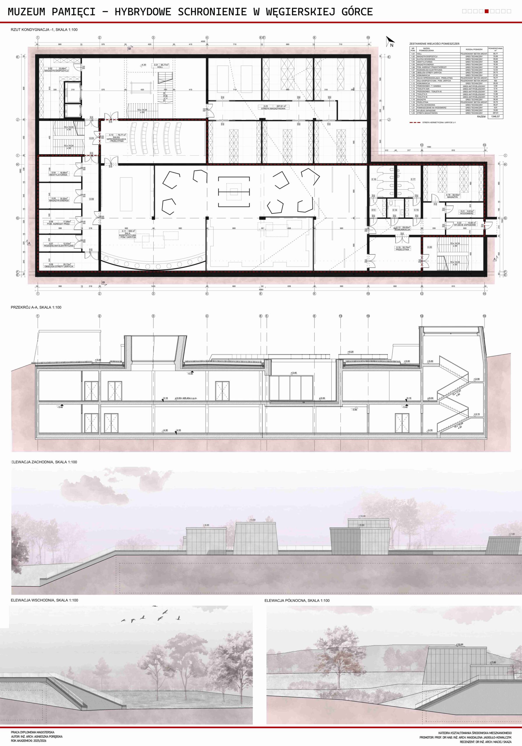
Najważniejszym elementem projektu pozostaje główny budynek Muzeum Pamięci. To obiekt hybrydowy, który pełni funkcje ekspozycyjne, edukacyjne i ochronne. To w nim koncentrują się rozwiązania szczegółowe tego projektu: zarówno w zakresie układu funkcjonalnego, jak i relacji architektury z otoczeniem: istniejącym schronem oraz krajobrazem.
Projekt łączy przestrzennie historyczne obiekty z nową architekturą. Całość tworzy spójne założenie, gdzie częściowo zapomniane obiekty historyczne i krajobraz stanowią część nowej propozycji projektowej.