Aleksandra Paradysz

Promotor

dr hab. inż. arch. Mariusz Twardowski, prof. PK

Recenzent

dr inż. arch. Wojciech Duliński

Tytuł pracy

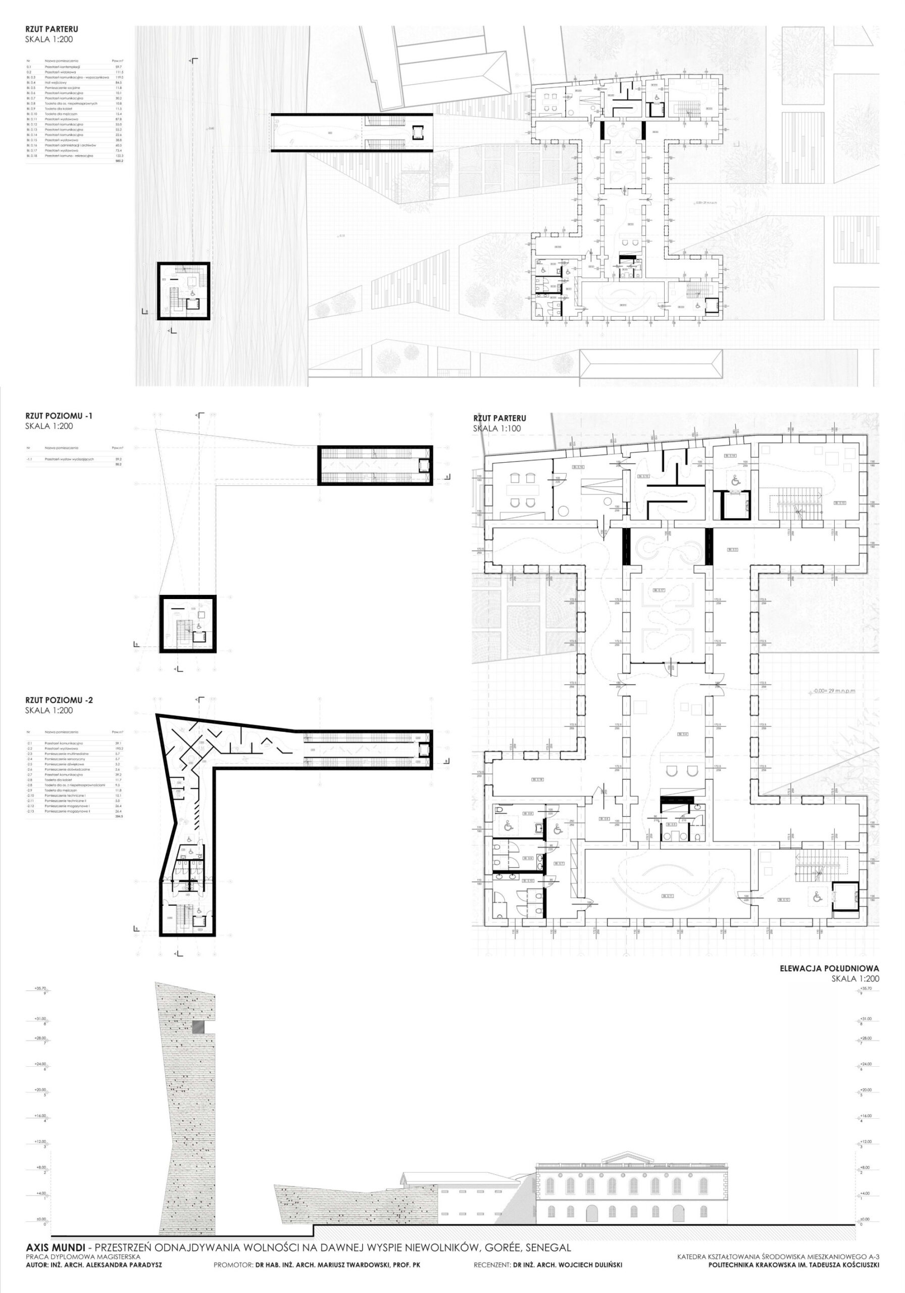
Axis Mundi – przestrzeń odnajdywania wolności na dawnej wyspie niewolników, Goree, Senegal

Jednostka dyplomująca

Katedra Kształtowania Środowiska Mieszkaniowego A-3

Opis

Praca dyplomowa dotyczy projektu budynku muzealnego oraz adaptacji historycznego budynku dawnego Pałacu Gubernatora, zlokalizowanego na wyspie Gorée u wybrzeży Senegalu – miejscu o wyjątkowym znaczeniu symbolicznym, będącym jednym z najważniejszych światowych pomników pamięci transatlantyckiego handlu niewolnikami. Projekt podejmuje temat wolności jako wartości jednocześnie uniwersalnej i unikatowej, rozpatrywanej w perspektywie historycznej oraz współczesnej. Założeniem pracy jest stworzenie przestrzeni, która nie tylko umożliwia zrozumienie mechanizmów stojących za największymi tragediami świata, ale także prowokuje do refleksji nad współczesnymi, często ukrytymi formami zniewolenia i ograniczania wolności. Projekt zakłada, że zniewolenie nie jest wyłącznie zjawiskiem historycznym ani jednoznacznym – współcześnie przybiera ono bardziej subtelne, mniej oczywiste formy.Architektura muzeum została zaprojektowana jako przestrzeń introspekcyjna, sprzyjająca refleksji, samopoznaniu oraz identyfikacji własnych ograniczeń. Wolność ukazana jest jako proces wymagający świadomości, uważności, determinacji i ciągłej pracy nad sobą.
Przestrzenie ekspozycyjne nie narzucają interpretacji, lecz tworzą warunki do indywidualnego przeżywania doświadczenia i osobistego definiowania własnej drogi do wolności.Architektura pełni rolę narracyjnego medium i przewodnika, prowadząc odbiorcę poprzez światło, mrok, ciszę, rytm i materiał, umożliwiając głębokie doświadczanie historii oraz refleksję nad teraźniejszością. Projekt podzielony na trzy symboliczne etapy obrazuje powtarzalny proces odzyskiwania wolności na różnych płaszczyznach życia. Całość stanowi próbę odpowiedzi na pytanie o rolę architektury w kształtowaniu świadomości społecznej, pamięci zbiorowej i odpowiedzialności za przyszłość.