Diana Przybysz

Promotor

prof. dr hab. inż. arch. Magdalena Jagiełło-Kowalczyk

Recenzent

dr inż. arch. Maciej Skaza

Tytuł pracy

Agora UBI – Covilhã

Jednostka dyplomująca

Katedra Kształtowania Środowiska Mieszkaniowego A-3

Opis

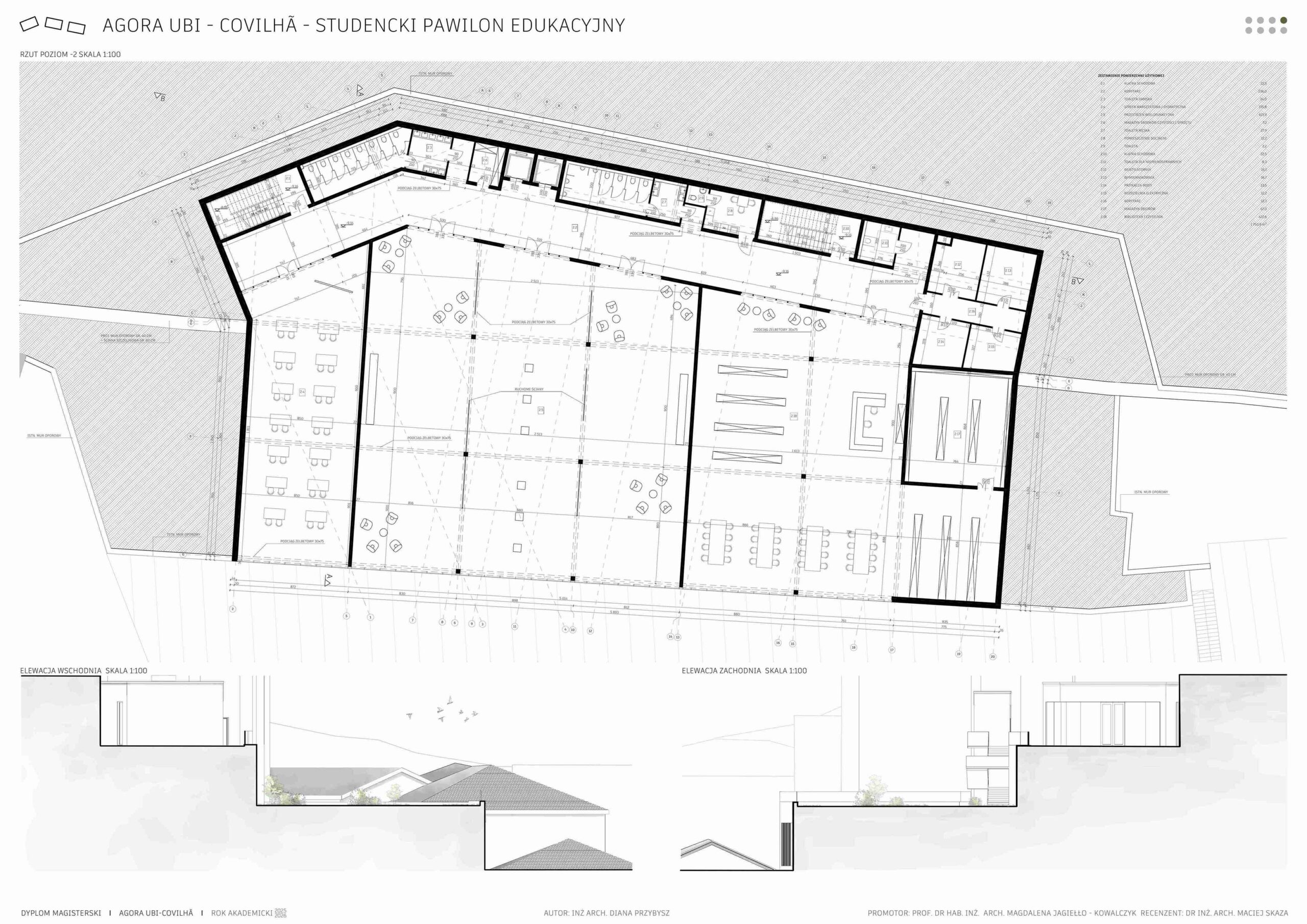
Projekt wraz z pracą pisemną obejmuje obszary wydziałów University of Beira Interior ( UBI ) w miejscowości Covilhã, Portugalia. Pomimo wysokiego poziomu kształcenia i dosyć dużego zainteresowania uczelnią, obiekty pozostają rozpierzchnięte po niemal całej miejscowości, nie posiadając wspólnego łącznika. Założenie przewiduje stworzenie połączenia między wydziałami , które projektowano z myślą o integracji i rozwoju. Przyjmuje ono formę przestrzeni społecznej z pawilonem, małą architekturą, miejscami spotkań i odpoczynku, który jako nowy element aranżacyjny ma za zadanie współgrać z istniejącą już zabudową , wzbogacając jej dotychczasową funkcję. Obiekt wpisuje się w zastaną konfigurację terenu, ciekawą, ale wymagającą pod względem projektowym z uwagi na występujące różnice wysokości i istniejące mury oporowe. Projekt stworzono przy Wydziale Architektury University of Beira Interior – miejsca położonego centralnie na mapie wydziałów uczelni. Praca dąży do przybliżenia pojęcia Nieformalnych Przestrzeni Uczenia Się i ich wpływu na tkankę kampusów uczelni przy jednoczesnej integracji architektury z istniejącą zabudową oraz terenami zielonymi.