Dominika Rutkowska

Promotor

dr hab. inż. arch. Mariusz Twardowski, prof. PK

Recenzent

dr inż. arch. Wojciech Duliński

Tytuł pracy

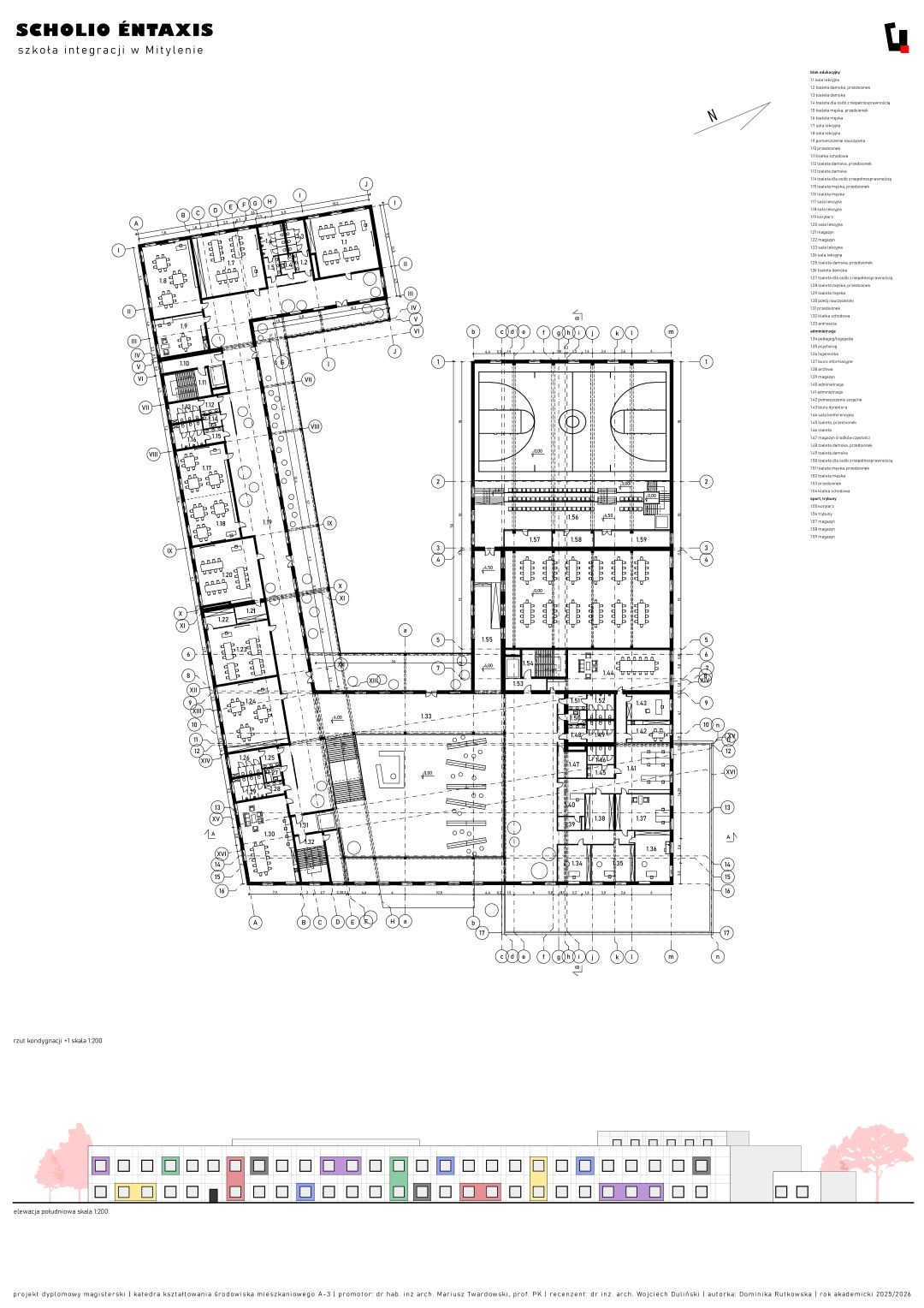
Szkoła Integracji w Mitylenie

Jednostka dyplomująca

Katedra Kształtowania Środowiska Mieszkaniowego A-3

Opis

Projektowany obiekt architektoniczny znajduje się w Mitylenie, stolicy wyspy Lesbos, w Grecji. Zdecydowano się na projekt szkoły ze względu na problem przeludnienia greckich szkół. Największy problem niewystarczających miejsc w szkołach zauważono właśnie na Lesbos, która, z uwagi na położenie geograficzne, jest miejscem styku kultur i miejscem migracji. Głównym celem projektu jest wsparcie systemu oświaty Mityleny, ale także stworzenie miejsca dialogu dla przenikających się środowisk. Sama lokalizacja projektu pomiędzy lotniskiem a centrum miasta wspiera ideowe połączenie dwóch społeczności w Szkole. Projekt ma na celu zapewnienie dzieciom komfortowego dostępu do edukacji, ale także dostępu do pomocy psychologicznej oraz wsparcia informacyjnego. Ważnym punktem w projekcie jest przestrzeń zewnętrzna, która umożliwia podjęcie interakcji między uczniami w warunkach naturalnych – dziedziniec arkadowy z zielenią oraz założenie parkowe “za” szkołą. Balkony z podcieniami zaczerpnięte zostały z greckiej architektury szkół w centrum miasta. Pozwalają dzieciom na dostęp do świeżego powietrza bezpośrednio ze szkolnych korytarzy, jednocześnie zapewniając zacienienie.