Emilia Dulewicz

Promotor

dr inż. arch. Agnieszka Żabicka

Recenzent

dr inż. arch. Jan Łaś, prof. PK

Tytuł pracy

ARCHITEKTURA ODPORNOŚCI: STRATEGIE PROJEKTOWE W WARUNKACH EKSTREMALNYCH

Jednostka dyplomująca

Katedra Kształtowania Środowiska Mieszkaniowego A-3

Opis

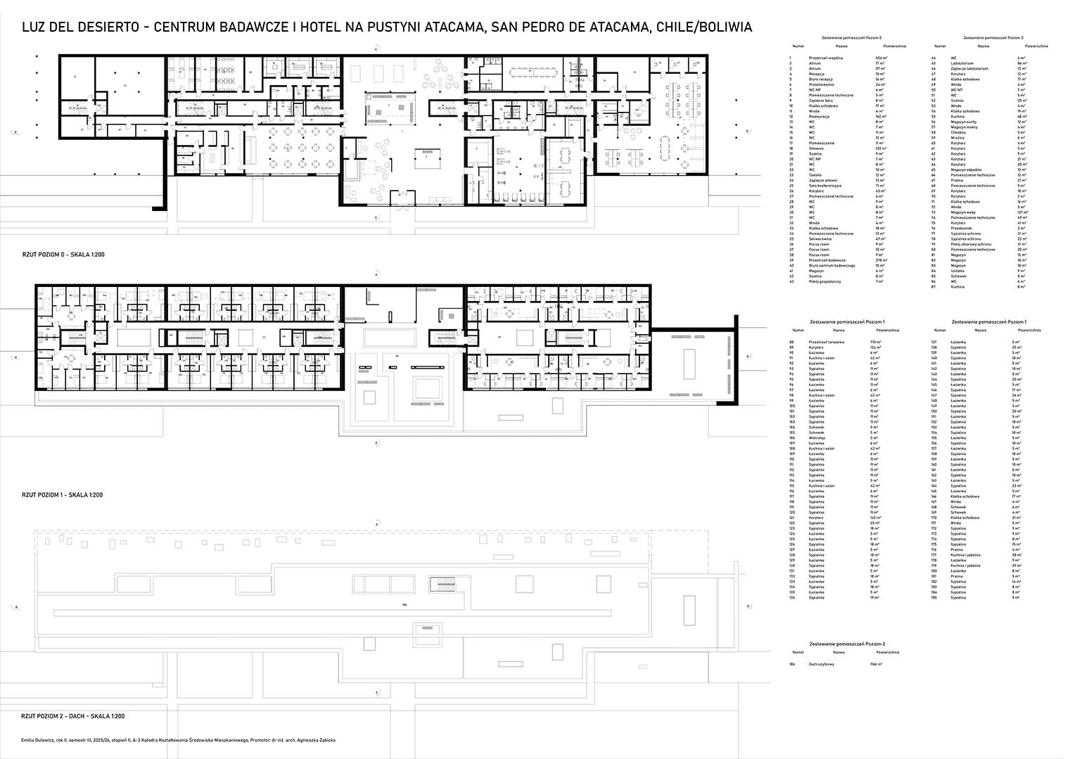
Z pomiędzy gór i wulkanów otoczonych rdzawymi piaskami pustyni wyłania się bryła – zagłębiona, ochronna, niemal niewidoczna. Centrum Badawcze z Hotelem „Luz del Desierto” na pustyni Atacama łączy funkcję schronienia z misją poznania jednego z najbardziej ekstremalnych środowisk na Ziemi. Położone u stóp Cerro Laguna Verde na wysokości 4400 m n.p.m., tworzy ostoję dla badaczy i podróżników.
Z budynku rozpościera się widok na trzy wulkany: Licancabur, Sairecabur i Juriques, a u podnóża – jeziora Laguna Verde i Laguna Blanca, oazy życia dla flamingów andyjskich. Atacama to miejsce kontrastów: brutalne warunki spotykają nieziemskie piękno i krystalicznie czyste niebo idealne do obserwacji gwiazd.
Koncepcja opiera się na idei schronienia. Gdzie temperatura waha się od -25°C do +40°C, a wiatr osiąga 100 km/h, budynek staje się bezpieczną przystanią. Inspiracją był film „Diuna” – jak sietcze Fremenów, centrum zaprojektowano jako zagłębioną strukturę ukrytą w ziemi.
Stal kortenowa wtapia się w rudawe tony pustyni i skał wulkanicznych. Zagłębienie wykorzystuje stabilność termiczną ziemi – temperatura na głębokości 2-3 metrów pozostaje stała przez rok. Ruchome panele zamykają się w dzień, chroniąc przed upałem, i otwierają nocą, umożliwiając wentylację i widok na gwiazdy.
Centralnym elementem są wewnętrzne patia wpływające na mikroklimat. Projekt wykorzystuje systemy zbierania wody z mgły (atrapanieblas) stosowane od wieków przez lokalne społeczności. To architektura czerpiąca z tradycji i łącząca je z osiągnięciami zrównoważonego projektowania, by funkcjonować w harmonii z ekstremalnym środowiskiem.