Jakub Knapek

Promotor

dr hab. inż. arch. Patrycja Haupt, prof. PK

Recenzent

dr inż. arch Maciej Skaza

Tytuł pracy

Laboratorium innowacji i integracji na kampusie „Moulin de la Housse” Uniwersytetu w Reims Szampania-Ardeny we Francji

Jednostka dyplomująca

Katedra Kształtowania Środowiska Mieszkaniowego A-3

Opis

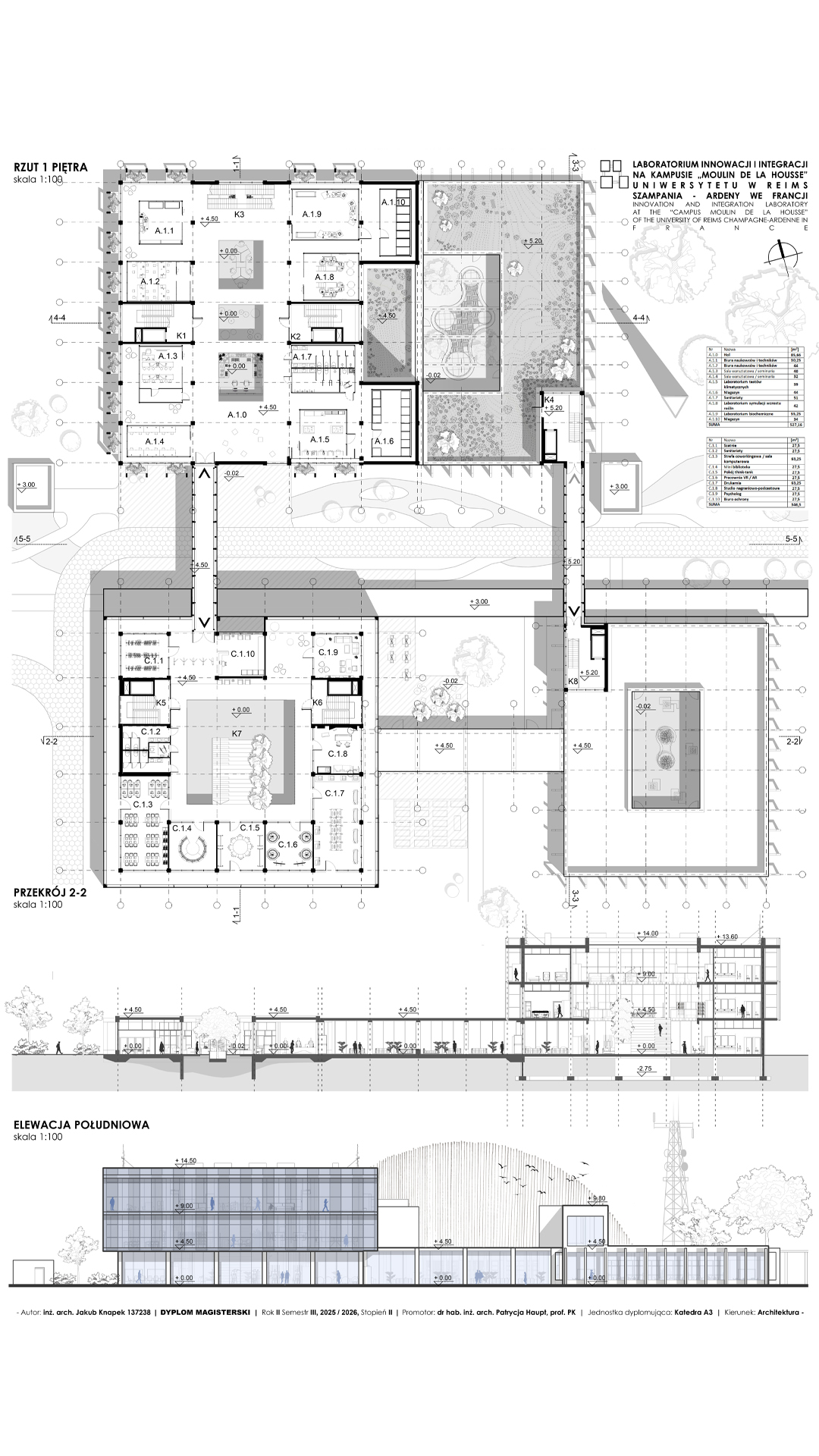
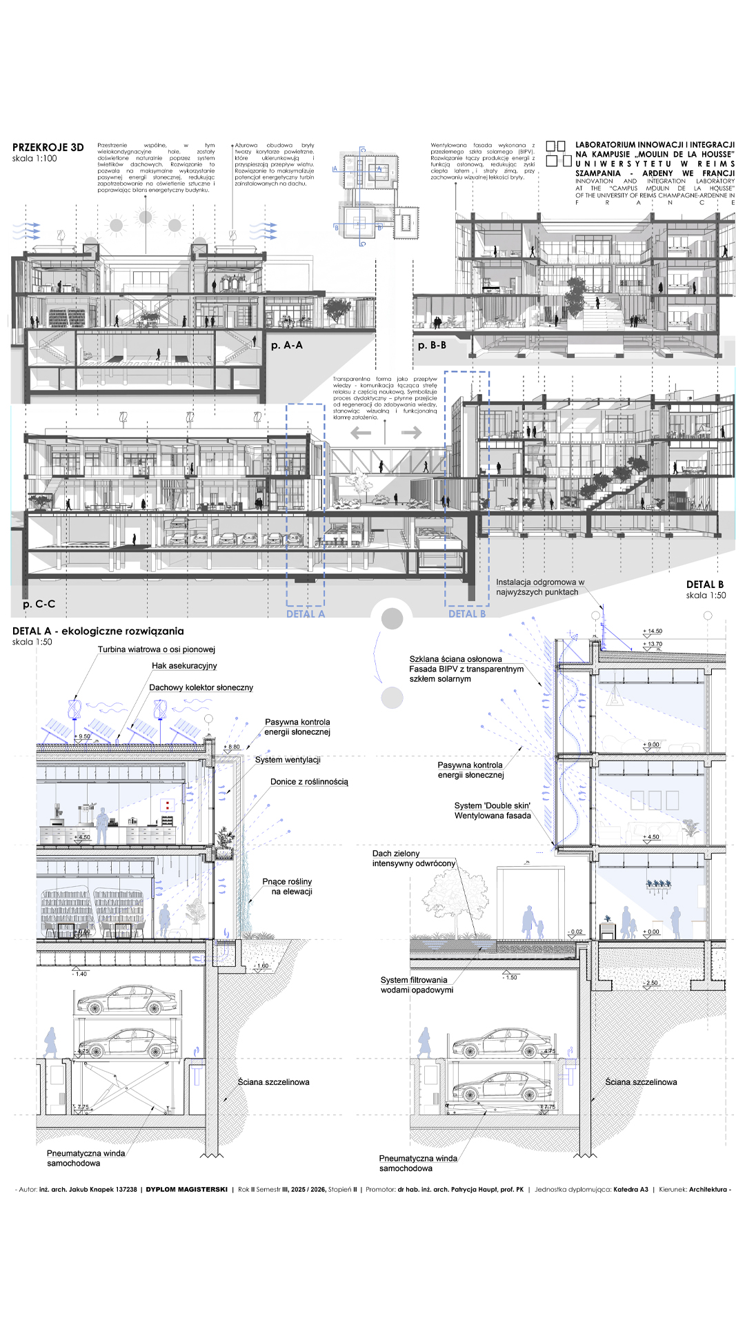
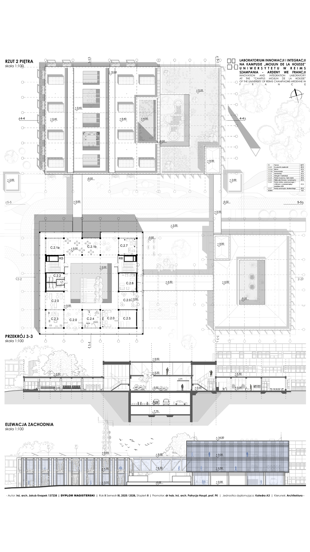
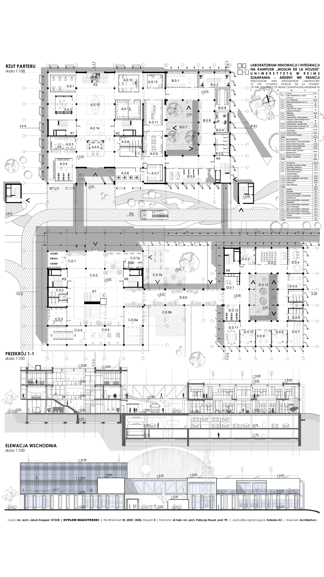
Tematem pracy dyplomowej jest projekt „Laboratorium Innowacji i Integracji” na kampusie „Moulin de la Housse” Uniwersytetu w Reims Szampania-Ardeny we Francji. Koncepcja zakłada stworzenie wielowarstwowej przestrzeni, która łączy funkcje naukowe, badawcze i dydaktyczne z obszarami integracji społecznej oraz współpracy akademickiej. W procesie projektowym wykorzystano wnioski zebrane z analizy studiów przypadków kampusów z różnych części świata oraz z sondaży przeprowadzonych wśród osób związanych z funkcjonowaniem ośrodków akademickich. Zebrane dane pozwoliły określić najważniejsze potrzeby użytkowników, takie jak: dostępność, praca indywidualna czy otwartość. Na tej podstawie opracowano projekt, który łączy aktywności naukowe z funkcjami społecznymi, wzmacniając więzi z otoczeniem oraz sprzyjając wymianie wiedzy i współpracy między użytkownikami kampusu. Jednocześnie uwzględnia on kontekst całego kampusu i jego relacje z tkanką miejską, tworząc spójną i otwartą przestrzeń funkcjonującą jako integralna część całości poprzez zintegrowanie obszarów akademickich z otaczającym miastem. Nowe obiekty nawiązują formą do istniejących struktur oraz uzupełniają kompleks w sposób harmonijny poprzez wkomponowanie bryły w zieleń kampusu poprzez zachowanie i rozszerzenie istniejących terenów biologicznie czynnych. Nowoczesna architektura wykorzystuje współczesne technologie takie jak pasywne pozyskiwanie i wykorzystywanie energii odnawialnej, zastosowanie ekologicznych materiałów i wprowadzenie dużej ilości zieleni, sprzyjając komfortowi użytkowników i minimalizując wpływ na otoczenie. Projekt stanowi przykład współczesnego podejścia do architektury akademickiej, w której funkcje dydaktyczne i badawcze współistnieją z przestrzenią społeczną, a projektowanie uwzględnia zarówno potrzeby użytkowników, jak i kontekst urbanistyczny kampusu. Został opracowany w sposób elastyczny, pozwalający na adaptację przestrzeni do zmieniających się potrzeb użytkowników i nowych form działalności akademickiej.