Julia Gębska

Promotor

dr hab. inż. arch. Patrycja Haupt, prof. PK

Recenzent

dr inż. arch Maciej Skaza

Tytuł pracy

Design of a Community Center Integrating a Children’s Home and a Senior Living Facility

Jednostka dyplomująca

Katedra Kształtowania Środowiska Mieszkaniowego A-3

Opis

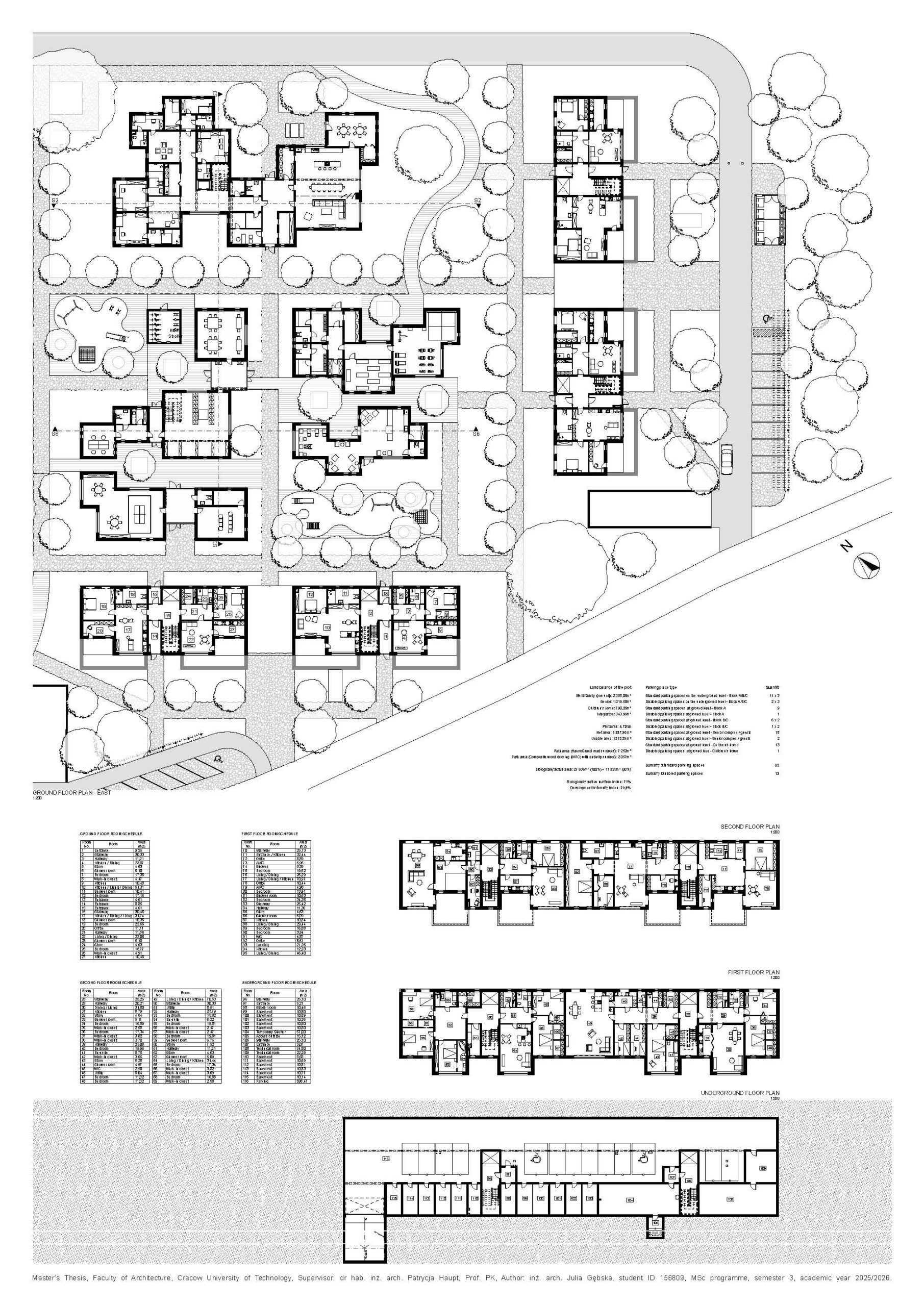
This master’s thesis presents the design of a socially oriented architectural and urban complex combining a children’s home, a senior living facility, multi-family housing, and shared integration spaces. The project addresses contemporary demographic and social challenges, including population ageing, social isolation, and the spatial separation of generations.
The main design idea is to create an environment that naturally supports everyday contact, integration, and the formation of neighborhood relationships through spatial organization. Instead of isolating individual functions, the project is based on the principle of overlapping and interpenetrating spaces, forming a sequence of zones with varying degrees of privacy. This approach encourages spontaneous social interaction while maintaining the autonomy and comfort of different user groups.
Green spaces play a key role in the structure of the complex and are treated as an integral architectural element. They serve recreational, social, and organizational functions, strengthening the relationship between the built environment and nature. An urban farm complements the functional programme, introducing shared activities as a tool for building intergenerational bonds.
The project understands architecture as a medium for shaping social relations and improving the quality of everyday life. The proposed complex aims to create an open, inclusive urban structure in which functional diversity and shared spaces foster coexistence, mutual support, and social integration.