Małgorzata Nalepa

Promotor

dr inż. arch. Jarosław Huebner, prof. PK

Recenzent

dr inż. arch Bogdan Siedlecki, prof. PK

Tytuł pracy

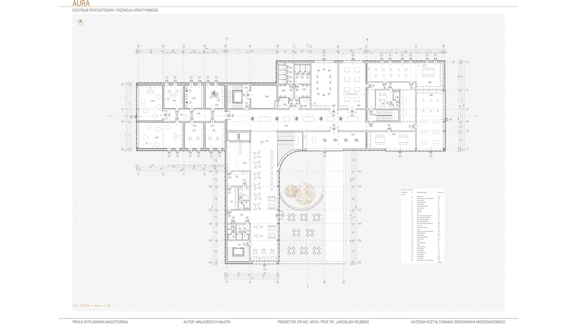
Aura – Centrum Psychoterapii i Rozwoju Kreatywnego – Kraków, Polska

Jednostka dyplomująca

Katedra Kształtowania Środowiska Mieszkaniowego A-3

Opis

Projekt „AURA” stanowi odpowiedź na rosnące zapotrzebowanie na przestrzenie wspierające dobrostan psychiczny w strukturze współczesnego miasta. Kraków, jako metropolia o silnej funkcji turystycznej (blisko 15 mln odwiedzających w 2024 r.), generuje wysoki poziom bodźców stresogennych, co stwarza konieczność kreowania miejsc sprzyjających wyciszeniu i regeneracji.
Ideą przedsięwzięcia jest stworzenie obiektu wykraczającego poza standardową funkcję gabinetową. Program użytkowy łączy profesjonalną psychoterapię z zajęciami manualnymi i artystycznymi, traktując twórczość i ekspresję jako kluczowe narzędzia rozwoju osobistego oraz profilaktyki przeciążeń. Architektura budynku została ukształtowana tak, aby zapewniać użytkownikom poczucie bezpieczeństwa i możliwość wyboru między aktywnością społeczną a indywidualnym wycofaniem.
Lokalizacja inwestycji poza głównymi szlakami turystycznymi, w bezpośrednim sąsiedztwie terenów zieleni, wspiera procesy terapeutyczne poprzez kontakt z naturą, co wpisuje się w wytyczne WHO dotyczące niwelowania skutków miejskiego stylu życia. Obiekt zaprojektowano jako otwarty element lokalnej infrastruktury zdrowia, dostępny dla mieszkańców dzielnicy, sprzyjający budowaniu nawyków prozdrowotnych w kameralnym i stabilnym środowisku.