Miłosz Kozłecki

Promotor

dr hab. inż. arch. Michał Krupa, prof. PK

Recenzent

dr inż. arch Zbigniew Wikłacz, prof. PK

Tytuł pracy

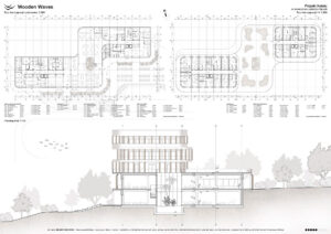
WoodenWaves – Projekt hotelu na słonecznym wybrzeżu Majorki

Jednostka dyplomująca

Katedra Kształtowania Środowiska Mieszkaniowego A-3

Opis

Drewno od wieków jest niewątpliwie jednym z fundamentalnych materiałów budowlanych. Jego wykorzystywanie na przestrzeni wieków spowodowane było szeroką dostępnością, łatwością obróbki oraz dobrymi parametrami fizycznymi. Niestety z biegiem lat drewno zaczęło ustępować miejsca materiałom takim jak beton czy stal. Obecnie w obliczu wyzwań klimatycznych, konieczności ograniczenia emisji dwutlenku węgla i energii wbudowanej budynków materiał ten zyskuje nowe życie. Na szczególną uwagę zasługuje drewno klejone krzyżowo, które jest rozwiązaniem łączącym tradycyjny materiał z nową technologią. Dzięki cechom takim jak duża wytrzymałość, stabilność wymiarowa czy możliwość prefabrykacji CLT znajduje coraz częstsze zastosowanie w architekturze mieszkaniowej, użyteczności publicznej oraz hotelowej.