Natalia Wojdan

Promotor

dr inż. arch. Piotr Broniewicz

Recenzent

dr inż. arch. Jan Łaś, prof. PK

Tytuł pracy

Miejskie Centrum Odnowy Psychofizycznej „Urban Reset”

Jednostka dyplomująca

Katedra Kształtowania Środowiska Mieszkaniowego A-3

Opis

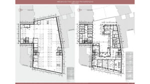
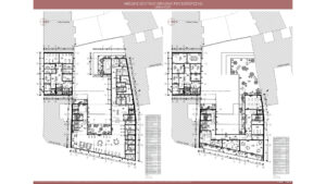
Zaprojektowane Miejskie Centrum Odnowy Psychofizycznej jest obiektem wielokondygnacyjnym, obejmującym jedną kondygnację podziemną oraz cztery kondygnacje nadziemne, o zróżnicowanej i komplementarnej funkcji usługowej. Układ funkcjonalny budynku został zaprojektowany w sposób uporządkowany, z wyraźnym podziałem na strefy ogólnodostępne, półpubliczne oraz bardziej kameralne, przeznaczone do terapii i regeneracji. Całość budynku została zaprojektowana jako nowoczesny, funkcjonalny obiekt usługowy, zapewniający użytkownikom kompleksową obsługę w zakresie zdrowia, rekreacji, wellness oraz administracji.
Forma architektoniczna budynku została zaprojektowana jako nowoczesna, zwarta bryła, harmonijnie wpisana w historyczną, miejską zabudowę. Bryła budynku posiada czytelny, horyzontalny układ, podkreślony regularnym rytmem pionowych podziałów elewacyjnych. Dominującym elementem kompozycyjnym są smukłe, pionowe panele przesuwne, które nadają fasadzie lekkości, porządkują jej proporcje oraz pełnią funkcję osłon przeciwsłonecznych. Rytmiczna elewacja i stonowana kolorystyka współgrają z sąsiednią zabudową, natomiast nowoczesne materiały i rozwiązania przestrzenne podkreślają innowacyjny charakter centrum. Duże przeszklenia zapewniają odpowiednie doświetlenie wnętrz i wizualne powiązanie obiektu z przestrzenią miejską. Parter budynku został wyraźnie zaakcentowany i optycznie „odciążony” poprzez cofnięcia elewacji, co sprzyja czytelności wejść i podkreśla publiczny charakter tej kondygnacji. Wyższe piętra tworzą jednolitą, spokojną kompozycję, wzmacniając wrażenie solidności i stabilności obiektu. Od strony wewnętrznej budynku forma ulega złagodzeniu poprzez zaprojektowane zielone dziedzińce i tarasy, które wprowadzają elementy natury do struktury architektonicznej. Przestrzenie te pełnią funkcję rekreacyjną, wzmacniając ideę obiektu jako miejsca sprzyjającego regeneracji i wyciszeniu. Zieleń pełni nie tylko funkcje estetyczną, lecz przede wszystkim terapeutyczną, poprawia mikroklimat i wzmacnia poczucie komfortu użytkowników. Budynek staje się w ten sposób „zieloną enklawą” w gęstej zabudowie miejskiej. Całość formy architektonicznej łączy w sobie nowoczesną estetykę, funkcjonalność oraz szacunek dla istniejącego kontekstu urbanistycznego, tworząc spójny i elegancki obiekt o wyraźnie publicznym charakterze.
Całość założenia podporządkowana została idei człowieka, jego zdrowia, dobrostanu oraz potrzeby harmonii. Budynek Miejskiego Centrum Odnowy Psychofizycznej nie jest jedynie obiektem usługowym, lecz świadomie zaprojektowaną przestrzenią, wspierającą regenerację psychofizyczną, integrację społeczną oraz poprawę jakości życia w środowisku miejskim.