Piotr Litwiński

Promotor

dr hab. inż. arch. Michał Krupa, prof. PK

Recenzent

dr inż. arch Zbigniew Wikłacz, prof. PK

Tytuł pracy

Centrum Handlowe Łososiny Dolnej

Jednostka dyplomująca

Katedra Kształtowania Środowiska Mieszkaniowego A-3

Opis

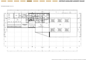
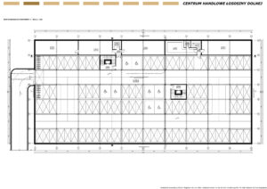
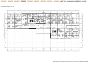
Niniejsza praca dyplomowa stanowi zintegrowane opracowanie składające się z części analityczno-badawczej oraz autorskiego projektu architektonicznego. Podstawą rozważań jest esej badawczy, w którym poddano szczegółowej analizie ewolucję współczesnych obszarów wiejskich oraz kryzys tożsamości w architekturze komercyjnej. Badania skupiły się na poszukiwaniu rozwiązań pozwalających przekształcić anonimowe punkty handlowe w autentyczne centra społecznotwórcze, odpowiadające na rzeczywiste potrzeby mieszkańców. Część projektowa pracy stanowi praktyczną odpowiedź na wnioski płynące z przeprowadzonych analiz. Zaproponowano koncepcję wielofunkcyjnego węzła usługowego. Obiekt charakteryzuje się horyzontalną formą architektoniczną, zaprojektowaną z myślą o harmonijnym wpisaniu w krajobraz oraz rygorystycznych wymogach technicznych związanych z sąsiedztwem infrastruktury lotniczej. W opisie technicznym i koncepcji wykonawczej uwzględniono zastosowanie nowoczesnych materiałów: betonu architektonicznego, stali i szkła. Projekt kładzie szczególny nacisk na inżynierię zrównoważoną, wprowadzając zaawansowane systemy retencji wód opadowych, dachy zielone pełniące funkcję „piątej elewacji” oraz rozwiązania proenergetyczne. Finalne opracowanie udowadnia, że nowoczesny obiekt usługowy może być nie tylko sprawnie działającym punktem technicznym, ale przede wszystkim przestrzenią budującą lokalny ład przestrzenny.