Agnieszka Ślizień-Kuczapska

Promotor

dr inż. arch. Marceli Łasocha

Recenzent

prof. dr hab. inż. arch. Wacław Celadyn

Tytuł pracy

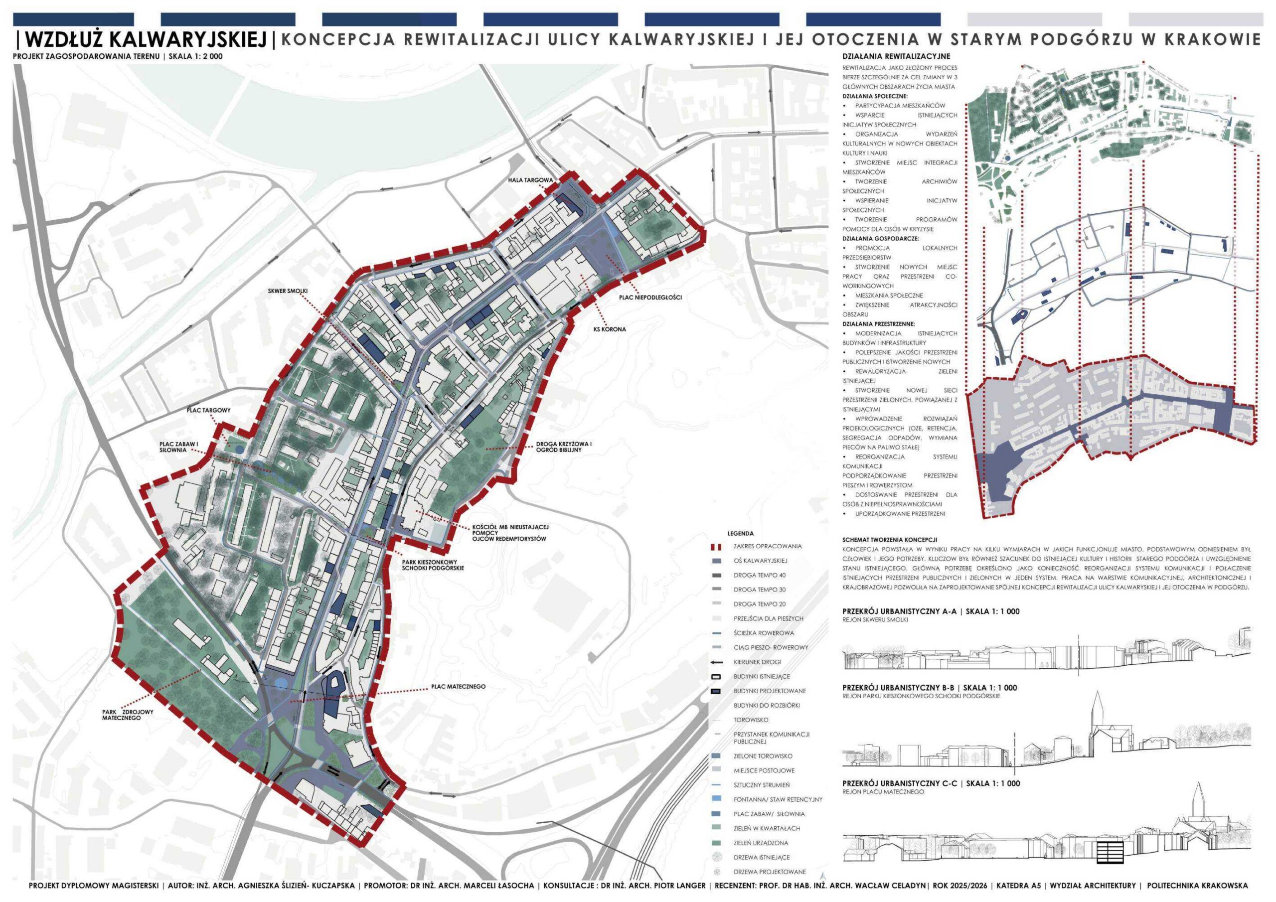
Wzdłuż Kalwaryjskiej – Koncepcja rewitalizacji ulicy Kalwaryjskiej i jej otoczenia w Starym Podgórzu w Krakowie

Jednostka dyplomująca

Katedra Planowania Przestrzennego, Projektowania Urbanistycznego i Ruralistycznego A-5

Opis idei projektu

Praca porusza problem rewitalizacji współczesnych miast, gdzie najważniejszym wymiarem jest człowiek. Tłumaczy proces tworzenia tej koncepcji i wskazuje na różnorodność podejść do tego przedsięwzięcia. Przeprowadzona analiza przypadków wskazuje na konkretne działania, które mogą zostać podjęte przez miasta w celu przeprojektowania przestrzeni umożliwiającej rozwój relacji społecznych, kultury i tożsamości miejsca.  Analizie poddano przykłady rewitalizacji z Polski – w Łodzi oraz w Warszawie, jak również przykład z zagranicy- w Nowym Jorku. Projekt urbanistyczny dotyczy koncepcji rewitalizacji ulicy Kalwaryjskiej i jej otoczenia w Starym Podgórzu w Krakowie. Ze względu na silny historyczny i kulturowy kontekst praca definiuje stan istniejący i proponuje rozwiązania, które umożliwią obszarowi polepszenie sytuacji społecznej, gospodarczej, przestrzennej i środowiskowej. Projekt urbanistyczny skupia się na określeniu działań w ramach kilku obszarów, takich jak komunikacja, modernizacja zabudowy i uzupełnienia, przestrzenie publiczne, przestrzenie zielone oraz proponuje działania jakie mogą być podjęte w ramach partycypacji społecznej. Projekt opracowano na 8 planszach, które dzielą się na te, które opowiadają o stanie istniejącym oraz te, na których znajdują się schematy działań projektowych, koncepcja funkcjonalno- przestrzenna wraz z projektem zagospodarowania terenu i rozwiązaniem w większym szczególe fragmentu obecnego Ronda Matecznego.