Julia Gerent

Promotor

dr inż. arch. Marcin Głuchowski

Recenzent

dr inż. arch. Jan Łaś, prof. PK

Tytuł pracy

Modelowy dom opieki dla osób starszych w Krynicy-Zdroju

Jednostka dyplomująca

Katedra Projektowania Architektonicznego A-6

Opis idei projektu

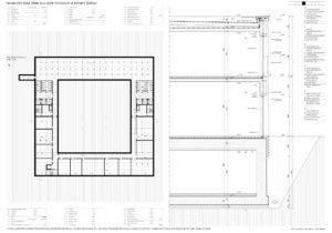
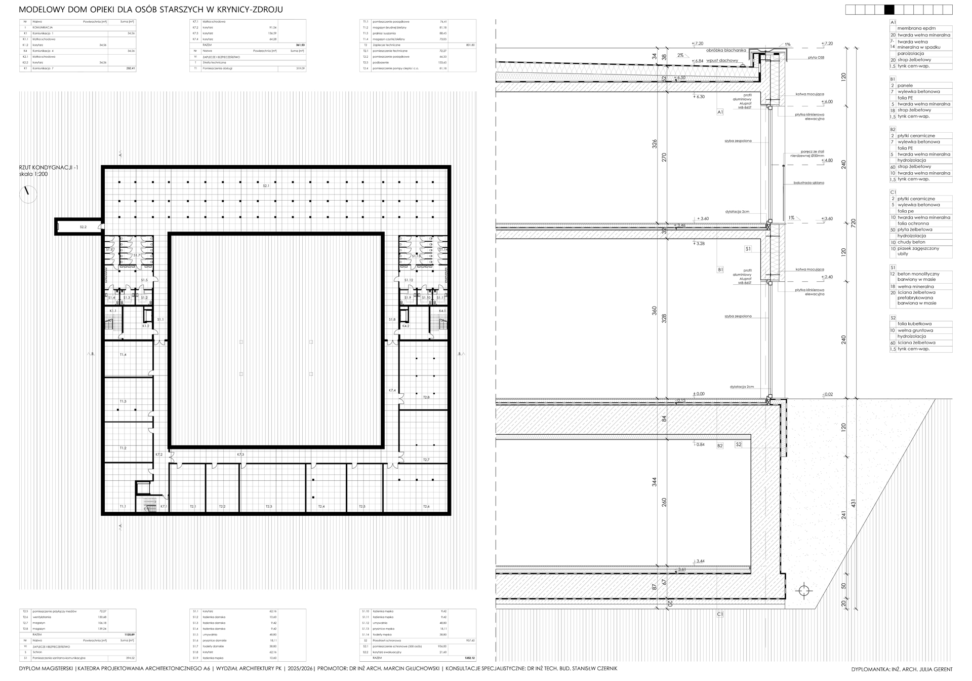
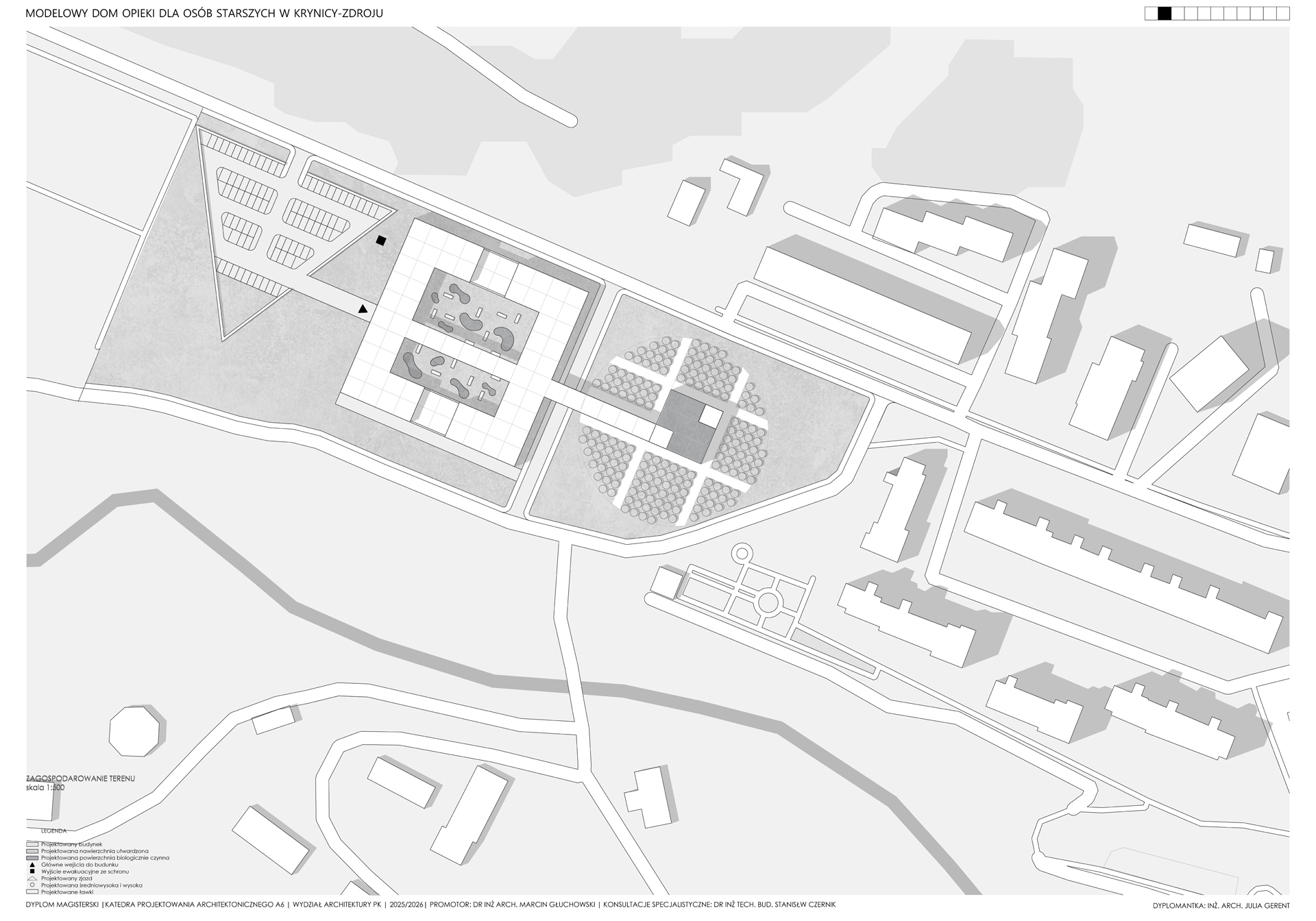
Projekt przedstawia modelowy całodobowy dom opieki dla osób starszych zlokalizowany w Krynicy-Zdroju. Budynek o dwóch kondygnacjach nadziemnych i jednej podziemnej zaprojektowano w oparciu o ideę urbanistyki w mikroskali, zakładając stworzenie samowystarczalnego układu na wzór wioski w zabudowie kwartalnej. Wewnętrzna struktura obiektu naśladuje miejską przestrzeń – place, ulice oraz domy – poprzez system korytarzy, dziedzińców i pokoi. Obiekt przeznaczony jest dla 58 pensjonariuszy zakwaterowanych w dwuosobowych pokojach z aneksami kuchennymi i prywatnymi łazienkami, co sprzyja budowaniu wspólnoty przy jednoczesnym poszanowaniu autonomii mieszkańców. Podstawą kompozycji jest układ atrialny inspirowany strukturą starożytnej willi rzymskiej, zapewniający czytelną komunikację oraz integrację stref funkcjonalnych. Centralny dziedziniec pełni rolę serca obiektu – bezpiecznej, zielonej przestrzeni sprzyjającej rekreacji i kontaktom międzyludzkim. Projekt zakłada wyodrębnienie sześciu stref funkcjonalnych: komunikacja (lobby, klatki schodowe, halle), strefa mieszkalna (pokoje, strefa wspólna dzienna, wspólna jadalnia), strefa medyczna oraz wellness (basen, jacuzzi, gabinety pielęgniarski, lekarski i fizjoterapeutyczny), zieleń i rekreacja (dziedziniec, ogród zimowy, park) strefa duchowa (kaplica / miejsce wyciszenia), zaplecze i bezpieczeństwo (personel, strefa techniczna, schron). Forma architektoniczna opiera się na figurach elementarnych oraz modularnej siatce 120 × 120 cm. Budynek wykonano z prefabrykatów żelbetowych, zgodnie z przepisami przeciwpożarowymi. Lokalizacja w Krynicy-Zdroju została wybrana ze względu na uzdrowiskowy charakter miejsca i walory krajobrazowe, a dodatkowe analizy potwierdzają możliwość adaptacji i rozbudowy obiektu w innych lokalizacjach.