Julia Mytnik

Promotor

dr inz. arch. Marta Fąfara

Recenzent

dr inż. arch. Bogdan Siedlecki, prof. PK

Tytuł pracy

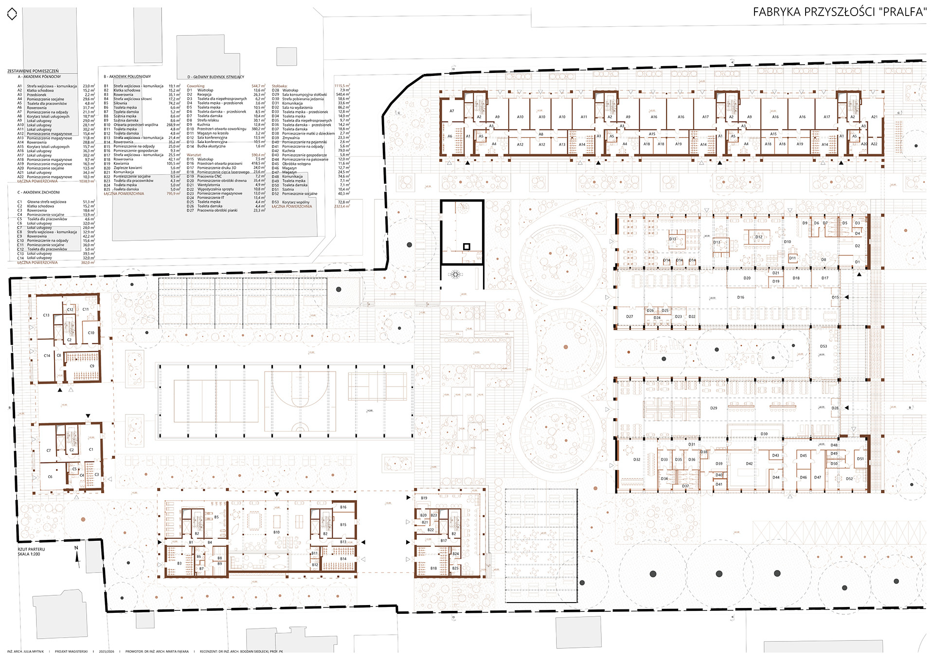
Fabryka Przyszłości „Pralfa” – projekt rewitalizacji terenu poprzemysłowego

Jednostka dyplomująca

Katedra Projektowania Architektonicznego A-6

Opis idei projektu

Projekt Fabryka Przyszłości „Pralfa” to koncepcja adaptacji i rewitalizacji terenów poprzemysłowych po opuszczonej fabryce maszyn pralniczych „Pralfa” w Tarnowie. Głównym celem pracy jest próba oddania zaniedbanych, zdewastowanych i nieużytkowanych terenów w centrum miasta społeczności lokalnej, poprzez stworzenie nowego kwartału zabudowy, w którym znajdować się będzie wielofunkcyjny kompleks z funkcjami usługowymi, mieszkaniowymi i sportowymi. Szczególna uwagę poświęcono ternom zewnętrznym tworząc centralny park, wielopoziomowe place oraz żywnościową farmę miejską.

Zdefiniowano na nowo obszar dawnej fabryki maszyn pralniczych „Pralfa” w Tarnowie i znaczenie słowa „praca” tworząc współczesne, nowe warunki pracy w postaci coworkingu, warsztatów, jednocześnie kreując nowy kompleks nastawiony na rozwój młodych umysłów, powstały w wyniku podejmowania rozważnych decyzji dotyczących ekologii, maksymalnego zachowania i zaadaptowania istniejącej tkanki, recyklingu materiałów z wyburzeń i urbanistycznego dopełnienia struktury miejskiej nową zabudową.

Innowacyjność projektu polega na wykorzystaniu w projekcie maksymalnej ilości materiałów istniejących przez stworzenie z nich nowych materiałów z recyklingu, takich jak: cegła rozbiórkowa, mieszanka betonowa z wykorzystaniem gruzu. Dla celów badawczych przeanalizowano strukturę budynków istniejących oraz wykorzystano oprogramowanie kalkulatora cyklu życia budynku LCA, aby sprawdzić koszt środowiskowy scenariusza, w którym zdecydowano by się na wyburzenie zniszczonych obiektów.

Na podstawie dogłębnej analizy terenów poprzemysłowych, ich potencjału i problemów z nimi związanych, wyników analizy końca życia budynków, a także wnikliwych analiz urbanistycznych zaprojektowano spójny kompleks wielofunkcyjny, dający nowe życie zapomnianej fabryce, zachowując jej tożsamość.