Natalia Mroczkowska

Promotor

dr inż. arch. Maciej Skaza

Recenzent

dr inż. arch. Jacek Czubiński, prof. PK

Tytuł pracy

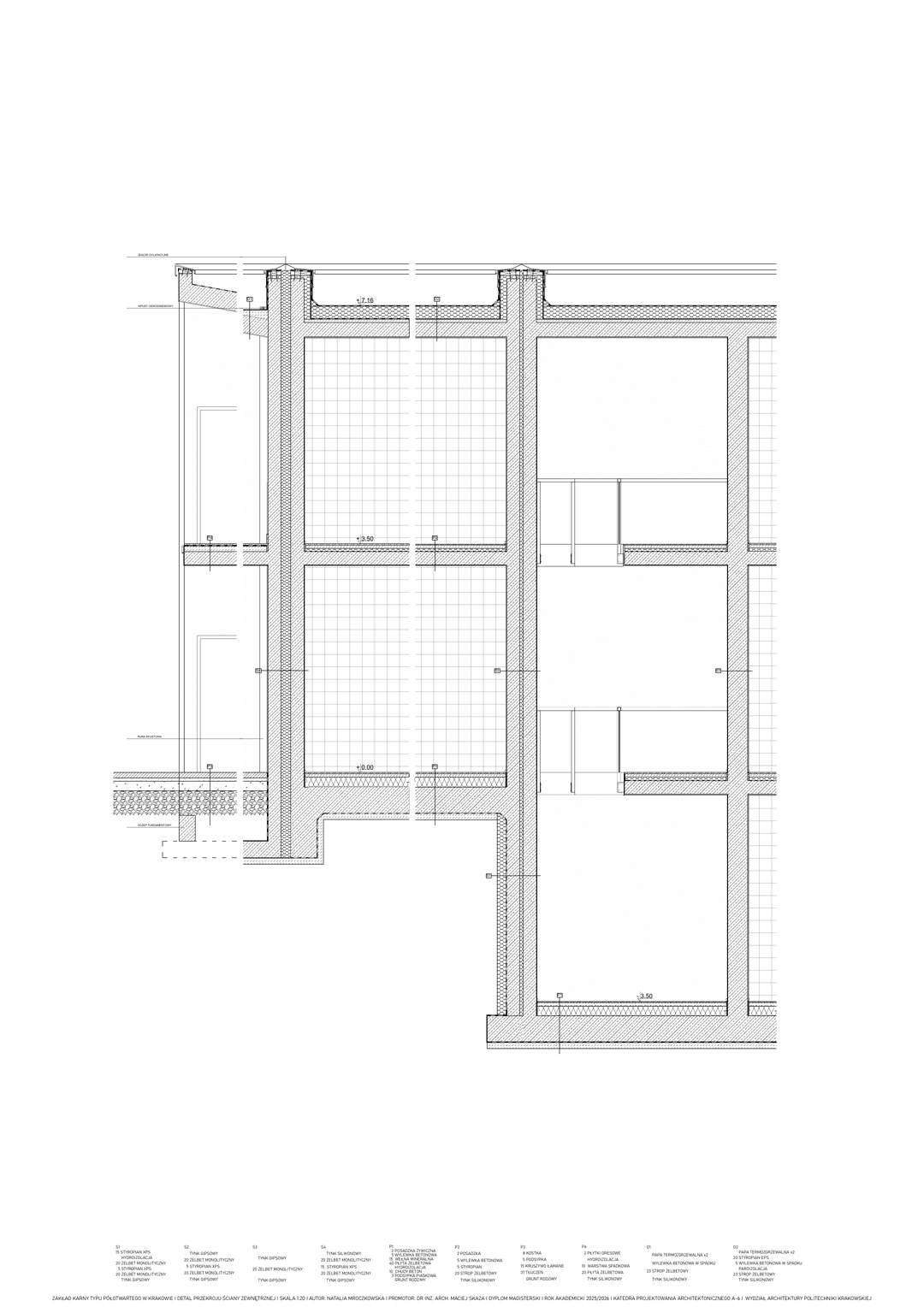
Zakład karny typu półotwartego w Krakowie

Jednostka dyplomująca

Katedra Projektowania Architektonicznego A-6

Opis idei projektu

Architektura zakładów karnych często bywa marginalizowana, co wynika z niskiej reprezentacyjności tych obiektów. Ze względu na funkcję jaką pełnią, miasta niechętnie eksponują ich istnienie, traktując je jako niewygodny element infrastruktury. Jakby wstydząc się że istnieje konieczność stawiania więzień, lokalizuje się je zazwyczaj na obrzeżach miast, ukrywając je przed wzrokiem społeczeństwa. Aspekty te przekładają się na niewielkie zainteresowanie projektowe – architektura kary bywa uznawana za monotonną i o schematycznym charakterze, złożoną z murów, krat i betonu. Podejście takie jest jednak uproszczone i krzywdzące dla więzień, które pełnią ważną społeczną rolę. Będąc jedynym środowiskiem życia osób pozbawionych wolności, wywierają na nich istotny wpływ. Rozwiązania przestrzenne mogą wspierać proces resocjalizacji lub utrudniać go. Biorąc pod uwagę, jak duże znaczenie ma dla społeczeństwa skuteczna resocjalizacja, która przekształca osoby wykluczone społecznie w aktywnych obywateli, zadanie jakie ma do wykonania architektura kary okazuje się być ważną misją, która powinna stać się przedmiotem szerokiej dyskusji. W pracy podjęto próbę opracowania zakładu karnego typu półotwartego, który będzie środowiskiem sprzyjającym resocjalizacji. Obiekt złożony z sześciu jednostek mieszkalnych i sześciu budynków pomocniczych mieści się w spokojnej, zielonej okolicy. Rozbudowany układ funkcjonalny oferuje osadzonym możliwość odpoczynku, pracy i terapii, a jednostki mieszkalne podzielone na mniejsze oddziały z przynależnymi ogrodami pomagają tworzyć sąsiedzkie społeczności imitujące życie wolnościowe. Rozbicie założenia na mniejsze budynki daje wrażenie osiedla mieszkalnego, co stoi w opozycji do historycznych więzień–twierdz. Projektowany zakład karny skupiony jest na przygotowaniu skazanych do opuszczenia go, zamiast na karaniu ich poprzez warunki środowiska, którego nie mogą opuścić.