Wiktoria Brzezińska

Promotor

dr inż. arch. Przemysław Bigaj

Recenzent

dr inż. arch. Jan Łaś, prof. PK

Tytuł pracy

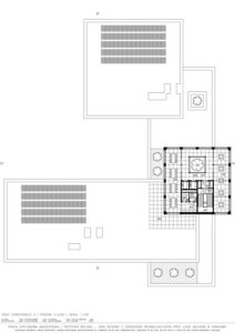
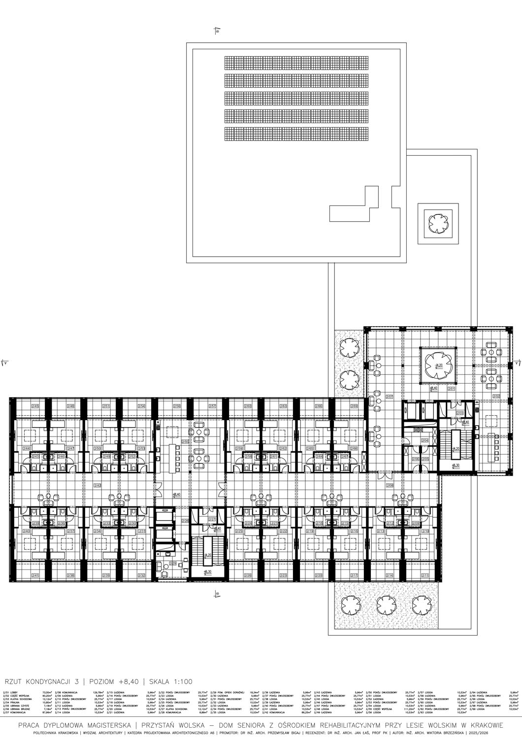
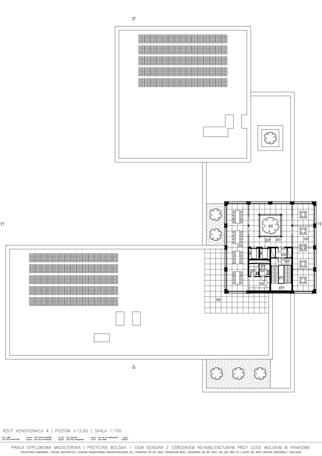
Przystań Wolska – dom seniora z ośrodkiem rehabilitacyjnym przy Lesie Wolskim w Krakowie

Jednostka dyplomująca

Katedra Projektowania Architektonicznego A-6

Opis

Praca dyplomowa obejmuje projekt Przystani Wolskiej, czyli domu seniora z ośrodkiem rehabilitacyjnym przy Lesie Wolskim w Krakowie ze szczególnym uwzględnieniem wpływu środowiska naturalnego na jakość życia osób starszych. Opracowywany obszar znajduje się w sąsiedztwie Fortu 38 Skała oraz Lasu Wolskiego w Dzielnicy VII Zwierzyniec. Forma obiektu składająca się z przenikających się prostopadłościanów o różnej wielkości została zainspirowana obrazem twórcy Scott’a Janks’a pt. „Geometyczny”. W wybrane dzieło malarskie wpisano funkcję odpowiednią dla domu spokojnej starości. Głównym założeniem projektowanej Przystani Wolskiej, było połączenie funkcji opiekuńczej, rehabilitacyjnej i społecznej, wykorzystując przy tym naturalne walory estetyczne miejsca. Liczne przeszklenia, loggie i tarasy otwierają budynek na otaczający krajobraz. Projektowany obiekt stanowi odpowiedź na zapotrzebowanie przestrzeni przystosowanej do osób starszych w dobie starzejącego się społeczeństwa. 

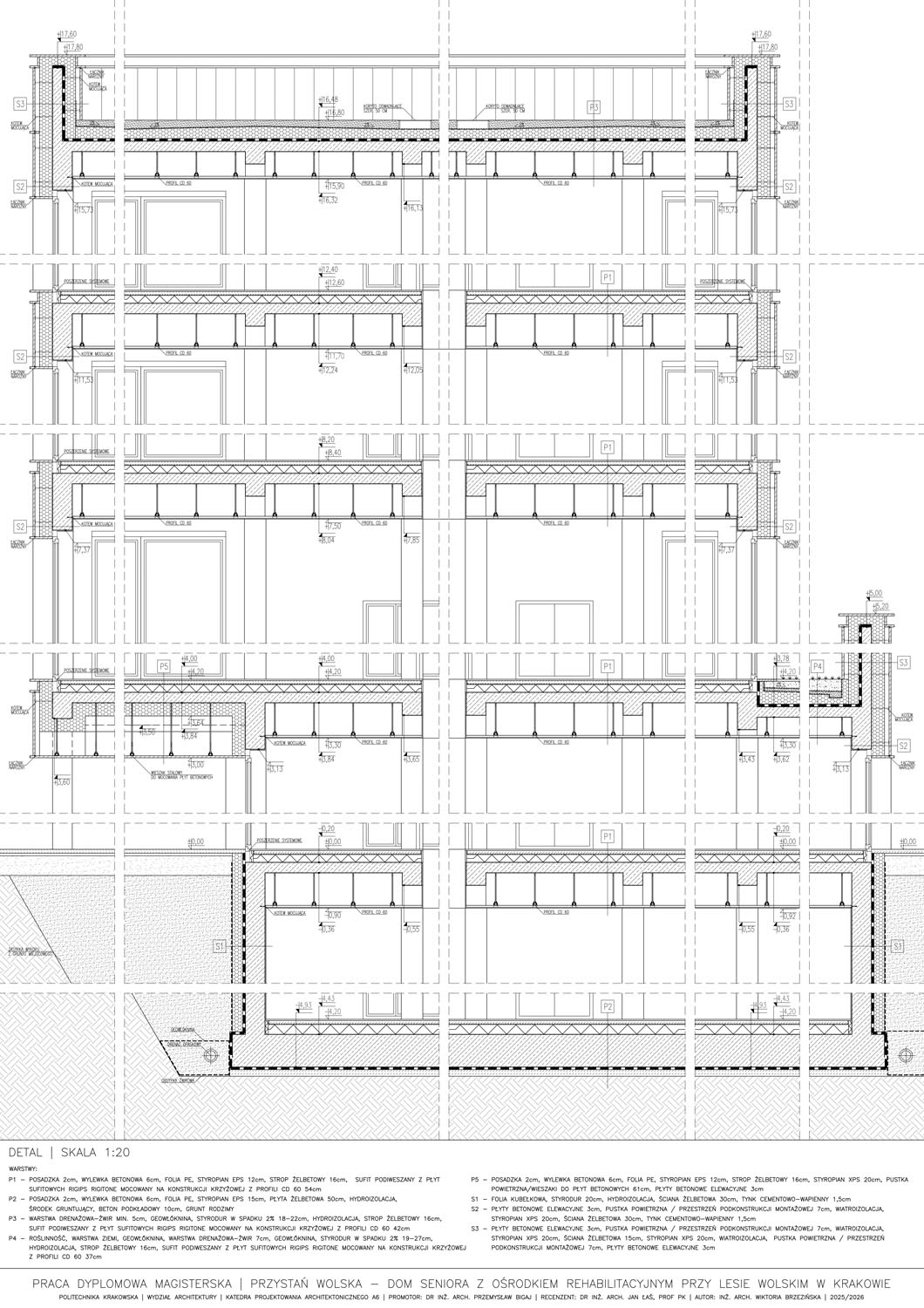
Część pisemna pracy rozwija wątek roli otoczenia w kształtowaniu architektury i jakości życia mieszkańców  domów seniora. Bada, jak lokalizacja i typ otoczenia (miejski, podmiejski, naturalny) wpływają na architekturę, funkcjonalność i percepcję przestrzeni przez zamieszkujących seniorów. Praca analizuje także standardy i wytyczne projektowe dotyczące domów opieki, w tym wymagania funkcjonalne, dostępności jak i bezpieczeństwa. Uzupełnieniem części opisowej jest opis idei, analizy, zdjęcia stanu istniejącego wybranej lokalizacji oraz opis techniczny projektowanego domu seniora.