Wiktoria Gręda

Promotor

dr inż. arch. Marta Fąfara

Recenzent

dr inż. arch. Bogdan Siedlecki, prof. PK

Tytuł pracy

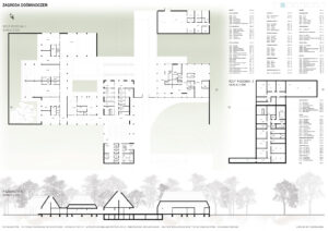
Zagroda Doświadczeń. Projekt zespołu przedszkolnego z ośrodkiem hipoterapii.

Jednostka dyplomująca

Katedra Projektowania Architektonicznego A-6

Opis idei projektu

Zagroda Doświadczeń to projekt zespołu budynków zlokalizowanych w podkarpackiej wsi Żurawica, którego celem jest odtworzenie i twórcza interpretacja lokalnego archetypu zabudowy wiejskiej. Linearny układ wsi oraz zachowane ślady dawnych „błoń” stały się punktem wyjścia do analizy historycznego układu urbanistycznego i jego współczesnej adaptacji. Projekt sytuowany jest na zakończeniu głównej osi kompozycyjnej, w bezpośrednim sąsiedztwie parku, gdzie powstaje zagroda jako miejsce otwarte, integrujące lokalną społeczność.

Główną ideą projektu jest stworzenie przestrzeni przyjaznej najmłodszym użytkownikom – poprzez funkcję przedszkola – ale także starszym mieszkańcom wsi. Kluczowym elementem założenia jest budynek warsztatowy, udostępniony szerokiej społeczności, umożliwiający rozwijanie pasji, organizację zajęć edukacyjnych i spotkań międzypokoleniowych.

Świadoma kompozycja zespołu zakłada rozczłonkowanie programu na kilka mniejszych obiektów, co pozwala zachować kameralną skalę architektury użyteczności publicznej i harmonijnie wpisać ją w wiejskie otoczenie. Dzięki temu powstają zróżnicowane wnętrza urbanistyczne – od ogólnodostępnych placów po bardziej prywatne przestrzenie, takie jak place zabaw czy ogrody warzywne.

Obiekt zaprojektowano w technologii drewna klejonego krzyżowo (CLT), wybranej ze względu na bardzo dobre właściwości izolacyjne oraz sprzyjający zdrowiu mikroklimat wnętrz, podkreślający ekologiczny i lokalny charakter projektu.