Zuzanna Olas

Promotor

dr inż. arch. Przemysław Bigaj

Recenzent

dr inż. arch. Jan Łaś, prof. PK

Tytuł pracy

Filharmonia w Krakowie

Jednostka dyplomująca

Katedra Projektowania Architektonicznego A-6

Opis

Forma architektoniczna budynku inspirowana była obrazem zatytułowanym Bozzetto per blocco centrale (tłum. Szkic bloku centralnego) malarza Gualtiero Nativi. Jego idea została wykorzystana jako koncepcja do projektu rzutu filharmonii. Obiekt powstał na zasadzie podziału na elementy występujące w obrazie, którym nadała została kubatura. Umożliwiło to stworzenie dalszych planów i rozmieszczenia funkcji.

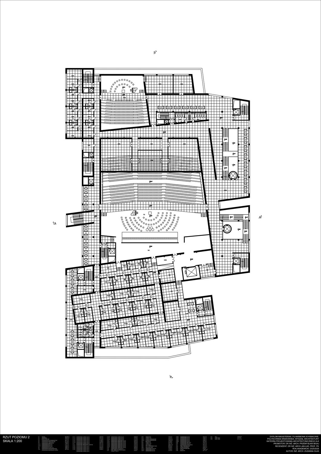
Kluczowym aspektem przy wyborze obrazu było znalezienie kompozycji, w której występowałby dominujący prostokątny element otoczony przez inne mniejsze figury. Takie ułożenie definiuje położenie głównej sali koncertowej i stanowi ważny aspekt jej późniejszego sprawnego funkcjonowania. Umiejscowiona w centralnej części sala, otoczona strefami oraz pomieszczeniami pełniącymi inne różnorakie funkcje, jest lepiej odizolowana od hałasów miasta. Przewiduje się bogaty program funkcjonalny obiektu obejmując m.in. mniejszą salę koncertową, sale prób, sale konferencyjne, część gastronomiczną czy strefę wystaw. Dzięki temu filharmonia będzie żyła w każdy dzień tygodnia, a nie tylko w dni koncertowe.

Obiekt został zaprojektowany jako wolnostojąca inwestycja w dzielnicy Grzegórzki przy Rondzie Grzegórzeckim, sąsiadując z jednymi z głównych arterii w mieście . Położenie w tak strategicznym punkcie na mapie Krakowa, przy jednym z głównych węzłów komunikacyjnych oraz w niedalekiej odległości od Rynku Głównego, gwarantuje jego stałą ekspozycję oraz łatwą dostępność dla gości.