Julia Łęczycka

Promotor

dr inż. arch. Krzysztof Barnaś

Recenzent

dr hab. inż. arch. Anna Kulig, prof. PK

Tytuł pracy

Projekt nowej siedziby Filharmonii Krakowskiej

Jednostka dyplomująca

Katedra Urbanistyki i Architektury Struktur Miejskich-A9

Opis

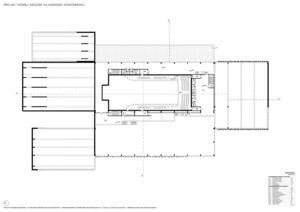
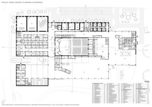
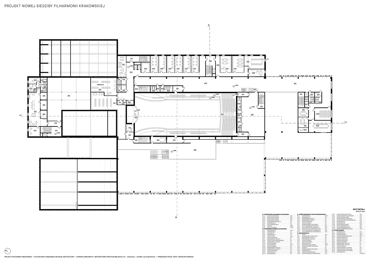
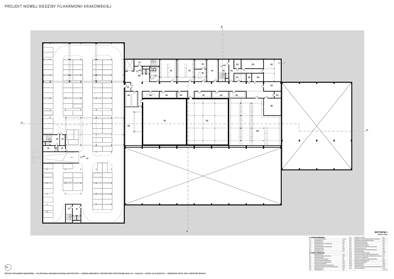
Projekt nowej siedziby Filharmonii Krakowskiej zlokalizowano przy ul. Skrzatów. Wybór ten podyktowany jest korzystnymi uwarunkowaniami akustycznymi oraz potencjałem miastotwórczym, pozwalającym na rewitalizację zabytkowych ruin fortu Twierdzy Kraków. Wykorzystanie zieleni wysokiej jako naturalnej bariery dźwiękowej umożliwiło stworzenie spójnej przestrzeni publicznej.
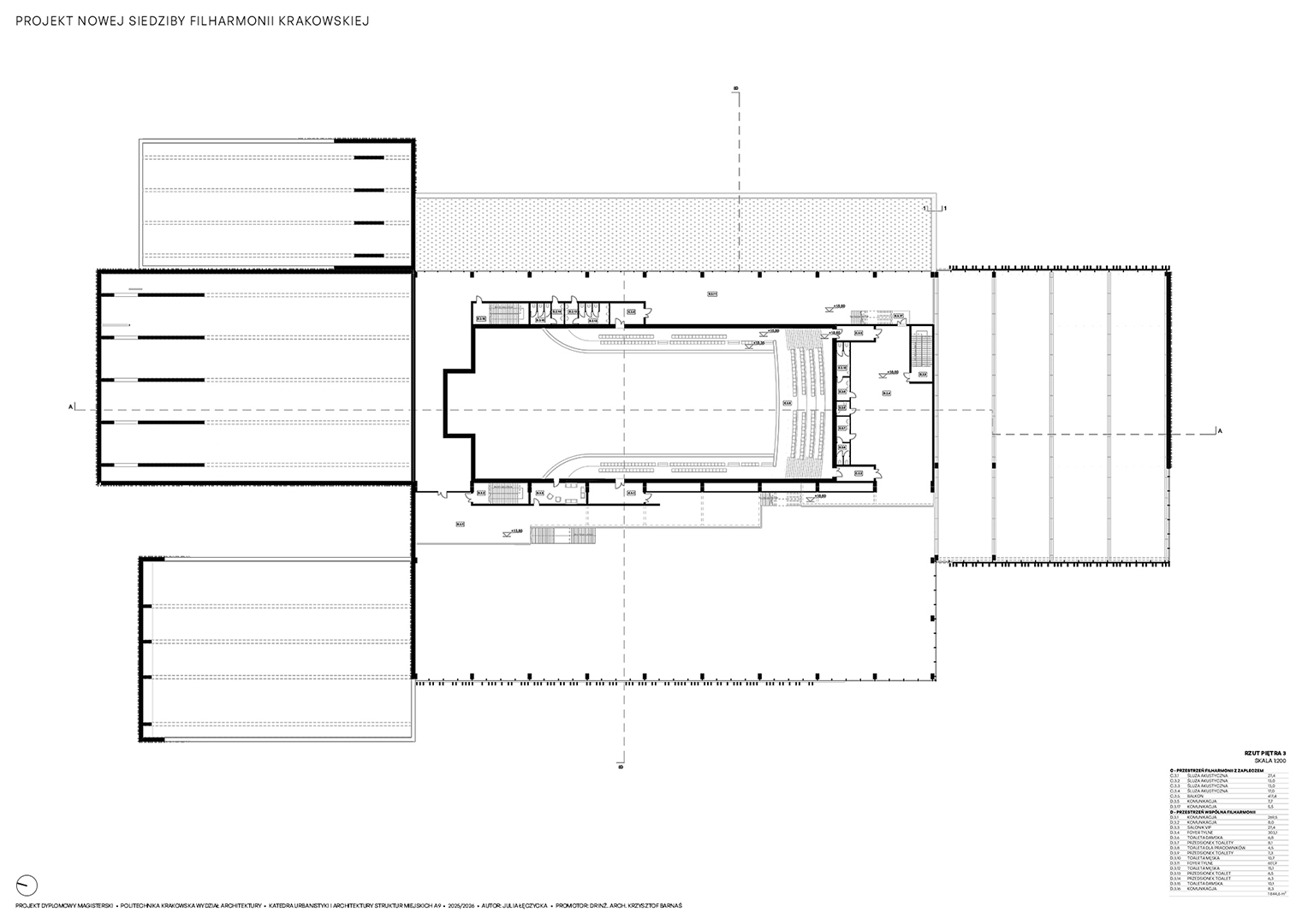
Architektura budynku opiera się na wizualnej metaforze muzyki. Dominującym elementem są falujące dachy, których dynamiczna forma nawiązuje zarówno do dźwięku, jak i nurtu Wisły. Zewnętrzny wyraz obiektu definiuje drewniana elewacja o układzie lameli i ruchomych paneli, nadających bryle lekkości. Nieregularny rzut dyskretnie ukrywa strefy techniczne, eksponując reprezentacyjną fasadę frontową. Układ funkcjonalny czytelnie dzieli strefy. Sercem jest Główna Sala Koncertowa na 1828 miejsc, przenikająca przez cztery kondygnacje; uzupełnia ją Sala Kameralna na 304 miejsca. Strefę widza tworzy wysokie foyer, otwierając wnętrze na park za pomocą przeszklonej fasadzie. Zaplecze artystyczne i administracyjne odseparowano, zapewniając sprawną logistykę. Południowe skrzydło mieści funkcje gastronomiczno-konferencyjne – dzięki niezależnym wejściom działa ono autonomicznie.
Projekt łączy zrównoważony rozwój z szacunkiem dla kontekstu. Poprzez wrażliwe wpisanie w zrewitalizowaną zieleń budynek nie dominuje otoczenia, lecz wchodzi z nim w harmonijny dialog, przywracając miastu zapomniany fragment przestrzeni.