Marta Świeczkowska

Promotor

dr inż. arch. Ernestyna Szpakowska-Loranc

Recenzent

dr inż. arch. Jacek Czubiński, prof. PK

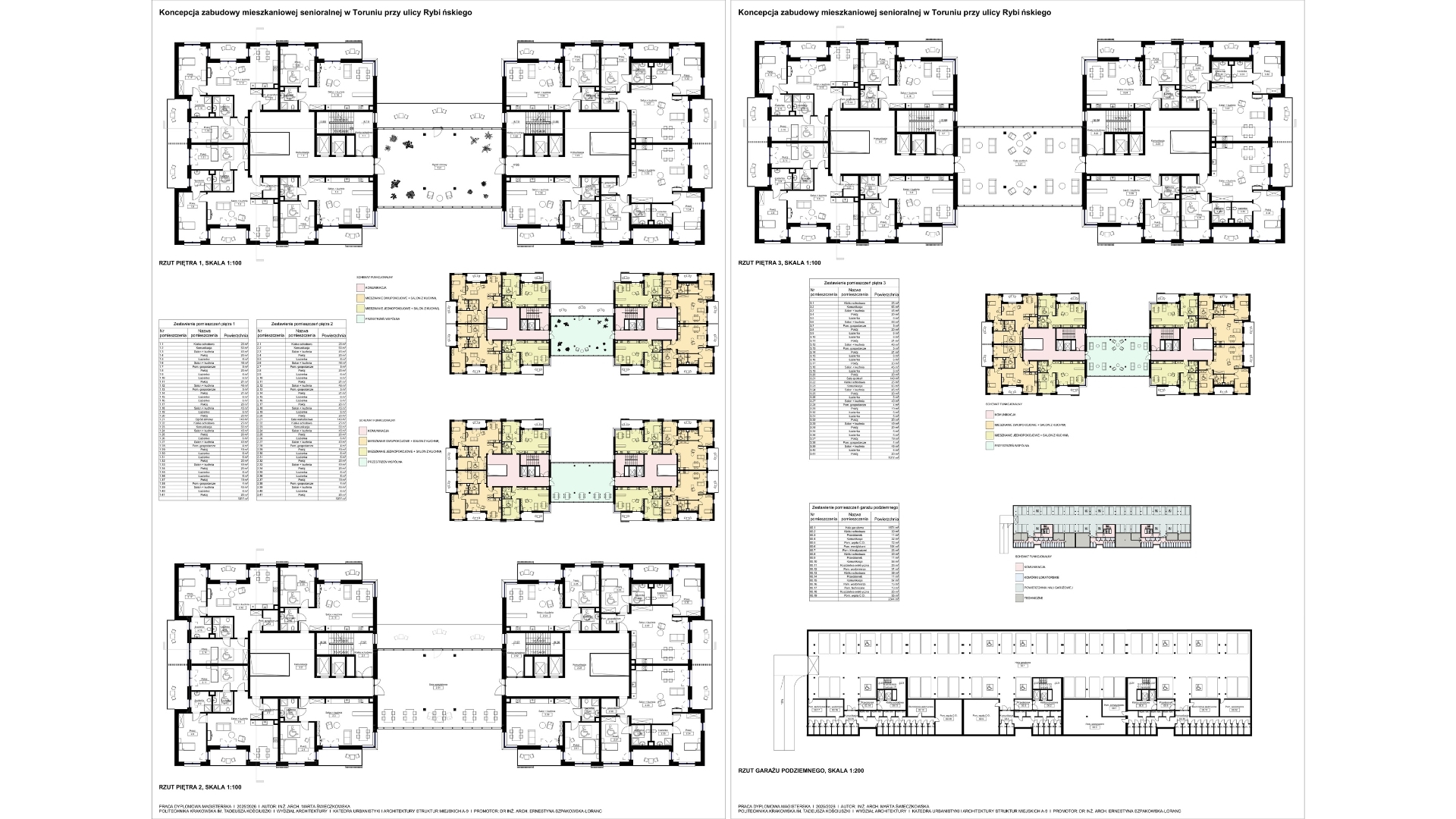
Tytuł pracy

Koncepcja zabudowy mieszkaniowej senioralnej w Toruniu przy ulicy Rybińskiego

Jednostka dyplomująca

Katedra Urbanistyki i Architektury Struktur Miejskich-A9

Opis

Tematem pracy dyplomowej magisterskiej jest koncepcja zabudowy mieszkaniowej senioralnej zlokalizowanej w Toruniu w dzielnicy Jar przy ulicy Rybińskiego. W pracy badawczej wykazano problem badawczy, jakim jest niski poziom dostępności zabudowy senioralnej w Polsce. W rezultacie postanowiono opracować koncepcję osiedla dla seniorów. Wybrana działka posiada rozległy obszar do zagospodarowania, dlatego zaprojektowano całe osiedle senioralne wraz z usługami towarzyszącymi.

Głównym założeniem dla projektu jest stworzenie budynku mieszkalnego dostępnego dla osób starszych, w harmonii z otoczeniem oraz odpowiednimi funkcjami dodatkowymi. Takie założenie zbliża do aktywizacji społeczności seniorów, co może mieć realny wpływ na samotność wśród tej grupy społecznej. W odpowiedzi na złożoną problematykę potrzeb osób starszych, przystosowano typy mieszkań w taki sposób, aby zapewnić wszelkie wymagania w tym zakresie, zwracając przy tym szczególną uwagę na dostępność dla osób z niepełnosprawnościami.

Po przeprowadzeniu analizy wybranej lokalizacji, przewidziano również koncepcję dla niezagospodarowanych terenów sąsiednich. Zaproponowano obiekt żłobka oraz basen miejski, które będą miały na celu przenikanie funkcji społecznych, aby uniknąć wyizolowania od życia społecznego mieszkańców osiedla senioralnego.

Ideą projektu jest przedstawienie koncepcji zwiększenia dostępnych zasobów mieszkaniowych dla seniorów. Aktywne życie społeczne, a zarazem możliwość samodzielnego funkcjonowania może być powodem zwalczania samotności osób starszych oraz zwiększenia poczucia godności i przynależności.

Część badawcza, zawarta w eseju pt. „Samotność seniora a dostępne zasoby mieszkaniowe” dotyczy zagadnienia sytuacji seniorów Polsce. Zawiera także analizę przykładów zabudowy przeznaczonej dla seniorów.