Sara Florek

Promotor

dr inż. arch. Bartłomiej Homiński 

Recenzent

dr inż. arch. Zbigniew Wikłacz, prof. PK

Tytuł pracy

“Czym jest dziś luksus? – adaptacja opuszczonego ośrodka wypoczynkowego „Rudka” w Rudziskach Pasymskich na hotel”

Jednostka dyplomująca

Katedra Urbanistyki i Architektury Struktur Miejskich-A9

Opis

Praca dyplomowa dotyczy adaptacji opuszczonych budynków dawnego ośrodka wypoczynkowego „Rudka” w Rudziskach Pasymskich oraz uzupełnienia zespołu o nowy budynek spa jako brakującą funkcję wypoczynkową. Kompleks zlokalizowany jest w spokojnym otoczeniu lasów, w bezpośrednim sąsiedztwie Jeziora Kalwa, co nadaje mu szczególny potencjał jako miejsca relaksu i regeneracji.

Część teoretyczna ma formę eseju naukowego poświęconego współczesnemu rozumieniu luksusu w architekturze. Na podstawie analizy literatury i wybranych realizacji sformułowano trzy kluczowe zasady: minimalizm formalny, projektowanie zrównoważone oraz traktowanie architektury jako doświadczenia zmysłowego. Luksus definiowany jest nie przez nadmiar formy, lecz przez jakość przestrzeni, komfort użytkowania, bliski kontakt z naturą oraz atmosferę sprzyjającą wypoczynkowi.

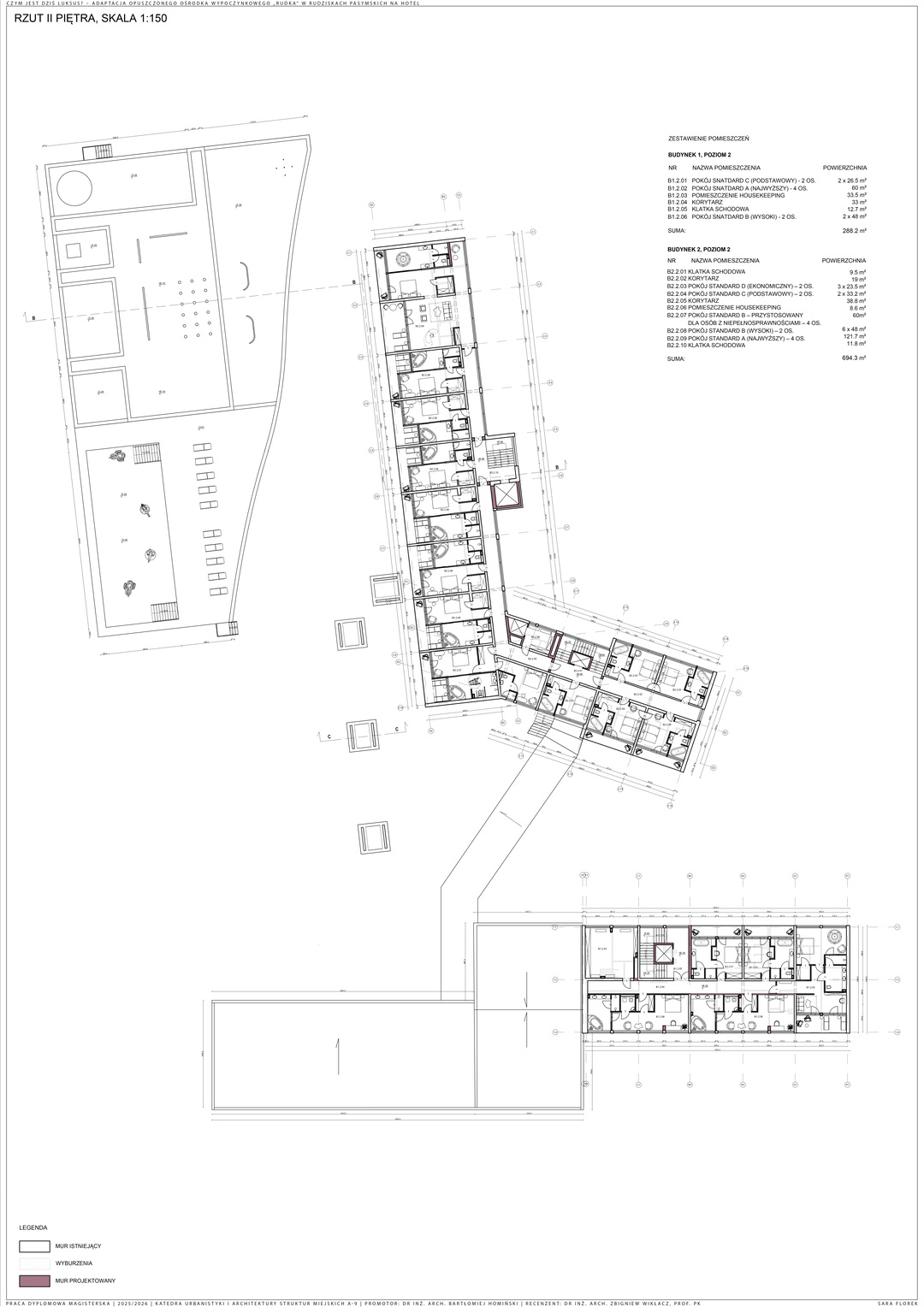
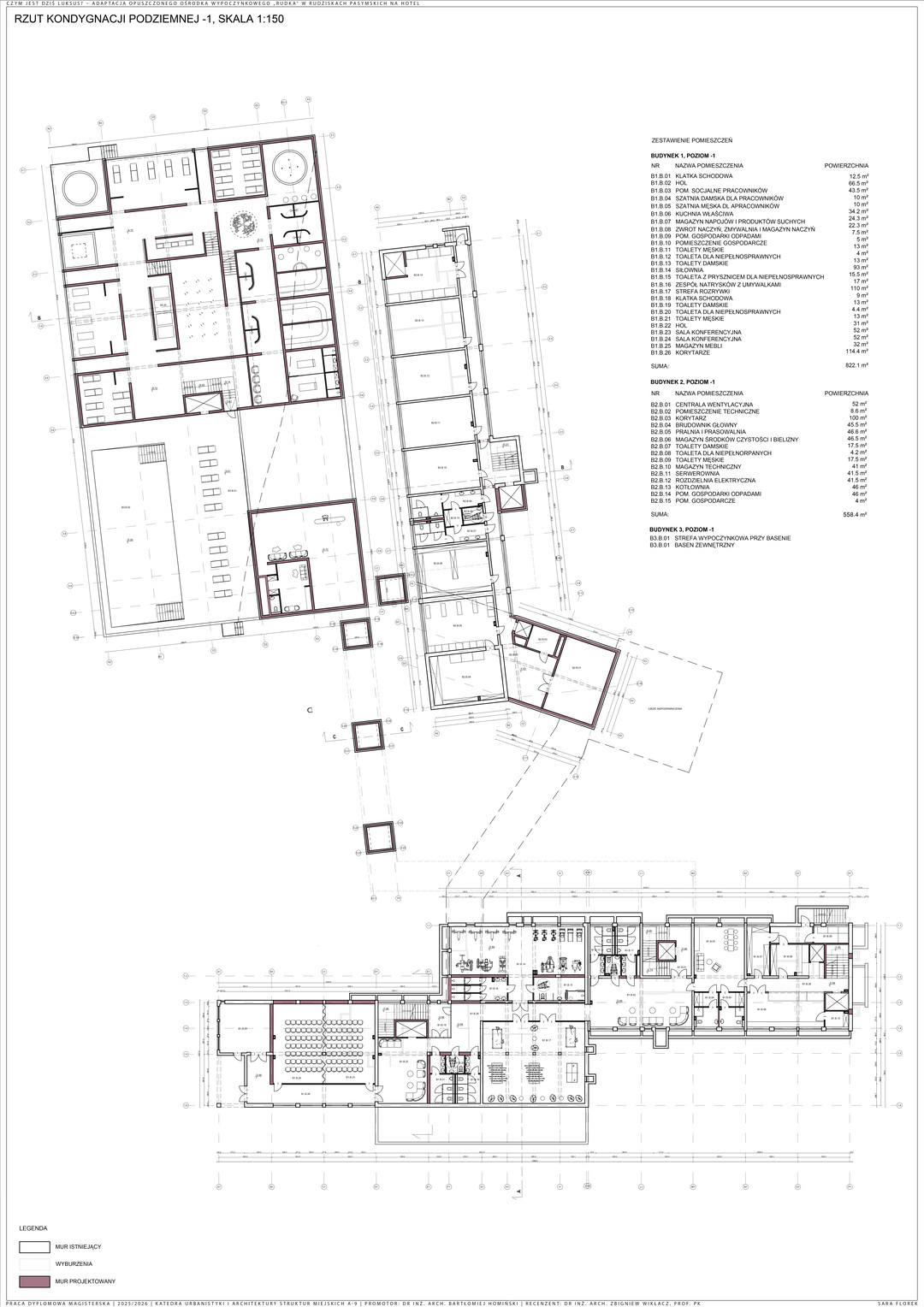
Ideę projektu stanowi przekształcenie i rozbudowa zespołu z poszanowaniem jego pierwotnego charakteru, krajobrazu i kontekstu miejsca. Interwencje w istniejącą zabudowę ograniczono do minimum, zachowując minimalistyczną formę budynków przy jednoczesnym podniesieniu standardu użytkowego. Nowy budynek spa wkomponowano w zbocze wzniesienia, co umożliwiło harmonijne zespolenie architektury z krajobrazem. Projekt oparto na sekwencji przestrzeni o zróżnicowanym stopniu intymności, prowadzącej od kameralnych wnętrz do otwartych stref z widokiem na jezioro.

Część analityczna obejmuje analizę lokalizacji i uwarunkowań przestrzennych, natomiast opis techniczny prezentuje rozwiązania zgodne z zasadami zrównoważonego budownictwa i dostępności. Projekt stanowi alternatywę dla nowej zabudowy, wpisując się we współczesne rozumienie luksusu i tworząc przestrzeń sprzyjającą powrotom.