Aleksandra Pytko

Promotor

prof. dr hab. inż. arch. Magdalena Jagiełło-Kowalczyk

Recenzent

dr inż. arch. Marta Anna Urbańska, prof. PK

Tytuł pracy

Dolina Cydrowa. Tyssedal

Jednostka dyplomująca

Katedra Kształtowania Środowiska Mieszkaniowego A-3

Opis idei projektu

Miejscowość Tyssedal reprezentuje sobą zarówno przestrzeń charakterystyczną dla Norwegii, jak i unikalną w swoim własnym zakresie. Poprzez industrialne początki jej historia wiąże się z działalnością hydroelektrowni, jednak to atrakcyjność natury oraz potencjał rekreacji górskiej uczynił z niej popularny cel turystyczny.

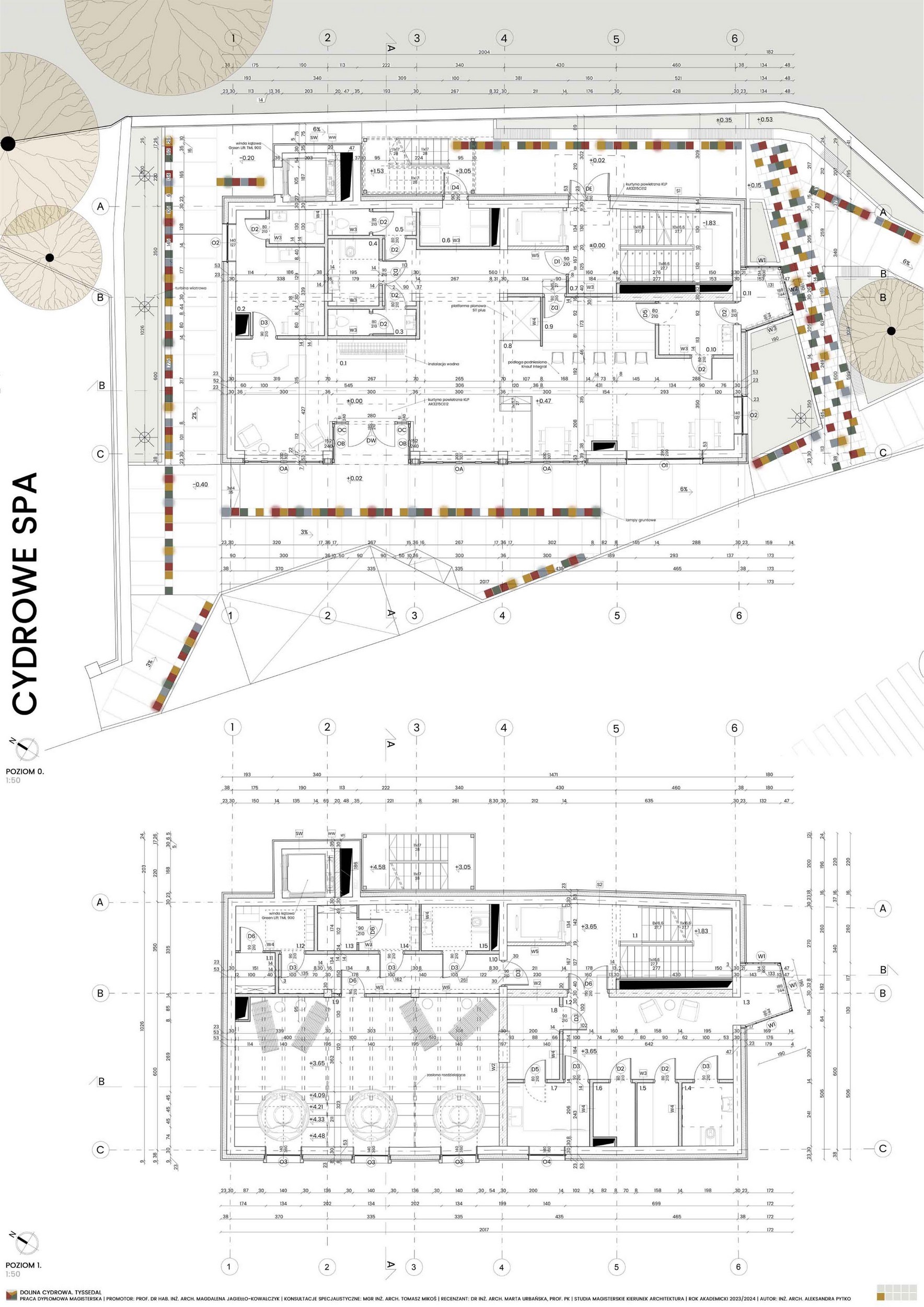
Projekt Cydrowej Doliny ma za zadanie w nowy sposób reaktywować przestrzeń, która obecnie jest odsunięta na bok. Opiera się na adaptacji dwóch nieużywanych budynków w zespół turystyczny: Cydrowe Spa, pozwalające na zaznanie lokalnej kultury cydrownictwa oraz saunowania, a także Hostel i Centrum Turystyczne, umożliwiające wygodniejsze spędzenie swojego pobytu. Ścieżka urbanistyczna łącząca te miejsca stanowi sposób na podniesienie jakości tkanki miejskiej, równocześnie zapoznając użytkownika z tradycjami i kulturą Tyssedal. Kluczowym aspektem projektu jest nawiązanie do lokalnej architektury oraz skupienie na pozyskiwaniu energii wiatru.