Ewa Grochowska

Promotor

Dr. hab. Inż. arch. Kazimierz Butelski, prof. PK

Recenzent

Dr hab. inż. arch. Marcin Charciarek, prof. PK

Tytuł pracy

Centrum Sztucznej Inteligencji z Muzeum Przyszłości

Jednostka dyplomująca

Katedra Architektury Miejsc Pracy, Sportu i Usług A-2

Opis idei projektu

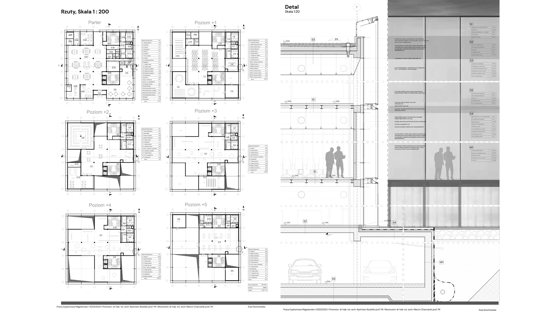
Projekt opiera się na koncepcji umieszczenia małych sześcianów 6x6m w większym metalowym korpusie o wymiarach 30x30m, co pozwala na elastyczne formowanie przestrzeni. Istnieje wiele możliwych konfiguracji układu, a ja wybrałam jedną z nich, która najlepiej odpowiada założeniom tematu pracy. Ta elastyczność nawiązuje do działania Sztucznej Inteligencji, która również generuje różnorodne rozwiązania na podstawie tych samych danych. Całość osłonięta jest szklaną fasadą, symbolizującą granice narzucane przez człowieka na SI. Uniesienie konstrukcji na podeście podkreśla monumentalność bryły i przypomina o odpowiedzialnym zarządzaniu technologią. Inspiracją do komunikacji wewnątrz budynku była struktura sieci neuronowej, tworząc funkcjonalną, dynamiczną przestrzeń. Projekt nie tylko estetycznie oddziałuje, ale również skłania do refleksji nad rolą człowieka w rozwoju technologii i przyszłości SI.