Gabriela Latocha

Promotor

dr inż. arch. Paweł Żuk

Recenzent

dr inż. arch. Zbigniew Wikłacz, prof. PK

Tytuł pracy

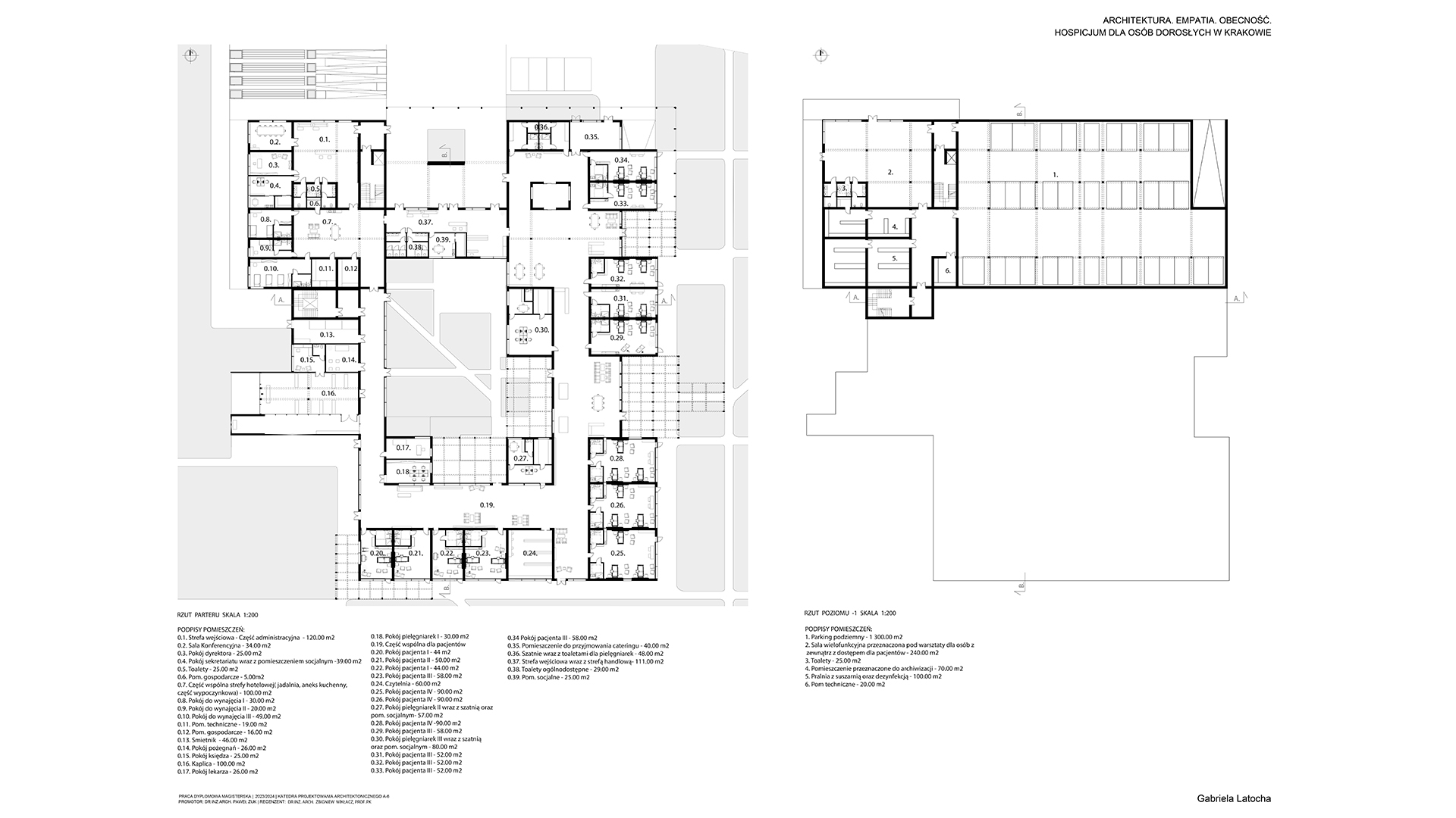
Architektura. Empatia. Obecność – hospicjum dla osób dorosłych w Krakowie.

Jednostka dyplomująca

Katedra Projektowania Architektonicznego A-6

Opis idei projektu

Tematem pracy magisterskiej jest projekt Hospicjum dla osób dorosłych w Krakowie. Obserwując obecną sytuację społeczną, w której wiele osób dotyka choroba nowotworowa, celem projektu stało się stworzenie wyjątkowej przestrzeni dla pacjentów hospicjum. Często kojarzone z ponurym szpitalem, hospicja budzą lęk i wyrzuty sumienia u rodzin, które umieszczają tam swoich najbliższych. Projekt ten ma na celu całkowite odwrócenie tego wizerunku, oferując pacjentom miejsce, które będzie dawało im bezpieczeństwo oraz spokój. W obiekcie zaplanowano liczne przestrzenie zielone, sprzyjające aktywnościom dostosowanym do możliwości chorych. Wnętrza zostały zaprojektowane w sposób nawiązujący do domowego klimatu, które mają tworzyć atmosferę wspólnoty. W projekcie wykorzystano naturalne materiały takie jak cegła oraz drewno. Bezpośredni dostęp do tarasów i ogrodu umożliwia pacjentom ciągły kontakt z naturą, niezależnie od ich stanu kontakt z naturą. Projekt ten stawia na potrzeby pacjentów, dbając także o komfort ich rodzin w tym trudnym dla nich czasie.