Milena Śmiłek

Promotor

dr inż. arch. Ernestyna Szpakowska – Loranc

Recenzent

prof. dr hab. inż. arch. Grażyna Schneider – Skalska

Tytuł pracy

PROJEKT BUDYNKU DLA GMINNEGO OŚRODKA KULTURY „KUŹNIA” W SUŁKOWICACH WRAZ Z ZAGOSPODAROWANIEM TERENU GOŚCIBI.

Jednostka dyplomująca

A9 – Katedra Urbanistyki i Architektury Struktur Miejskich

Opis idei projektu

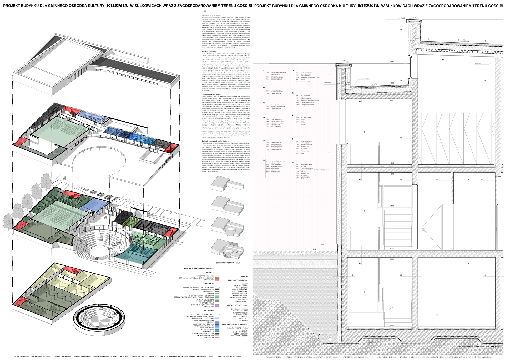
Zorganizowanie przestrzeni terenu „Gościbi” w Sułkowicach skupiło się wokół sportu i kultury. Dlatego zdecydowano się na zaprojektowanie tam ośrodka kultury z pełną ofertą kulturalną. Projekt skupiła się wokół dwóch istotnych przestrzeni dla domu kultury – sali widowiskowej oraz sal edukacyjnych. Główna sala widowiskowa – duża kubatura, do której przylega kolejna podłużna forma z salami edukacyjnymi. Wszystko połączone jest ze sobą otwartą przestrzenią holu wielofunkcyjnego z pomieszczeniami pomocniczymi. Przestrzeń do  komunikacji pomiędzy dwiema formami jest pełna lekkości, przez wprowadzenie przeszkleń  w  owalnym wycięciu w bryle. Wolna przestrzeń w kształcie okręgu została wykorzystana na zewnętrzny amfiteatr. Obiekt zakłada dostosowanie się do kontekstu za pomocą materiałów użytych w elewacji – metal i drewno. Ukierunkowanie bryły jest uzależnione od kierunków świata oraz kluczową role odegrały otwarcia widokowe na otaczający zielony obszar i teren „Gościbi”.