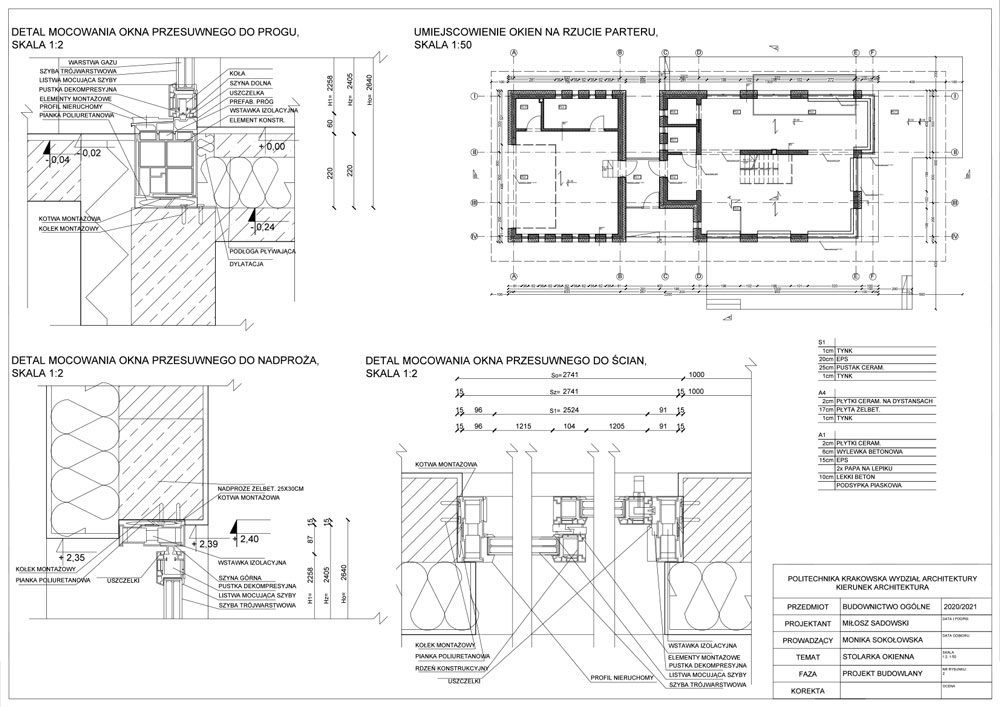
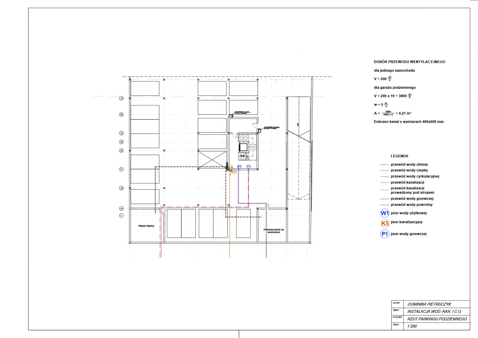
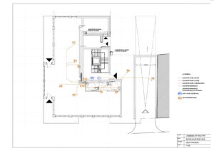
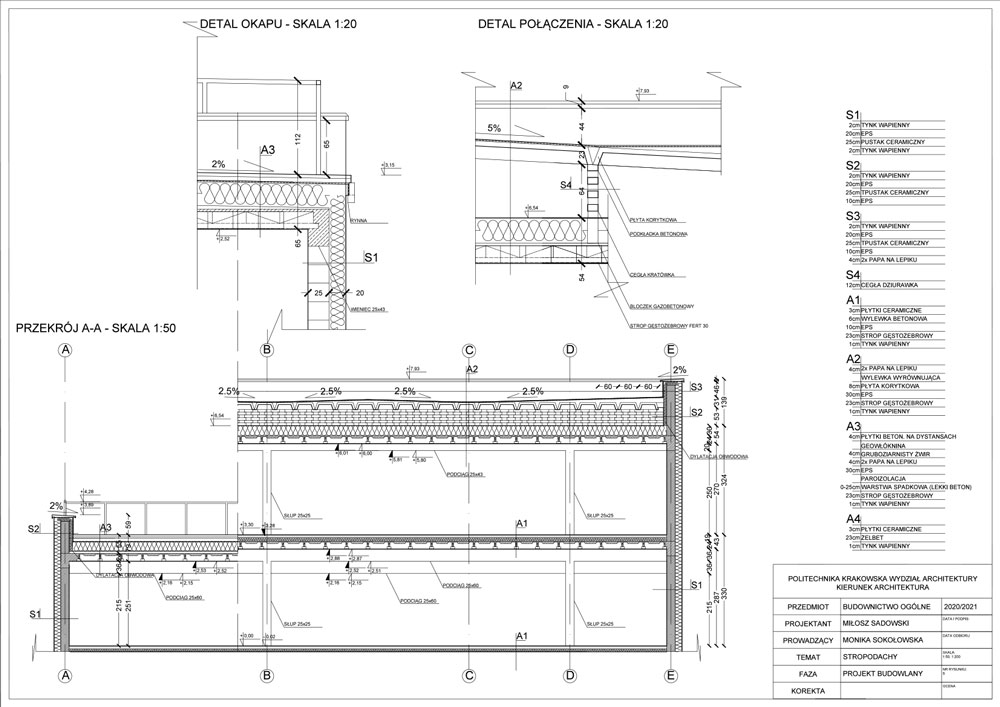
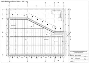
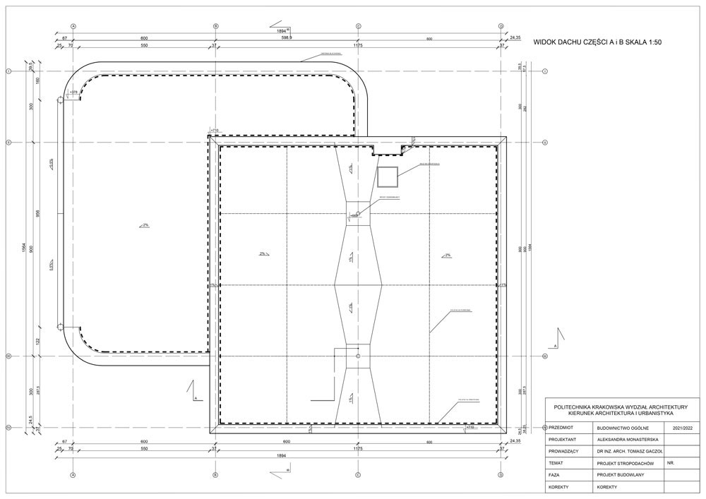
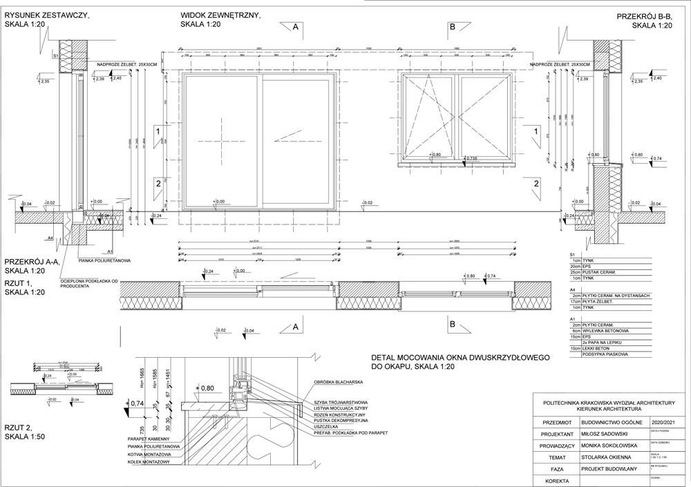
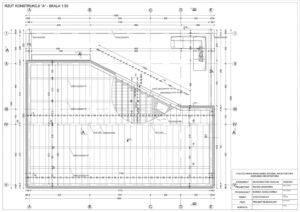
A-4